1 izbový byt 37, 87 m2 na predaj novostavba vo výstavbe Martin Tomčany
7047x zobrazená v zozname / 23044x zobrazená detailne / 66x zobrazená detailne tento mesiac
Ponúkam Vám 1 izbový byt apartmán na predaj Martin Tomčany, novostavba v súčasnosti vo výstavbe, loggia
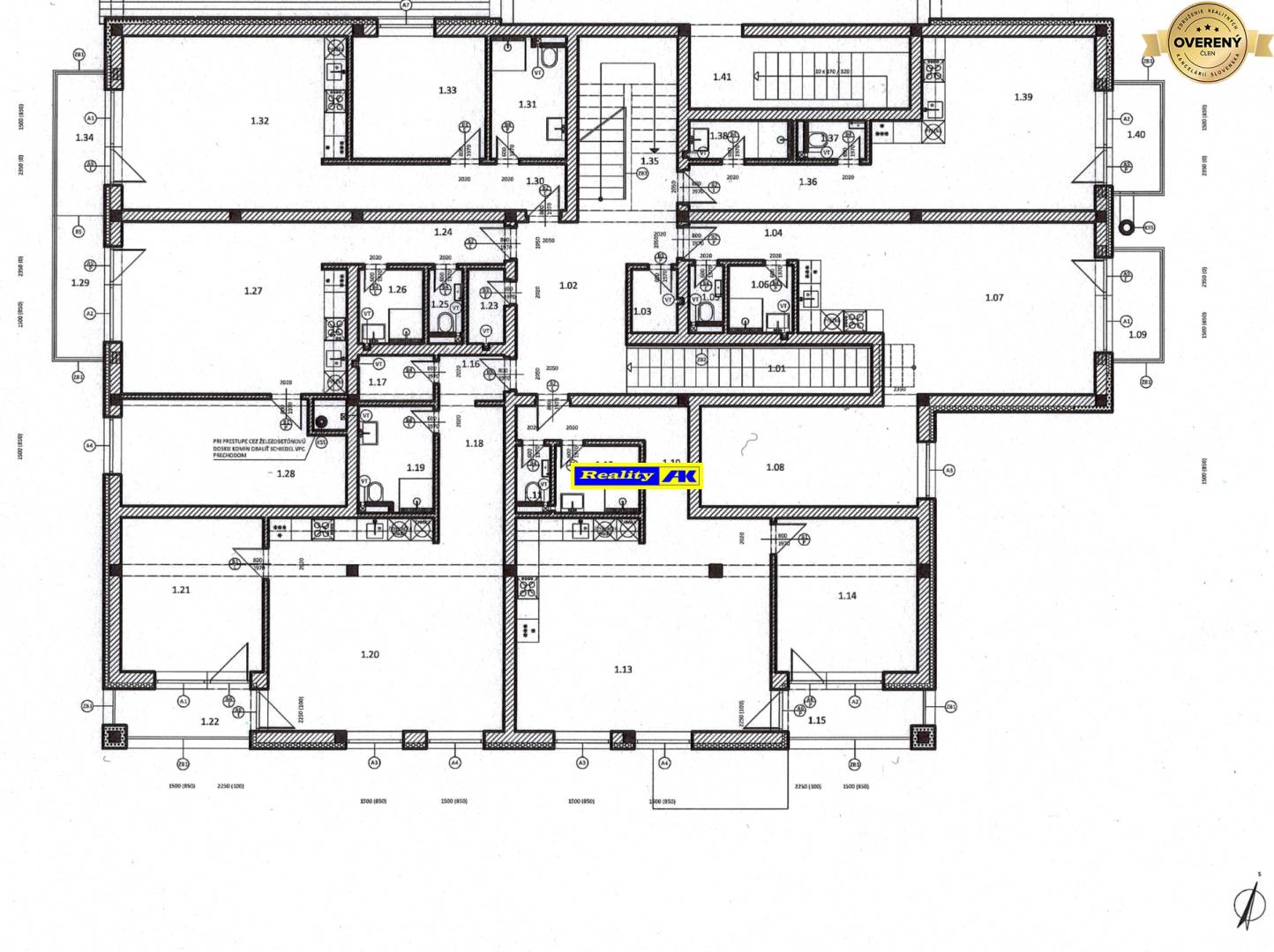
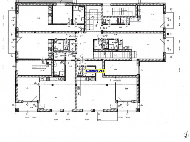
1 poschodie byt číslo 6 - označený miestnosti čísla Vo výstavbe je 12 bytov na 2 poschodiach blízko novej nemocnice, byty budú špecifikované ako apartmány, 2 byty sú 1 izbové a 10 bytov je 2 izbové, prevedenie holobyt, kolaudácia najneskôr do
Informácie sú na stránke realitnej kancelárie Reality AK po zadaní v NOVÉ PROJEKTY, alebo v sekcii DRUH/developerske projekty/výstavba bytov.
Prehľad voľných bytov je v tabuľke nižšie - kliknutím na príslušný byt sa Vám zobrazí detailná ponuka bytu.
https://www.realityak.sk/vystavba-bytov-na-predaj-novostavba-martin-tomcany-blizko-novej-nemocn-871704?noindex
Ponúkaný byt sa predáva v prevedení Holobyt.
Dispozičné riešenie: pozri pôdorys medzi foto
chodba
Kuchyňa spolu s obývačka
kúpeľňa
WC
balkón
Vybavenie:
Byt Apartmán sa nachádza na 1 poschodí, obytná plocha je 34,27 m2, úžitková plocha je 37,87 m2, balkón je 3,6 m2.
Vchodové dvere sú nové bezpečnostné.
Okná sú plastové.
Orientácia apartmánu je Z
Vykurovanie je teplovodné podlahové s ohrevom elektrický kotol.
Prevedenie bytu je holobyt a bude mať v dome urobené
- plastové okná
- elektriku
- vodu a kanalizáciu
- vnútorné omietky
- dvere vchodové do bytu
- urobený strop sadrokartónom,
- kúrenie bude ústredné radiátormi, alebo podlahové vodou v trubkách, ohrev kotol elektrika
- zateplenie je minerálnou vatou
Je potrebné dokončiť
- kuchynskú linku
- vnútorné dvere a zárubne
- podlahy
- dlažba a obklady kúpeľňa a WC
- sanita kúpeľňa a WC
- svetlá
Nehnuteľnosť:
Obytný dom je postavený z ytongu a je zateplený.
Lokalita:
Martin Tomčany
V okolí je park a veľa zelene.
Cena nehnuteľnosti celkom je uvedená cena + príslušná sadzba DPH a zahŕňa kompletný realitný a právny servis vrátane poplatkov.
Podrobné informácie k 1 izbovému bytu na predaj
| Celková rozloha | 37.87 m² |
|---|---|
| Úžitková plocha | 34.27 m² |
| Poschodie | 1 |
| Počet poschodí | 2 |
| Počet izieb | 1 |
| Vlastníctvo | osobné |
| Stav | pôvodný |
| Status | aktívne |
| Odvoz odpadu | áno - separovaný |
| Kúpeľňa | áno |
| Vykurovanie | vlastné - elektrické |
|---|---|
| Balkón | áno |
| Pivnica | áno |
| Parkovanie | verejné |
| Postavené z | Ytong |
| Zateplený objekt | áno |
| Energetický certifikát | A |
| Okná | plastové |
| Orientácia | východná |
| Novostavba | áno |
1 izbový byt 37,87 m2 na predaj novostavba vo výstavbe Martin Tomčany - Vývoj ceny
Hodnotenie ponuky - 1 izbový byt 37,87 m2 na predaj novostavba vo výstavbe Martin Tomčany
Analýza ponuky bytov v lokalite Martin
V okrese Martin je na ZoznamRealit.Sk 55 bytov na predaj a 16 bytov na prenájom.
Najdrahšia ponuka stojí 149.000,- € na predaj a najlacnejšia ponuka bytu pre lokalitu Martin 86.000,- €.
V okrese Martin pôsobí a na ZoznamRealit.Sk inzerujú 3 realitné kancelárie, ktoré sú zároveň Overeným členom ZRKS.
