1 izbový byt 54, 57 m2 poschodie 2, na predaj novostavba Martin Tomčany
15007x zobrazená v zozname / 23080x zobrazená detailne / 33x zobrazená detailne tento mesiac
Realitná kancelária Reality AK ponúka 1 izbový byt apartmán na predaj Martin Tomčany, novostavba, loggia
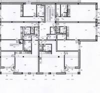
2 poschodie byt číslo 6 - označený miestnosti čísla 2.36 - 2.40
Predáva sa v prevedení Holobyt.
Dispozičné riešenie: pozri pôdorys medzi foto
chodba
Kuchyňa spolu s obývačka
kúpeľňa spolu s WC
balkón
sklad
Vybavenie:
Byt Apartmán sa nachádza na 2 poschodí, obytná plocha je 51,39 m2, úžitková plocha je 54,57 m2, balkón je 3,6 m2.
Vchodové dvere sú nové bezpečnostné.
Okná sú plastové.
Orientácia apartmánu je V
Vykurovanie je teplovodné podlahové s ohrevom elektrický kotol.
Prevedenie bytu je holobyt a bude v byte urobené
- plastové okná
- elektrika
- voda a kanalizácia
- vnútorné omietky
- dvere vchodové do bytu
- urobený strop sadrokartónom,
- kúrenie bude ústredné radiátormi, alebo podlahové vodou v trubkách, ohrev kotol elektrika
- zateplenie je minerálnou vatou
Je potrebné dokončiť
- kuchynskú linku
- vnútorné dvere a zárubne
- podlahy
- dlažba a obklady
- sanita
- svetlá
Nehnuteľnosť:
Obytný dom je postavený z ytongu a je zateplený.
Lokalita:
Martin Tomčany
Cena nehnuteľnosti je uvedená vrátane DPH a zahŕňa kompletný realitný a právny servis vrátane poplatkov.
Aká je občianska vybavenosť na ulici Tomčany v Martine?
Na ulici Tomčany v Martine sa ponúka 1-izbový apartmán v novostavbe, ktorá je v súčasnosti vo výstavbe. Miesto je známe parkom a množstvom zelene, čo dodáva okoliu príjemný rezidenčný charakter. Praktickú stránku bývania podporuje blízkosť novej nemocnice a jednoduché spojenie s mestom cez autobusovú zastávku Tomčany vo vzdialenosti 25 m.
Pre bežný deň aj neformálne stretnutia poslúži reštaurácia v Tomčianskom dvore vo vzdialenosti 157 m. Na uvoľnené posedenie je k dispozícii krčma U draka vo vzdialenosti 891 m a večernú atmosféru doplní bar Barmuseum vo vzdialenosti 938 m. Tieto miesta prinášajú do štvrte živší rytmus bez toho, aby rušili jej pokoj.
Kultúrne a vzdelávacie zázemie zabezpečuje Etnografické múzeum vo vzdialenosti 938 m a bohaté fondy nájdete v Slovenskej národnej knižnici vo vzdialenosti 942 m. Administratívne aj akademické zázemie dopĺňa dekanát JLF UK vo vzdialenosti 853 m, čo ocenia študenti i zamestnanci univerzity.
Menší projekt s dvanástimi bytmi na dvoch podlažiach prirodzene zapadá do mierky Tomčian. Okolie s parkom a zeleňou vytvára priestor na oddych po práci, pričom viacero služieb je v pešej dostupnosti a MHD zabezpečuje pohodlné prepojenie s ostatnými časťami mesta.
Okolie ulice Tomčany v Martine ponúka tieto možnosti:
Autobusová zastávka: Tomčany - 25 m
Reštaurácia: Tomčiansky dvor - 157 m
Administratíva / kancelárie: Dekanát JLF UK - 853 m
Krčma: U draka - 891 m
Bar: Barmuseum - 938 m
Cestovný ruch: Etnografické múzeum - 938 m
Knižnica: Slovenská národná knižnica - 942 m
Podrobné informácie k 1 izbovému bytu na predaj
| Celková rozloha | 54.57 m² |
|---|---|
| Úžitková plocha | 51.39 m² |
| Poschodie | 2 |
| Počet poschodí | 2 |
| Počet izieb | 1 |
| Vlastníctvo | osobné |
| Stav | holopriestor |
| Status | aktívne |
| Odvoz odpadu | áno - separovaný |
| Kúpeľňa | áno |
| Vykurovanie | vlastné - elektrické |
|---|---|
| Balkón | áno |
| Pivnica | áno |
| Parkovanie | verejné |
| Postavené z | Ytong |
| Zateplený objekt | áno |
| Energetický certifikát | A |
| Okná | plastové |
| Orientácia | východná |
| Novostavba | áno |
1 izbový byt 54,57 m2 poschodie 2, na predaj novostavba Martin Tomčany - Vývoj ceny
Ďalšie 1 izbové byty v Martine na predaj
Hodnotenie ponuky - 1 izbový byt 54,57 m2 poschodie 2, na predaj novostavba Martin Tomčany
Analýza ponuky bytov v lokalite Martin
V okrese Martin je na ZoznamRealit.Sk 50 bytov na predaj a 13 bytov na prenájom.
Najdrahšia ponuka stojí 149.000,- € na predaj a najlacnejšia ponuka bytu pre lokalitu Martin 86.000,- €.
V okrese Martin pôsobí a na ZoznamRealit.Sk inzerujú 3 realitné kancelárie, ktoré sú zároveň Overeným členom ZRKS.
