1i - 2i - 3i BYTY V NOVOSTAVBE | NITRA - MLYNARCE
40x zobrazená v zozname / 12x zobrazená detailne / 12x zobrazená detailne tento mesiac
DOSTUPNÉ BÝVANIE NITRA – MLYNÁRCE
Realitná kancelária ALL INCLUSIVE REAL ponúka moderné a cenovo dostupné bývanie v jednej z najvyhľadávanejších lokalít Nitry – Mlynárce.
Projekt je ideálnou voľbou pre tých, ktorí hľadajú komfortné a kvalitné bývanie za rozumnú cenu s výbornou dostupnosťou do centra mesta.
O projekte
Projekt Obytný súbor – Dostupné bývanie Nitra vzniká na ploche viac ako 16 900 m² a predstavuje pokračovanie existujúcej rezidenčnej zóny.
Výstavba prvej etapy už prebieha, kolaudácia je naplánovaná na roky 2026 – 2027.
Lokalita ponúka pokojné prostredie s množstvom zelene, kompletnú občiansku vybavenosť a jednoduché napojenie na hlavnú cestnú sieť mesta.
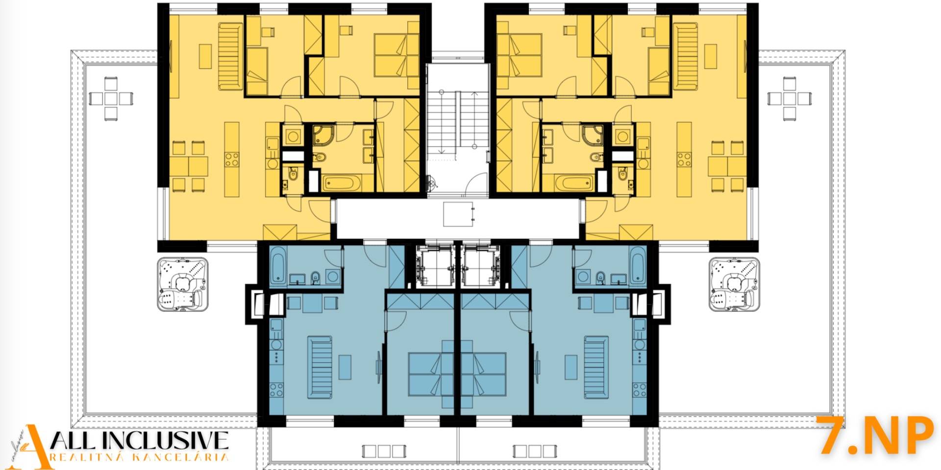
Ponuka bytov:
1-izbové byty (32,40m²) + balkón 4,14 m² – VYPREDANÉ
2-izbové byty (46,8 m²) + balkón 4,68 m² – VYPREDANÉ
2-izbové byty (54 m²) + balkón 4,68 m² – od 149 800€
3-izbové byty (78,30 m²) + balkón 6,12 m² – od 208 600€
3-izbové byty (85,60 m²) + terasa 76,84 m² – od 296 900€
CELÚ PONUKU BYTOV NÁJDETE TU:
https://www.dbnitra.sk/ponuka-bytov/
Rezervácie sú už spustené pre všetky bytové domy 1.1 – 1.5.
Využite možnosť kúpy už dnes – stačí zaplatiť 25 % z ceny, zvyšok až po kolaudácii.
Ak sa rozhodnete odstúpiť od rezervačnej zmluvy pred kolaudáciou, rezervačnú zálohu od vás odkúpime s výnosom 7,5 % p.a.
Štandard vybavenia:
Byty sa odovzdávajú v základnom štandarde, ktorý zahŕňa:
podlahy, dvere, sanitu, obklady a dlažby,
plastové okná, bielu maľovku,
kompletnú elektroinštaláciu,
kúpeľňu so sanitou,
prípravu na kuchynskú linku.
Na želanie je možné doplniť prípravu pre klimatizáciu, vonkajšie žalúzie alebo iné nadštandardné úpravy – za zvýhodnené ceny pri včasnej objednávke.
Parkovanie a doplnky:
Vonkajšie parkovacie státie – 7 500€
Kryté parkovacie státie – 12 500€
Pivničná kobka – 1 600€ / m² (priemerne 2,7 m²)
Balkón / terasa – zahrnuté v cene bytu (500€ / m²)
Projekt ponúka spolu 377 parkovacích miest, z toho 26 podzemných, 50 krytých, 114 vonkajších a 187 v parkovacom dome.
Základné informácie o projekte:
Plocha pozemku: 16 990 m²
Bytová plocha: 14 852 m²
Plocha zelene: 6 898 m²
Lokalita: Nitra – Mlynárce
Aktuálny stav: vo výstavbe (SO1.1 a SO1.2)
Investor: Dostupné bývanie Nitra s.r.o.
Stavebník: TEBS s.r.o.
Projektant: Ing. arch. Tibor Zelenický
Výhody projektu:
Nové, kvalitné byty za dostupné ceny
Tichá lokalita s množstvom zelene
Možnosť financovania až po kolaudácii
Výhodné investičné podmienky
Skvelá dopravná dostupnosť a občianska vybavenosť
DOHODNITE SI OBHLIADKU:
RÓBERT ŠIMON – REALITNÝ MAKLÉR
MOBIL:
E-MAIL:
•KONTAKT
CALL CENTRUM
Veronika Konkoly
ALL INCLUSIVE REAL Vám poskytne komplexné a profesionálne služby pri predaji, kúpe alebo prenájme nehnuteľností. V spolupráci s naším hypotekárnym partnerom Vám zaistíme najvýhodnejšie finančné riešenie pre Vašu nehnuteľnosť.
Vďaka našej externej spolupráci s renomovanou právnou kanceláriou, ako aj internému právnemu tímu, Vám zaručujeme vysoko kvalitný a nadštandardný právny servis, ktorý zabezpečí bezproblémový priebeh celého procesu.
Naša kancelária je hrdým členom najväčšieho združenia realitných kancelárií – REALITNÁ ÚNIA, a zaväzuje sa dodržiavať najprísnejšie štandardy a zásady kvality v poskytovaní našich služieb. Okrem toho, naša kancelária je poistená pre prípad zodpovednosti za spôsobené škody, čím garantujeme našim klientom maximálnu bezpečnosť a ochranu.
Nehnuteľnosť bola pripravená s homestaging oddelením a odprezentovaná s profesionálnym fotografom a kameramanom našej spoločnosti. Veľmi radi Vám pomôžeme pri efektívnom a dôstojnom predaji či prenájme aj Vašej nehnuteľnosti. Budeme sa tešiť, keď nás budete nezáväzne kontaktovať.
Text a fotografie sú autorským dielom realitnej kancelárie ALL INCLUSIVE REAL, s.r.o
Podrobné informácie k 1 izbovému bytu na predaj
| Celková rozloha | 58.68 m² |
|---|---|
| Úžitková plocha | 54 m² |
| Poschodie | 1/vyššie poschodie |
| Počet poschodí | 7 |
| Vlastníctvo | firemné |
| Stav | úplne prerobený |
| Status | aktívne |
| Odvoz odpadu | áno - separovaný |
| Internet | optika |
| Kúpeľňa | áno |
| Vykurovanie | spoločné |
| Balkón | áno |
| Pivnica | áno |
|---|---|
| Výťah | áno |
| Parkovanie | vonkajšie |
| Postavené z | iné |
| Zariadenie | nezariadený |
| Zateplený objekt | áno |
| Klimatizácia | áno |
| Energetický certifikát | áno |
| Bezbariérový prístup | áno |
| Okná | plastové |
| Novostavba | áno |
Ďalšie 1 izbové byty v Nitre na predaj
Hodnotenie ponuky - 1i - 2i - 3i BYTY V NOVOSTAVBE | NITRA - MLYNARCE
Analýza ponuky bytov v lokalite Nitra
V okrese Nitra je na ZoznamRealit.Sk 55 bytov na predaj a 43 bytov na prenájom.
Najdrahšia ponuka stojí 149.000,- € na predaj a najlacnejšia ponuka bytu pre lokalitu Nitra 107.900,- €.
V okrese Nitra pôsobí a na ZoznamRealit.Sk inzeruje 15 realitných kancelárií, z toho je 14 Overených členov ZRKS.
