2-izbový byt s predzáhradkou 135 m² a parkovaním v tichej časti BA
52259x zobrazená v zozname / 423x zobrazená detailne / 225x zobrazená detailne tento mesiac
Ponúkame na predaj slnečný 2-izbový byt s predzáhradkou a vlastným parkovacím státím v novostavbe v mestskej časti Bratislava – Vrakuňa.
Byt sa nachádza v menšom bytovom dome s iba ôsmimi bytovými jednotkami, hneď vedľa základnej školy a základnej umeleckej školy, v tichej lokalite.
Bytový dom bol skolaudovaný v roku 2024, ide o novostavbu a byt ešte nebol obývaný.
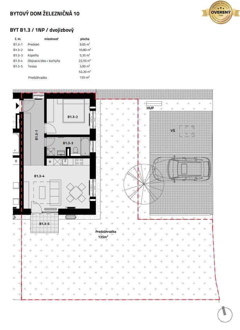
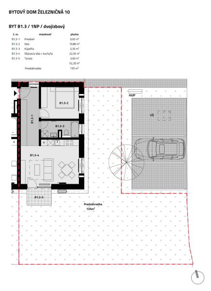
Byt je situovaný na prízemí a dispozične pozostáva z predsiene (9,65 m²), obývacej izby s kuchyňou (22,55 m²), spálne (10,80 m²), kúpeľne s toaletou (5,35 m²), terasy (3,90 m²) a predzáhradky s výmerou 135 m².
Celková výmera interiéru bytu je 48,35 m² + terasa 3,90 m² + predzáhradka 135 m².
Byt sa predáva v štandarde bez kuchynskej linky a je k dispozícii ihneď.
Bytový dom využíva solárne panely na ohrev teplej vody pre celý objekt.
Byt je vybavený lokálnou rekuperáciou a má prípravu na klimatizáciu.
Bytový dom má energetický certifikát s hodnotením A0.
Lokalita ponúka kompletnú občiansku vybavenosť a výbornú dostupnosť do centra mesta aj na diaľničný obchvat. V pešej dostupnosti sa nachádza nový prestupný terminál MHD a vlakov (TIOP), ako aj príroda – lesopark Vrakuňa, hrádza a Malý Dunaj – ideálne na voľnočasové aktivity, beh, bicykel alebo prechádzky so psom.
Cena bytu vrátane predzáhradky: 244.900€
Cena parkovacieho státia s prípravou na nabíjanie: 10.000€
K bytu je podmienkou kúpy aj parkovacie státie.
Kontakt:
Juraj Šuráni
www.surani.sk
Podrobné informácie
| Celková rozloha | 187 m² |
|---|---|
| Úžitková plocha | 52 m² |
| Poschodie | prízemie |
| Počet izieb | 2 |
| Vlastníctvo | firemné |
| Status | aktívne |
| Terasa | áno |
| Výťah | nie |
| Postavené z | Ytong |
|---|---|
| Zariadenie | nezariadený |
| Zateplený objekt | áno |
| Energetický certifikát | A |
| Predzáhradka | áno |
| Orientácia | juhovýchodná |
| Novostavba | áno |
Mohlo by vás tiež zaujímať
Predaj 2-izbový byt
43.94 m2
Bratislava - Vrakuňa
Cena v RK
Predaj 2-izbový byt
40 m2
Bratislava - Vrakuňa
75.000,- €
Predaj 2-izbový byt
40 m2
Bratislava - Vrakuňa
94.000,- €
Predaj 2-izbový byt
45 m2
Bratislava - Vrakuňa
Cena v RK
Predaj 2-izbový byt
52 m2
Bratislava - Vrakuňa
143.000,- €
Predaj 2-izbový byt
39 m2
Bratislava - Vrakuňa
78.000,- €
Predaj 2-izbový byt
43.31 m2
Bratislava - Vrakuňa
199.000,- €
Predaj 2-izbový byt
64 m2
Bratislava - Vrakuňa
194.000,- €
Predaj 2-izbový byt
43 m2
Bratislava - Vrakuňa
142.900,- €
Predaj 2-izbový byt
48 m2
Bratislava - Vrakuňa
228.400,- €
Predaj 2-izbový byt
55 m2
Bratislava - Vrakuňa
219.990,- €
Predaj 2-izbový byt
40 m2
Bratislava - Vrakuňa
Cena v RK
Predaj 2-izbový byt
41.29 m2
Bratislava - Vrakuňa
Cena v RK
Predaj 2-izbový byt
41 m2
Bratislava - Vrakuňa
159.500,- €
Vaše hodnotenie ponuky
Analýza ponuky bytov v lokalite Bratislava - Vrakuňa
V okrese Bratislava - Vrakuňa je na ZoznamRealit.Sk 21 bytov na predaj a 17 bytov na prenájom.
Najdrahšia ponuka stojí 244.900,- € na predaj a najlacnejšia ponuka bytu pre lokalitu Bratislava - Vrakuňa 75.000,- €.
V okrese Bratislava pôsobí a na ZoznamRealit.Sk inzeruje 88 realitných kancelárií, z toho je 57 Overených členov ZRKS.
