3 x 4iz. Novostavba Veselé pri Piešťanoch
8199x zobrazená v zozname / 268x zobrazená detailne / 268x zobrazená detailne tento mesiac
Ponúkame novostavbu 3x murovaného 4i rodinného domu v novovybudovanej lokalite s cestou, chodníkom a osvetlením, v obci Veselé. Nachádza sa na pozemku o rozlohe 510 m2. Domy sú samostatne stojace.
Rodinný dom A - voľný
Rodinný dom B - voľný
Rodinný dom C - voľný
Dom je postavený podľa najnovších enviromentálnych noriem a trendov.
Ekonomická trieda A0 – nízke náklady na energie.
Vďaka použitým materiálom a technológiám sú náklady na bývanie v tejto dobe minimálne.
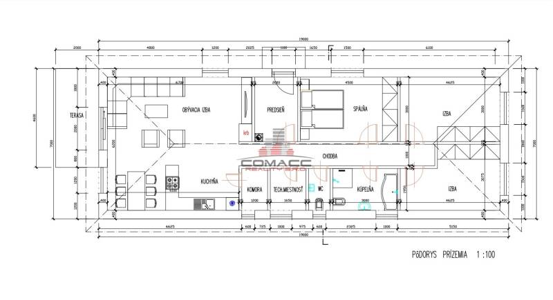
Dispozícia domu:
- vstupná chodba s priestorom na vstavanú skriňu,
- kuchyňa s komorou prepojená s obývačkou s výstupom na terasu,
- 2 x izba s priestorom na vstavanú skriňu,
- spálňa s priestorom na vstavanú skriňu,
- kúpeľňa s vaňou, sprchovým kútom, WC, 2 x umývadlo,
- samostatné WC,
- technická miestnosť,
Technický popis:
- veľkosť pozemku: 464 m2,
- zastavaná plocha domu: 133 m2,
- strecha Bramac - čierna - väzníkový krov
- murivo: tehla 30 cm
- zateplenie obvodových múrov: 15cm polystyrén, vonkajšia fasáda, trativody
- plastové okná - izolačné troj-sklo s vonkajšou povrchovou úpravou antracit
- vypínače a zásuvky
- sádrokartóny, stropná izolácia ISOVER, omietky( sieťka celoplošne), potery,
- príprava na alarm a kamerový systém,
- predpríprava na krb
Vykurovanie :
- vodovodné podlahové vykurovanie s tepelným čerpadlom, možnosť prípravy na fotovoltaiku, elek.žalúzie....
Dom je napojený na všetky inžinierske siete - elektrika, vodovod, kanalizácia
Dom sa predáva v stave holodom. Po dohode je možné dom dokončiť do štandardu, pričom Vám vieme vyhotoviť vizuál na mieru, ktorý Vám vyhotoví profesionálna dizajnérka a taktiež pomôže s výberom materiálov.
Nehnuteľnosť je možné prefinancovať prostredníctvom hypotekárneho úveru za spolupráci všetkých bánk. S financovaním Vám pomôže náš hypotekárny špecialista. Ku každému klientovi sa v rámci financovania pristupuje individuálne.
Obec Veselé je vzdialená od Piešťan len 10 km, napojenie na diaľnicu. Nachádza sa tu materská škola, základná škola, potraviny......
Pri kúpe Vám zabezpečíme kompletný servis od obhliadok až po spracovanie zmlúv a prevod nehnuteľností. Kontaktujte nás a my Vám radi pomôžeme. Pre podrobné informácie volajte .
PONUKU INZERUJE
Podrobné informácie k rodinnému domu na predaj
| Rozloha pozemku | 510 m² |
|---|---|
| Zastavaná plocha | 133 m² |
| Celková rozloha | 510 m² |
| Úžitková plocha | 120 m² |
| Poschodie | prízemie |
| Počet izieb | 4 |
| Vlastníctvo | osobné |
| Status | aktívne |
| Voda | verejný vodovod |
| El. napätie | 230/400V |
| Kanalizácia | áno |
| Kúpeľňa | áno |
|---|---|
| Vykurovanie | vlastné – kombinované |
| Parkovanie | áno |
| Inžinierske siete | áno |
| Postavené z | tehla |
| Zateplený objekt | áno |
| Krb | predpríprava |
| Energetický certifikát | A |
| Okná | plastové |
| Prístupová cesta | asfaltová cesta |
| Novostavba | áno |
Ďalšie rodinné domy Veselé na predaj
Predaj Rodinný dom
142.68 m2
Piešťany
360.000,- €
Predaj Rodinný dom
102 m2
Piešťany
260.000,- €
Predaj Rodinný dom
133 m2
Piešťany
208.000,- €
Predaj Rodinný dom
152 m2
Piešťany
315.000,- €
Predaj Rodinný dom
278.45 m2
Piešťany
199.000,- €
Predaj Rodinný dom
347 m2
Piešťany
33.000,- €
Predaj Rodinný dom
210 m2
Piešťany
599.900,- €
Predaj Rodinný dom
120 m2
Piešťany
182.900,- €
Predaj Rodinný dom
250 m2
Piešťany
Cena v RK
Predaj Rodinný dom
0 m2
Piešťany
80.000,- €
Predaj Rodinný dom
120 m2
Piešťany
204.000,- €
Predaj Rodinný dom
120 m2
Piešťany
134.900,- €
Predaj Rodinný dom
105.84 m2
Piešťany
269.000,- €
Predaj Rodinný dom
120 m2
Piešťany
182.900,- €
Predaj Rodinný dom
108 m2
Piešťany
149.000,- €
Predaj Rodinný dom
196 m2
Piešťany
220.000,- €
Predaj Rodinný dom
99 m2
Piešťany
189.900,- €
Predaj Rodinný dom
105 m2
Piešťany
219.900,- €
Hodnotenie ponuky - 3 x 4iz. Novostavba Veselé pri Piešťanoch
Analýza ponuky rodinných domov v lokalite Veselé, Piešťany
V lokalite Veselé, okres Piešťany je na ZoznamRealit.Sk 10 rodinných domov na predaj.
Najdrahšia ponuka stojí 699.900,- € na predaj a najlacnejšia ponuka rodinného domu pre lokalitu Veselé 33.000,- €.
V okrese Piešťany pôsobí a na ZoznamRealit.Sk inzeruje 6 realitných kancelárií, z toho je 5 Overených členov ZRKS.
