BA/STARÉ MESTO - Prenájom kompletne zariadeného 2i bytu s 2 balkónmi
250 € / mes K cene nájomného budú prirátane energie a internet, +250,00€ energie
28032x zobrazená v zozname / 292x zobrazená detailne / 292x zobrazená detailne tento mesiac
Ak hľadáte byt s pešou dostupnosťou do centra mesta, výbornými spojmi do celej Bratislavy či už električkou alebo autobusom s plnou občianskou vybavenosťou máme pre Vás skvelú ponuku.
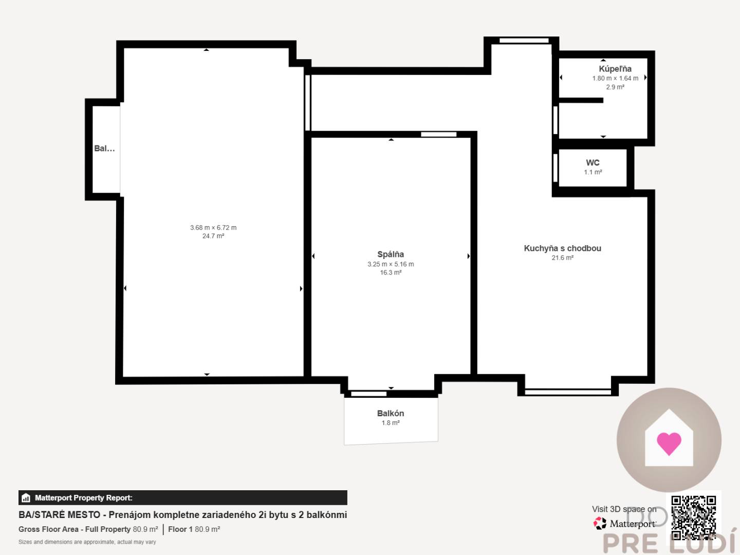
Exkluzívne ponúkame na dlhodobý prenájom výborne dispozične riešený kompletne zariadený 2 izbový byt s oddelenou kuchyňou, balkónom, francúzskym balkónikom a pivnicou v Starom meste na Krížnej ulici v blízkosti Trnavského mýta. Byt sa nachádza na 3. poschodí zo 6tich v zrekonštruovanom tehlovom bytovom dome s výťahom. Orientovaný je na juhovýchodnú stranu do vnútrobloku, čo zaručuje príjemnú svetelnosť počas celého dňa. Na oknách sú situované žalúzie a sieťky.
Samotný byt prešiel staršou kompletnou rekonštrukciou, kedy boli menené elektrické inštalácie, vodovodné inštalácie, plastové okná, dotiahnutý optický kábel, urobené nové stierky, interiérové dvere, plávajúce podlahy, keramická dlažba, WC, kúpeľňa so sprchovým kútom a obkladmi, zariadenie a taktiež komplet celá kuchyňa so vstavanými spotrebičmi.
Byt disponuje:
- vstupnou chodbou s botníkom, zrkadlom a vešiakom na bundy
- samostatnou plne vybavenou kuchyňou - kuchynská linka robená na mieru so zabudovanými spotrebičmi (varná doska, el. rúra, digestor), samostatne stojaca chladnička s mrazničkou, mikrovlnka a práčka, jedálenský stôl so 6 stoličkami a je vybavená aj riadom a komplet kuch. náčiním,
- priestrannou obývacou izbou, v ktorej sa nachádza sedačka, konferenčný stolík, koberec, obývačková skrinková zostava, TV, pracovný stolík so stoličkou, stojaca lampa a vychádza sa z nej na francúzsky balkónik (0,8 m2),
- priestrannou spálňou s manželskou posteľou s matracom, 2 x nočným stolíkom, kreslom, stojacou lampou a 3 šatníkovými skriňami. Vychádza sa z nej na balkón orientovaný do tichého vnútrobloku s množstvom zelene , ktorý zväčšuje plochu bytu o 4,2 m2,
- kúpeľňou so sprchovým kútom, umývadlom, zrkadlovou skrinkou a skrinkou pod umývadlom,
- samostatným WC
- bezpečnostnými dverami.
K bytu prislúcha aj latková pivnica o výmere 2 m2, ktorá je situovaná v suteréne bytového domu
Byt sa prenajíma kompletne zariadený a je k dispozícii ihneď. Je výborným riešením bývania pre jednotlivca, prípadne pracujúcich pár.
Cena mesačného nájmu je vo výške 850€ + 250€ je cena energii vrátane internetu . V prípade 3 osôb sa cena energii navýši o 50€.
Pri podpise nájomnej zmluvy sa skladá kaucia vo výške jednomesačného nájmu s energiami, ktorá je vratná po uplynutí nájomnej zmluvy.
V prípade záujmu o obhliadky ma neváhajte kontaktovať na tel. čísle .
Lokalita je s výbornou občianskou vybavenosťou a infraštruktúrou, bezproblémová dostupnosť mnohých spojov do mesta a ostatných častí Bratislavy -( Krížna ul.,Trnavské a Račianske mýto). Hneď pod domom sa nachádza Terno, kvetinárstvo a množstvo obchodov. V okolí sa nachádzajú potraviny(Lidl, Billa, Terno..), pekáreň, reštaurácia u Taliana, Domino Pizza, kaviarne, OC Centrál, Tržnica na Trnavskom mýte, budúci Istropolis, škola, škôlky, zdravotné stredisko a pod.
Parkovanie je zabezpečené formou parkovacej politiky Staré mesto.
PONUKU INZERUJE
Mgr. Juraj Novotný
realitný špecialista - senior
Podrobné informácie k 2 izbovému bytu na prenájom
| Celková rozloha | 72 m² |
|---|---|
| Úžitková plocha | 66.2 m² |
| Poschodie | 3/vyššie poschodie |
| Počet poschodí | 6 |
| Počet izieb | 2 |
| Vlastníctvo | firemné |
| Stav | úplne prerobený |
| Status | aktívne |
| Odvoz odpadu | áno - separovaný |
| Plyn | nie |
| Internet | optika |
| Kúpeľňa | áno |
| Vykurovanie | spoločné |
| Balkón | áno - 2 |
| Lódžia | nie |
| Terasa | nie |
|---|---|
| Pivnica | áno |
| Garáž | nie |
| Parkovanie | verejné |
| Postavené z | tehla |
| Zariadenie | zariadený |
| Zateplený objekt | áno |
| Krb | nie |
| Klimatizácia | nie |
| Káblová televízia | áno |
| Energetický certifikát | áno |
| Predzáhradka | nie |
| Bezbariérový prístup | nie |
| Okná | plastové |
| Orientácia | juhovýchodná |
Ďalšie 2 izbové byty v Starom Meste, Bratislava na prenájom
Prenájom 2-izbový byt
53 m2
Bratislava - Staré Mesto
890,- €/mes.
Prenájom 2-izbový byt
52 m2
Bratislava - Staré Mesto
950,- €
Prenájom 2-izbový byt
85 m2
Bratislava - Staré Mesto
840,- €/mes.
Prenájom 2-izbový byt
62 m2
Bratislava - Staré Mesto
1.900,- €/mes.
Prenájom 2-izbový byt
77 m2
Bratislava - Staré Mesto
800,- €/mes.
Prenájom 2-izbový byt
65 m2
Bratislava - Staré Mesto
1.000,- €/mes.
Prenájom 2-izbový byt
80 m2
Bratislava - Staré Mesto
1.490,- €/mes.
Prenájom 2-izbový byt
51.5 m2
Bratislava - Staré Mesto
950,- €
Prenájom 2-izbový byt
86 m2
Bratislava - Staré Mesto
800,- €
Prenájom 2-izbový byt
49 m2
Bratislava - Staré Mesto
950,- €/mes.
Prenájom 2-izbový byt
97 m2
Bratislava - Staré Mesto
1.500,- €
Prenájom 2-izbový byt
50 m2
Bratislava - Staré Mesto
750,- €
Prenájom 2-izbový byt
52 m2
Bratislava - Staré Mesto
1.600,- €/mes.
Prenájom 2-izbový byt
56 m2
Bratislava - Staré Mesto
1.030,- €/mes.
Prenájom 2-izbový byt
49 m2
Bratislava - Staré Mesto
1.390,- €/mes.
Prenájom 2-izbový byt
75 m2
Bratislava - Staré Mesto
1.190,- €/mes.
Prenájom 2-izbový byt
47 m2
Bratislava - Staré Mesto
770,- €/mes.
Prenájom 2-izbový byt
50 m2
Bratislava - Staré Mesto
1.200,- €/mes.
Hodnotenie ponuky - BA/STARÉ MESTO - Prenájom kompletne zariadeného 2i bytu s 2 balkónmi
Analýza ponuky bytov v lokalite Bratislava - Staré Mesto
V okrese Bratislava - Staré Mesto je na ZoznamRealit.Sk 165 bytov na predaj a 359 bytov na prenájom.
Najdrahšia ponuka stojí 2.100,- €/mes. na prenájom a najlacnejšia ponuka bytu pre lokalitu Bratislava - Staré Mesto 520,- €/mes..
V okrese Bratislava pôsobí a na ZoznamRealit.Sk inzeruje 86 realitných kancelárií, z toho je 57 Overených členov ZRKS.
