BA/STARÉ MESTO - Prenájom kompletne zariadeného 2i bytu s 2 balkónmi
250,00 € / mes K cene nájomného budú prirátane energie a internet, +energie
35177x zobrazená v zozname / 481x zobrazená detailne / 427x zobrazená detailne tento mesiac
Ak hľadáte byt s pešou dostupnosťou do centra mesta, výbornými spojmi do celej Bratislavy či už električkou alebo autobusom s plnou občianskou vybavenosťou máme pre Vás skvelú ponuku.
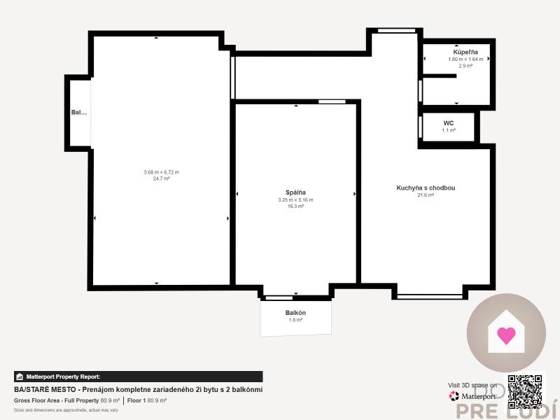
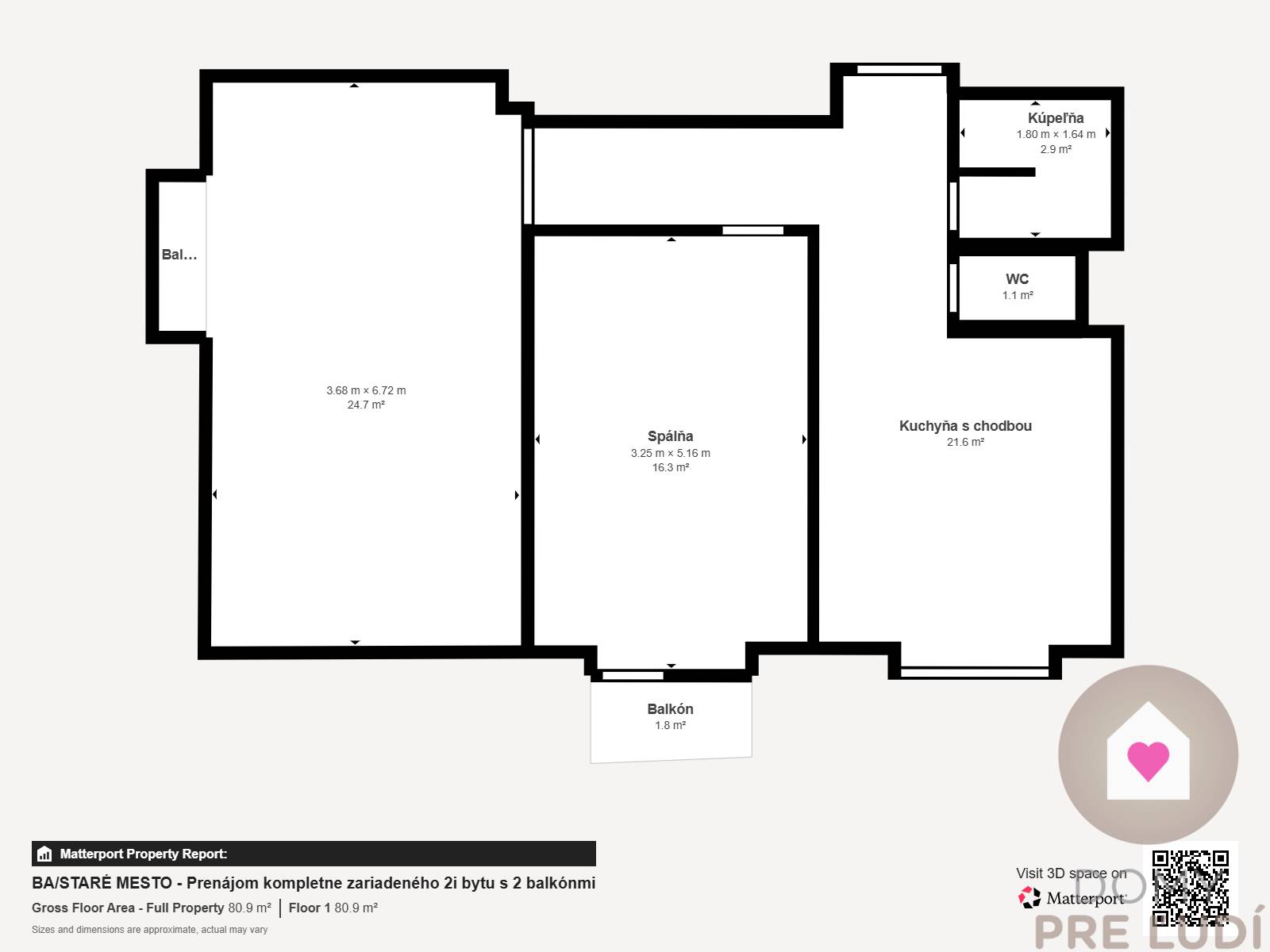
Exkluzívne ponúkame na dlhodobý prenájom výborne dispozične riešený kompletne zariadený 2 izbový byt s oddelenou kuchyňou, balkónom, francúzskym balkónikom a pivnicou v Starom meste na Krížnej ulici v blízkosti Trnavského mýta. Byt sa nachádza na 3. poschodí zo 6tich v zrekonštruovanom tehlovom bytovom dome s výťahom. Orientovaný je na juhovýchodnú stranu do vnútrobloku, čo zaručuje príjemnú svetelnosť počas celého dňa. Na oknách sú situované žalúzie a sieťky.
Samotný byt prešiel staršou kompletnou rekonštrukciou, kedy boli menené elektrické inštalácie, vodovodné inštalácie, plastové okná, dotiahnutý optický kábel, urobené nové stierky, interiérové dvere, plávajúce podlahy, keramická dlažba, WC, kúpeľňa so sprchovým kútom a obkladmi, zariadenie a taktiež komplet celá kuchyňa so vstavanými spotrebičmi.
Byt disponuje:
- vstupnou chodbou s botníkom, zrkadlom a vešiakom na bundy
- samostatnou plne vybavenou kuchyňou - kuchynská linka robená na mieru so zabudovanými spotrebičmi (varná doska, el. rúra, digestor), samostatne stojaca chladnička s mrazničkou, mikrovlnka a práčka, jedálenský stôl so 6 stoličkami a je vybavená aj riadom a komplet kuch. náčiním,
- priestrannou obývacou izbou, v ktorej sa nachádza sedačka, konferenčný stolík, koberec, obývačková skrinková zostava, TV, pracovný stolík so stoličkou, stojaca lampa a vychádza sa z nej na francúzsky balkónik (0,8 m2),
- priestrannou spálňou s manželskou posteľou s matracom, 2 x nočným stolíkom, kreslom, stojacou lampou a 3 šatníkovými skriňami. Vychádza sa z nej na balkón orientovaný do tichého vnútrobloku s množstvom zelene , ktorý zväčšuje plochu bytu o 4,2 m2,
- kúpeľňou so sprchovým kútom, umývadlom, zrkadlovou skrinkou a skrinkou pod umývadlom,
- samostatným WC
- bezpečnostnými dverami.
K bytu prislúcha aj latková pivnica o výmere 2 m2, ktorá je situovaná v suteréne bytového domu
Byt sa prenajíma kompletne zariadený a je k dispozícii ihneď. Je výborným riešením bývania pre jednotlivca, prípadne pracujúcich pár.
Cena mesačného nájmu je vo výške 700€ + 250€ je cena energii vrátane internetu . V prípade 3 osôb sa cena energii navýši o 50€.
Pri podpise nájomnej zmluvy sa skladá kaucia vo výške jednomesačného nájmu s energiami, ktorá je vratná po uplynutí nájomnej zmluvy.
V prípade záujmu o obhliadky ma neváhajte kontaktovať na tel. čísle .
Lokalita je s výbornou občianskou vybavenosťou a infraštruktúrou, bezproblémová dostupnosť mnohých spojov do mesta a ostatných častí Bratislavy -( Krížna ul.,Trnavské a Račianske mýto). Hneď pod domom sa nachádza Terno, kvetinárstvo a množstvo obchodov. V okolí sa nachádzajú potraviny(Lidl, Billa, Terno..), pekáreň, reštaurácia u Taliana, Domino Pizza, kaviarne, OC Centrál, Tržnica na Trnavskom mýte, budúci Istropolis, škola, škôlky, zdravotné stredisko a pod.
Parkovanie je zabezpečené formou parkovacej politiky Staré mesto.
Aká je občianska vybavenosť na ulici Krížna v Bratislave - Starom Meste?
Krížna v Bratislave – Starom Meste je mestská adresa s výbornou dostupnosťou a priamym kontaktom s centrom. V blízkosti Trnavského mýta nájdete prestupný uzol električiek aj autobusov, vďaka čomu je spojenie do všetkých častí mesta bezproblémové. Do srdca mesta sa dostanete pohodlne aj chôdzou, čo ocenia najmä nájomníci, ktorí chcú mať pracovné povinnosti či voľný čas na dosah.
Bežné nákupy a služby zvládnete v okolí za pár krokov: pri lekárni Media vo vzdialenosti 32 m vybavíte zdravotné potreby, rýchle jedlo ponúka pobočka Domino’s vo vzdialenosti 37 m a na kávu si môžete zájsť do kaviarne Café Di Praga vo vzdialenosti 79 m. Na osvieženie poteší zmrzlináreň Džeelato vo vzdialenosti 86 m. Pre milovníkov lokálnych obchodov je hneď pri dome obchod Ollam Atelier vo vzdialenosti 5 m.
Po práci či cez víkend príde vhod bar ELEMENT vo vzdialenosti 88 m. V širšom okolí sú dostupné aj väčšie nákupné a voľnočasové možnosti, ako OC Centrál či Tržnica na Trnavskom mýte, spolu s desiatkami kaviarní a služieb na Krížnej a priľahlých uliciach. Táto poloha tak spája mestský život so všetkým, čo k pohodlnému bývaniu patrí.
Lokalita je vhodná pre jednotlivcov aj pracujúce páry, ktoré ocenia jednoduché napojenie MHD, krátku vzdialenosť do centra a kompletnú občiansku vybavenosť priamo v susedstve. Parkovanie v zóne Staré Mesto je riešené miestnou parkovacou politikou.
Okolie ulice Krížna v Bratislave - Starom Meste ponúka tieto možnosti:
Obchod: Ollam Atelier - 5 m
Lekáreň: Media - 32 m
Rýchle občerstvenie: Dominos - 37 m
Administratíva / kancelárie: Mgr. Jana Lenková - 40 m
Kaviareň: Café Di Praga - 79 m
Zmrzlina: Džeelato - 86 m
Bar: ELEMENT - 88 m
PONUKU INZERUJE
Mgr. Juraj Novotný
realitný špecialista - senior
Podrobné informácie k 2 izbovému bytu na prenájom
| Celková rozloha | 72 m² |
|---|---|
| Úžitková plocha | 66.2 m² |
| Poschodie | 3/vyššie poschodie |
| Počet poschodí | 6 |
| Počet izieb | 2 |
| Vlastníctvo | firemné |
| Stav | úplne prerobený |
| Status | aktívne |
| Odvoz odpadu | áno - separovaný |
| Plyn | nie |
| Internet | optika |
| Kúpeľňa | áno |
| Vykurovanie | spoločné |
| Balkón | áno - 2 |
| Lódžia | nie |
| Terasa | nie |
|---|---|
| Pivnica | áno |
| Garáž | nie |
| Parkovanie | verejné |
| Postavené z | tehla |
| Zariadenie | zariadený |
| Zateplený objekt | áno |
| Krb | nie |
| Klimatizácia | nie |
| Káblová televízia | áno |
| Energetický certifikát | áno |
| Predzáhradka | nie |
| Bezbariérový prístup | nie |
| Okná | plastové |
| Orientácia | juhovýchodná |
Ďalšie 2 izbové byty v Starom Meste, Bratislava na prenájom
Prenájom 2-izbový byt
75 m2
Bratislava - Staré Mesto
750,- €
Prenájom 2-izbový byt
68 m2
Bratislava - Staré Mesto
1.000,- €/mes.
Prenájom 2-izbový byt
78 m2
Bratislava - Staré Mesto
1.500,- €/mes.
Prenájom 2-izbový byt
91.45 m2
Bratislava - Staré Mesto
1.350,- €/mes.
Prenájom 2-izbový byt
45 m2
Bratislava - Staré Mesto
1.100,- €/mes.
Prenájom 2-izbový byt
62 m2
Bratislava - Staré Mesto
690,- €
Prenájom 2-izbový byt
60 m2
Bratislava - Staré Mesto
900,- €/mes.
Prenájom 2-izbový byt
59 m2
Bratislava - Staré Mesto
700,- €/mes.
Prenájom 2-izbový byt
55 m2
Bratislava - Staré Mesto
790,- €/mes.
Prenájom 2-izbový byt
55 m2
Bratislava - Staré Mesto
940,- €/mes.
Prenájom 2-izbový byt
48 m2
Bratislava - Staré Mesto
1.150,- €/mes.
Prenájom 2-izbový byt
110 m2
Bratislava - Staré Mesto
1.500,- €/mes.
Prenájom 2-izbový byt
54.9 m2
Bratislava - Staré Mesto
1.000,- €/mes.
Prenájom 2-izbový byt
85 m2
Bratislava - Staré Mesto
1.390,- €
Prenájom 2-izbový byt
51.35 m2
Bratislava - Staré Mesto
800,- €/mes.
Prenájom 2-izbový byt
61.75 m2
Bratislava - Staré Mesto
1.100,- €/mes.
Prenájom 2-izbový byt
50 m2
Bratislava - Staré Mesto
1.000,- €/mes.
Prenájom 2-izbový byt
55 m2
Bratislava - Staré Mesto
870,- €/mes.
Hodnotenie ponuky - BA/STARÉ MESTO - Prenájom kompletne zariadeného 2i bytu s 2 balkónmi
Analýza ponuky bytov v lokalite Bratislava - Staré Mesto
V okrese Bratislava - Staré Mesto je na ZoznamRealit.Sk 151 bytov na predaj a 346 bytov na prenájom.
Najdrahšia ponuka stojí 2.100,- €/mes. na prenájom a najlacnejšia ponuka bytu pre lokalitu Bratislava - Staré Mesto 600,- €/mes..
V okrese Bratislava pôsobí a na ZoznamRealit.Sk inzeruje 91 realitných kancelárií, z toho je 59 Overených členov ZRKS.
