BD - RELAX, GARSÓNKA, 2. NP, 30, 44 m2; PREDANÉ;
136x zobrazená v zozname / 25002x zobrazená detailne / 50x zobrazená detailne tento mesiac
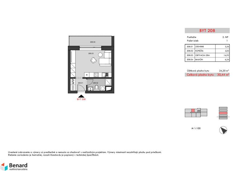
BYTOVÝ DOM RELAX - GARSÓNKA, BALKÓN, č. 208
Bytový dom RELAX vyrastie vedľa ŠRC v peknej časti prvých bytových domov postavených na sídlisku Západ, s ktorými bude tvoriť harmonickú súhru. Už samotný názov Relax hovorí o jeho charakter a význame a preto chce byť oddychovým a relaxačným miestom na bývanie. K tomu ho bude predurčovať jeho poloha, nápaditosť, dostupnosť, veľkosť jednotlivých miestností, hlavne priestranné balkóny, terasy a na 1.NP byty s predzáhradkami, ktoré sú najvhodnejším miestom na oddych a relax.
Bytový dom RELAX bude tvorený so 4 podlaží s výťahom, kde bude 27 bytov a to:
2 izbový byt - 15x,
3 izbový byt, - 9x,
4 izbový byt - 3x,
Parkovacie miesta vnútorné - 22x,
Parkovacie miesta vonkajšie - 18x
Pivnica pridelená ku každému bytu;
Rozloha bytov sa pohybuje od 46m2 do 133m2 vrátane rozlohy balkóna a terasy. Výhodou niektorých prízemných bytov bude predzáhradka.
Byty ponúkame na predaj v prevedený ŠTANDARD:
- podlahy, dvere, obklady a dlažby
- sanita v kúpeľni a v toalete
- kuchynská linka vrátane batérie, drezu a spotrebičov (digestor, indukčná varná doska, rúra na pečenie, chladnička s mrazničkou),
Dokončená bude kúpeľňa, WC, kuchyňa, dvere, podlahy, ktoré si vyberiete so širokej ponuky jednotlivých materiálov, prevedení a ceny.
Základné komponenty jednotlivých bytov, bytového domu:
Fasádny zatepľovací systém z minerálnej vlny;
Nepochôdznu strechu so zabezpečeným tepelným odporom;
Obvodové murivo a priečky – PHOROTERM (PHOROTERM AKU);
Terasa, balkón - keramická dlažba protišmyková na rektifikačných terčoch;
Plastové okná - s izolačným trojsklom,
Vchodové dvere - protipožiarne plné,
Podlahy – hladký poter pripravený na pokládku podlahovej krytiny,
Steny – omietnuté interiérovou omietkou s finálnou vyrovnávacou stierkou, biele maľby stien a stropov;
Kúrenie, ohrev vody – plynový kotol, podlahové kúrenie;
Bytový elektrický rozvádzač - rozvody elektriny v miestnostiach ukončené zásuvkami a vypínačmi,
Vodovod – teplá a studená voda v kuchyni, kúpeľni, WC,
Kanalizačné potrubia v kuchyni, kúpeľni a WC,
Ventily pre odstavenie vody;
Rozvod s dátovými káblami do každej izby;
Začiatok výstavby: 2. kvartál 2023
Ukončenie výstavby: 4. kvartál 2025
Pre viac informácii kontaktujte makléra, v prípade záujmu – osobné stretnutie.
PONUKU INZERUJE
Mgr. Matej Jeleň
Certifikovaný realitný maklér
Podrobné informácie k garsónke na predaj
| Celková rozloha | 30.44 m² |
|---|---|
| Úžitková plocha | 24.2 m² |
| Poschodie | neuvedené |
| Počet poschodí | 4 |
| Počet izieb | 1 |
| Status | predané |
| Internet | lokálny poskytovateľ |
| Balkón | áno |
| Pivnica | áno |
| Výťah | áno |
|---|---|
| Postavené z | Porotherm |
| Zateplený objekt | áno |
| Káblová televízia | áno |
| Energetický certifikát | áno |
| Bezbariérový prístup | áno |
| Okná | plastové |
| Orientácia | severovýchodná |
| Novostavba | áno |
