CHORVÁTSKO - VÝBORNÁ PONUKA! - 3-izbový apartmán - SUKOŠAN, Zadar
15740x zobrazená v zozname / 651x zobrazená detailne / 319x zobrazená detailne tento mesiac
KAL26A04,
Realitná kancelária AMAXADES REALITY sprostredkuje predaj krásneho 3-izbového apartmánu v Chorvátsku vo veľmi obľúbenom mestečku SUKOŠAN, ktorý je vzdialený iba 10 km od centra mesta Zadar a 8 km od letiska.
Apartmán sa nachádza v novostavbe bytového domu z roku 2018 a od pláže je vzdialený iba 130 m. V uzavretom, krásne udržiavanom dvore je spoločný bazén a prístrešok s krbom na grilovanie. K apartmánu patrí jedno parkovacie miesto.
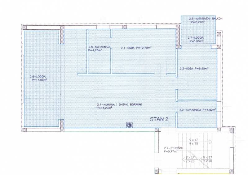
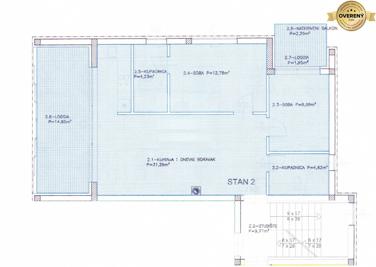
Apartmán sa nachádza na 1. poschodí. Jeho výmera je 61,9 m2 + lodžia 4,24 m2 + terasa s výhľadom na more 14,95 m2.
Apartmán má 2 kúpeľne, 2 spálne (jedna z nich má lodžiu) a priestrannú kuchynsko-obývaciu časť s jedálňou s prístupom na terasu.
Apartmán má v každej izbe klimatizáciu a v kúpeľniach je podlahové vykurovanie. Na oknách sú sieťky proti hmyzu a vonkajšie rolety.
Inžinierske siete: voda, elektrina, septik
Predajná cena apartmánu je 297.000EUR
+ kupujúci platí realitný a právny servis zahŕňajúci právne dokumenty, prekladateľské služby a notárske poplatky vo výške 3% z kúpnej ceny.
Viac nehnuteľností na predaj v Chorvátsku nájdete na našej webovej stránke.
V prípade záujmu o obhliadku nehnuteľnosti nás kontaktujte:
, ,
Podrobné informácie k 3 izbovému bytu na predaj
| Úžitková plocha | 61.9 m² |
|---|---|
| Poschodie | 1/vyššie poschodie |
| Počet poschodí | 2 |
| Počet izieb | 3 |
| Vlastníctvo | osobné |
| Stav | úplne prerobený |
| Status | aktívne |
| Odvoz odpadu | áno |
| Internet | wifi |
| Kúpeľňa | áno |
| Vykurovanie | vlastné - elektrické |
| Lódžia | áno |
| Terasa | áno |
|---|---|
| Parkovanie | vlastné vyhradené |
| Postavené z | tehla |
| Zariadenie | zariadený |
| Zateplený objekt | áno |
| Bazén | exteriérový |
| Klimatizácia | áno |
| Káblová televízia | áno |
| Energetický certifikát | áno |
| Okná | plastové |
| Novostavba | áno |
