Dom na predaj Nová Ves nad Žitavou, pozemok 732 m2
1390x zobrazená v zozname / 147x zobrazená detailne / 147x zobrazená detailne tento mesiac
Exkluzívne ponúkam na predaj rodinný dom v obci Nová Ves nad Žitavou, okres Nitra.
Samostatne stojaci prízemný rodinný dom je postavený v rokoch 1964-1970, stavebný materiál pálená tehla, strešná krytina je pálená keramická škridľa. V roku 2018 prebehla jeho rozsiahla rekonštrukcia –nové stierky, menené rozvody elektriky, vody, plynu, kúrenia, odpadov, zníženie stropov, bodové osvetlenie, nová kúpeľňa s WC, obklady, dlažby, sanita, plastové vchodové dvere a okná so sieťkami a žalúziami. Podlahy sú kombinované - keramická dlažba a plávajúca podlaha. Vykurovanie je ústredné plynové + krbové kachle v obývacej izbe. Radiátory Korádo, ohrev vody zabezpečuje plynový kotol Junkers. Dom je zateplený s farebnou fasádou.
Inžinierske siete - elektrika 230/400 V, plyn, obecná voda. Na pozemku je vlastná kopaná studňa. Dom je odkanalizovaný do žumpy 10 m3.
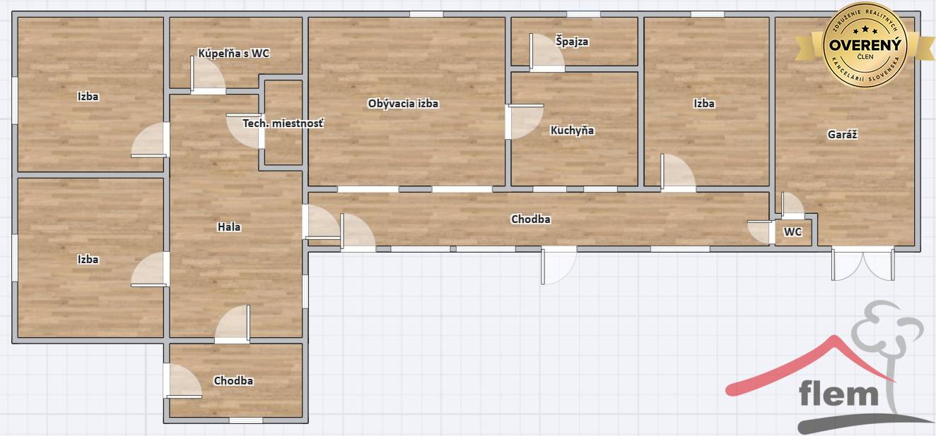
Úžitková plocha domu je cca 128 m2. Dispozičné riešenie je nasledovné – dom je čiastočne podpivničený. Do suterénu sú 2 vstupy. V prízemí je vstupná chodba opticky prepojená s kuchyňou a obývacou izbou, 3 neprechodné izby, prechodná hala, kúpeľňa s WC, špajza, technická miestnosť. V podstreší je povalový priestor.
Súčasťou domu je garáž, samostatné WC a komora.
Celková rozloha pozemku je 732 m2. Pozemok je oplotený, slnečný, rovinatý.
Na nehnuteľnosť nie je vypracovaný energetický certifikát.
Príjemným bonusom tejto ponuky je poloha v centre obce v blízkosti rozľahlého parku, kompletná občianska vybavenosť v dynamicky sa rozvíjajúcej obci a dobré dopravné spojenie do okolitých miest Vráble, Nitra, Zlaté Moravce.
Dom v centre obce je vhodný na trvalé bývanie, prípadne na podnikateľské účely-prenájom.
Ak Vás naša ponuka zaujala, obhliadku si dohodnite na tel. čísle alebo píšte na
Všetky naše ponuky nájdete na flem.sk
Podrobné informácie k rodinnému domu na predaj
| Rozloha pozemku | 732 m² |
|---|---|
| Zastavaná plocha | 170 m² |
| Úžitková plocha | 128 m² |
| Poschodie | prízemie |
| Počet poschodí | 1 |
| Počet izieb | 5 |
| Vlastníctvo | osobné |
| Stav | čiastočne prerobený |
| Status | aktívne |
| Odvoz odpadu | áno |
| Voda | studňa a vodovod |
| El. napätie | 230/400V |
| Plyn | áno |
| Kanalizácia | nie |
| Internet | lokálny poskytovateľ |
| Kúpeľňa | sprchovací kút |
| Vykurovanie | vlastné – kombinované |
| Balkón | nie |
|---|---|
| Lódžia | nie |
| Terasa | nie |
| Pivnica | áno |
| Garáž | áno - 1 auto |
| Inžinierske siete | áno |
| Postavené z | tehla |
| Zateplený objekt | áno |
| Strecha | pôvodná |
| Krb | áno |
| Klimatizácia | nie |
| Energetický certifikát | nie |
| Predzáhradka | áno |
| Bezbariérový prístup | nie |
| Okná | plastové |
| Terén | rovina |
| Prístupová cesta | asfaltová cesta |
Ďalšie rodinné domy Nová Ves nad Žitavou na predaj
Predaj Rodinný dom
137 m2
Nitra
234.900,- €
Predaj Rodinný dom
125 m2
Nitra
174.900,- €
Predaj Rodinný dom
215 m2
Nitra
265.000,- €
Predaj Rodinný dom
146 m2
Nitra
246.900,- €
Predaj Rodinný dom
165 m2
Nitra
352.900,- €
Predaj Rodinný dom
125 m2
Nitra
150.000,- €
Predaj Rodinný dom
110 m2
Nitra
168.000,- €
Predaj Rodinný dom
147 m2
Nitra
123.600,- €
Predaj Rodinný dom
120 m2
Nitra
190.000,- €
Predaj Rodinný dom
95 m2
Nitra
189.000,- €
Predaj Rodinný dom
101 m2
Nitra
265.000,- €
Predaj Rodinný dom
101 m2
Nitra
265.000,- €
Predaj Rodinný dom
125 m2
Nitra
249.000,- €
Predaj Rodinný dom
72 m2
Nitra
189.000,- €
Predaj Rodinný dom
90 m2
Nitra
139.900,- €
Predaj Rodinný dom
161.6 m2
Nitra
189.000,- €
Predaj Rodinný dom
160 m2
Nitra
115.000,- €
Predaj Rodinný dom
137 m2
Nitra
Cena v RK
Hodnotenie ponuky - Dom na predaj Nová Ves nad Žitavou, pozemok 732 m2
Analýza ponuky rodinných domov v lokalite Nová Ves nad Žitavou, Nitra
V lokalite Nová Ves nad Žitavou, okres Nitra je na ZoznamRealit.Sk 2 rodinné domy na predaj.
Najdrahšia ponuka stojí 850.000,- € na predaj a najlacnejšia ponuka rodinného domu pre lokalitu Nová Ves nad Žitavou 33.000,- €.
V okrese Nitra pôsobí a na ZoznamRealit.Sk inzeruje 13 realitných kancelárií, ktoré sú zároveň Overeným členom ZRKS.
