Exkluzívne na predaj, rodinný dom, obec Harichovce, okres Spišská Nová
9884x zobrazená v zozname / 252x zobrazená detailne / 252x zobrazená detailne tento mesiac
Exkluzívne ponúkame na predaj novostavbu rodinného domu, obec Harichovce, okres Spišská Nová Ves. Rodinný dom je riešený ako dom s dvomi bytovými jednotkami (tzv. dvojdom), nachádza sa na slnečnom rovinatom pozemku a každý pozostáva z dvoch nadzemných podlaží,
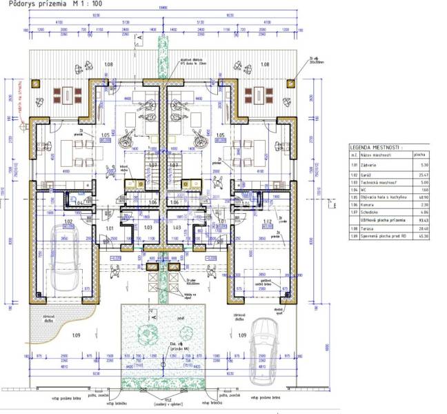
-1. NP: predsieň, obývacia izba s krbom a vstupom na terasu, kuchyňa s jedálňou, komora, technická miestnosť, WC, schodište, garáž,
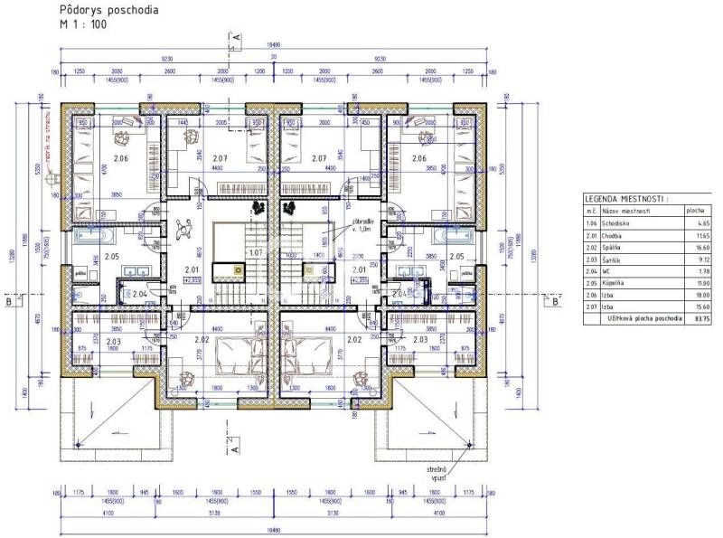
-2. NP: chodba, 3 samostatné obytné miestnosti (jedna so šatníkom), kúpeľňa, WC,
-rozloha pozemku približne : 520m² (upraví geometrický plán),
-zastavaná plocha: 133,4m²,
-úžitková plocha: 151,7m² + 25,5m² garáž,
-stavebný materiál: pórobetónové tvárnice 300mm, zateplenie polystyrén 150mm,
-strešná krytina: PVC fólia,
-okná: plastové vo farbe antracit s izolačným trojsklom,
-vchodové dvere: hliník,
-vykurovanie: elektrické podlahové,
-ohrev TUV: elektrický bojler,
-komín
-napojenie na inžinierske siete: elektrická energia, verejná kanalizácia, obecný vodovod,
-energetický certifikát: nemá - po kolaudácii bude spĺňať energetickú triedu A0,
-príslušenstvo: terasa 28,40m².
-prevedenie: ŠTANDARD - laminátové podlahy, sádrokartónové stropy, interiérové dvere s obložkami, dlažby, obklady, sanita, svietidlá, bojler + základné terénne úpravy.
Po vzájomnej dohode je možný predaj aj v štádiu holodom, resp. dokončenie interiéru na kľúč. Cena predávanej nehnuteľnosti v prevedení štandard je 325.000,-€ a zahŕňa všetky poplatky spojené s prevodom vlastníckeho práva. Právny servis zabezpečujeme prostredníctvom advokátskej kancelárie. V prípade záujmu Vám ponúkame bezplatné finančné poradenstvo naším odborníkom spojené s financovaním nehnuteľnosti. Pre viac informácií nás neváhajte kontaktovať na tel. č.: .
PONUKU INZERUJE
Podrobné informácie k rodinnému domu na predaj
| Rozloha pozemku | 540 m² |
|---|---|
| Zastavaná plocha | 133.4 m² |
| Úžitková plocha | 151.7 m² |
| Počet izieb | 4 |
| Vlastníctvo | osobné |
| Status | aktívne |
| Terasa | áno |
|---|---|
| Garáž | áno |
| Postavené z | tehla |
| Zariadenie | zariadený |
| Terén | rovina |
| Novostavba | áno |
Ďalšie rodinné domy Harichovce na predaj
Predaj Rodinný dom
282 m2
Spišská Nová Ves
Cena v RK
Predaj Rodinný dom
100 m2
Spišská Nová Ves
85.000,- €
Predaj Rodinný dom
215 m2
Spišská Nová Ves
155.000,- €
Predaj Rodinný dom
91.2 m2
Spišská Nová Ves
205.000,- €
Predaj Rodinný dom
236 m2
Spišská Nová Ves
94.000,- €
Predaj Rodinný dom
105 m2
Spišská Nová Ves
244.999,- €
Predaj Rodinný dom
241 m2
Spišská Nová Ves
Cena v RK
Predaj Rodinný dom
281.21 m2
Spišská Nová Ves
180.000,- €
Predaj Rodinný dom
153 m2
Spišská Nová Ves
174.000,- €
Predaj Rodinný dom
99 m2
Spišská Nová Ves
162.000,- €
Predaj Rodinný dom
153 m2
Spišská Nová Ves
129.990,- €
Predaj Rodinný dom
205 m2
Spišská Nová Ves
219.000,- €
Predaj Rodinný dom
95.84 m2
Spišská Nová Ves
319.000,- €
Predaj Rodinný dom
288 m2
Spišská Nová Ves
295.000,- €
Predaj Rodinný dom
80 m2
Spišská Nová Ves
154.000,- €
Predaj Rodinný dom
120 m2
Spišská Nová Ves
235.000,- €
Predaj Rodinný dom
158.3 m2
Spišská Nová Ves
145.000,- €
Predaj Rodinný dom
100.3 m2
Spišská Nová Ves
239.000,- €
Hodnotenie ponuky - Exkluzívne na predaj, rodinný dom, obec Harichovce, okres Spišská Nová
Analýza ponuky rodinných domov v lokalite Harichovce, Spišská Nová Ves
V lokalite Harichovce, okres Spišská Nová Ves je na ZoznamRealit.Sk 3 rodinné domy na predaj.
Najdrahšia ponuka stojí 397.000,- € na predaj a najlacnejšia ponuka rodinného domu pre lokalitu Harichovce 53.500,- €.
V okrese Spišská Nová Ves pôsobí a na ZoznamRealit.Sk inzerujú 3 realitné kancelárie, z toho sú 2 Overeným členom ZRKS.
