Exkluzívny byt pod Slavínom s terasou a výhľadom na Bratislavu
29290x zobrazená v zozname / 239x zobrazená detailne / 239x zobrazená detailne tento mesiac
Realitná kancelária RIVERS REAL ESTATE ponúka na predaj luxusný, presvetlený štvor-izbový byt pod Slavínom s rozlohou 244 m² a terasou ponúkajúcou panoramatické výhľady na Bratislavu.
Referencia makléra – prečo si vybrať práve túto nehnuteľnosť:
✅ odporúčam náročnému klientovi, ktorý hľadá priestor bez kompromisov
✅ priestranné a svetlé bývanie, so štedrým exteriérom s výhľadom na unikátne dominanty mesta
✅ prestížna lokalita
✅ tri komfortné parkovacie miesta vedľa seba
✅ zriedkavá ponuka, ktorá je kombináciou kvality, polohy a reprezentatívneho priestoru na bývanie alebo prestížnu investíciu
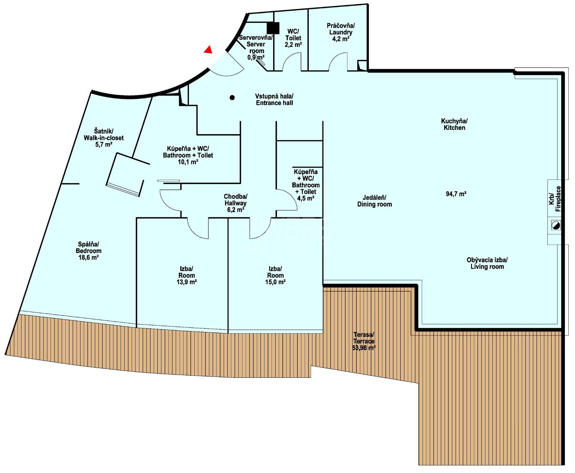
BYT
• 4-izbový byt — obývacia izba s kuchyňou a jedálňou hlavným výstupom na terasu + 3 spálne + 2 kúpeľne s WC + samostatné WC + práčovňa + walk-in šatník + dostatok úložných priestorov
• Výmera: 244,01 m² celkom (190,03 m² byt príslušenstvom + 53,98 m² terasa s prístupom zo všetkých izieb)
• Východná orientácia a výborné presvetlenie celého bytu, naviac svetlíky
• Luxusný komfort v hlavnej spálni - walk-in šatník a en-suite kúpeľňa (dve umývadlá, vaňa, sprcha, WC, bidet)
• Terasa pozdĺž všetkých izieb — panoramatické výhľady na mesto
• 3 komfortné parkovacie státia vedľa seba spolu za cenu 150.000EUR
• Veľkoplošné hliníkové okná s posuvným systémom a elektricky ovládané exteriérové žalúzie
• Vlastné kúrenie bytu (samostatné nastavenie, expanzná nádoba, komfortný zásobník vody)
• Krb
• Klimatizácia v každej miestnosti
• Priestranný vzdušný interiér s vyššími stropmi niekde až 3,3 m, vysoká svetelnosť a reprezentatívna dispozícia
BYTOVÝ DOM
Tehlová novostavba z roku 2006
Renomovaný developer a kvalitné spracovanie
Bránou uzavretý a bezpečný vstup
Unikátne, reprezentatívne a dobre udržiavané spoločné priestory
LOKALITA
Staré Mesto — Palisády / diplomatická štvrť (pod Slavínom)
Prestížna a tichá rezidenčná štvrť, panoramatické výhľady na mestské dominanty a vilovú zástavbu
Rýchle napojenie do centra, dobré dopravné spojenia MHD a jednoduché výjazdy na výjazd z mesta
Blízkosť Horského parku, služieb, obchodov
#followtheriversfindyourhome
Aká je občianska vybavenosť na ulici Boženy Němcovej v Bratislave?
Ulica Boženy Němcovej v Bratislave je tichá, rezidenčná adresa v susedstve Slavína a Horského parku. Okolie tvoria historické vily aj moderné rezidencie, čo mu dodáva reprezentatívny charakter. Pre záujemcov o 4-izbový byt na predaj ponúka lokalita vyvážené spojenie pokoja s mestským bývaním a príjemnou mierkou ulice.
Každodenný komfort dopĺňajú blízke prevádzky a služby. Na kávu si zájdete do kaviarne Chez Balzac vo vzdialenosti 86 m, obed či večeru vybaví reštaurácia Punjabi Dhaba vo vzdialenosti 130 m. Na regeneráciu poslúži prevádzka 7 SPA vo vzdialenosti 125 m, aktívny pohyb podporí športové zázemie TJ Sokol vo vzdialenosti 253 m.
Dobré napojenie na mesto zabezpečuje MHD; na autobusovej zastávke Havlíčkova vo vzdialenosti 136 m ste prirodzene spojení so širším centrom. V bezprostrednom okolí sídlia významné inštitúcie – pri Veľvyslanectve Slovinskej republiky – rezidencii vo vzdialenosti 119 m a v dosahu je aj Ministerstvo zahraničných vecí, čo podčiarkuje reprezentatívny ráz štvrte.
Rodiny ocenia blízkosť škôl (v texte ponuky uvádzaná ZŠ Hlboká) a možnosti oddychu v Horskom parku, kým vychádzky k pamätníku Slavín ponúknu široké výhľady na mesto. Praktické drobnosti rieši balíkomat Z-Box vo vzdialenosti 272 m. Všetko je v pešej dostupnosti, pritom ulica zostáva pokojná a vhodná na každodenné bývanie.
Okolie ulice Boženy Němcovej v Bratislave ponúka tieto možnosti:
Kaviareň: Chez Balzac - 86 m
Administratíva / kancelárie: Veľvyslanectvo Slovinskej republiky - rezidencia - 119 m
Obchod: 7 SPA - 125 m
Reštaurácia: Punjabi Dhaba - 130 m
Autobusová zastávka: Havlíčkova - 136 m
Voľný čas / rekreácia: TJ Sokol - 253 m
Balíkomat: Z-Box - 272 m
PONUKU INZERUJE
Podrobné informácie k 4 izbovému bytu na predaj
| Celková rozloha | 244.01 m² |
|---|---|
| Úžitková plocha | 190.03 m² |
| Poschodie | 5/posledné poschodie |
| Počet poschodí | 5 |
| Počet izieb | 4 |
| Vlastníctvo | osobné |
| Stav | pôvodný |
| Status | aktívne |
| Odvoz odpadu | áno - separovaný |
| Plyn | áno |
| Internet | optika |
| Kúpeľňa | áno |
| Vykurovanie | vlastné - plyn |
| Terasa | áno |
| Pivnica | áno |
|---|---|
| Garáž | áno - 3 autá |
| Výťah | áno |
| Parkovanie | áno |
| Postavené z | tehla |
| Zariadenie | nezariadený |
| Zateplený objekt | áno |
| Krb | áno |
| Klimatizácia | áno |
| Káblová televízia | áno |
| Energetický certifikát | B |
| Okná | hliníkové |
| Orientácia | východná |
| Novostavba | áno |
Ďalšie 4 izbové byty v Starom Meste, Bratislava na predaj
Predaj 4-izbový byt
106.8 m2
Bratislava - Staré Mesto
390.000,- €
Predaj 4-izbový byt
113 m2
Bratislava - Staré Mesto
699.000,- €
Predaj 4-izbový byt
118.4 m2
Bratislava - Staré Mesto
535.000,- €
Predaj 4-izbový byt
70 m2
Bratislava - Staré Mesto
272.000,- €
Predaj 4-izbový byt
123.2 m2
Bratislava - Staré Mesto
Cena v RK
Predaj 4-izbový byt
102.01 m2
Bratislava - Staré Mesto
409.990,- €
Predaj 4-izbový byt
121 m2
Bratislava - Staré Mesto
360.000,- €
Predaj 4-izbový byt
147 m2
Bratislava - Staré Mesto
595.000,- €
Predaj 4-izbový byt
114 m2
Bratislava - Staré Mesto
410.000,- €
Predaj 4-izbový byt
141 m2
Bratislava - Staré Mesto
650.000,- €
Predaj 4-izbový byt
110.3 m2
Bratislava - Staré Mesto
358.700,- €
Predaj 4-izbový byt
131 m2
Bratislava - Staré Mesto
650.000,- €
Predaj 4-izbový byt
167 m2
Bratislava - Staré Mesto
Cena v RK
Predaj 4-izbový byt
102 m2
Bratislava - Staré Mesto
589.000,- €
Predaj 4-izbový byt
125 m2
Bratislava - Staré Mesto
449.000,- €
Predaj 4-izbový byt
108 m2
Bratislava - Staré Mesto
498.500,- €
Predaj 4-izbový byt
110 m2
Bratislava - Staré Mesto
530.000,- €
Predaj 4-izbový byt
102 m2
Bratislava - Staré Mesto
Cena v RK
Hodnotenie ponuky - Exkluzívny byt pod Slavínom s terasou a výhľadom na Bratislavu
Analýza ponuky bytov v lokalite Bratislava - Staré Mesto
V okrese Bratislava - Staré Mesto je na ZoznamRealit.Sk 159 bytov na predaj a 333 bytov na prenájom.
Najdrahšia ponuka stojí 2.250.000,- € na predaj a najlacnejšia ponuka bytu pre lokalitu Bratislava - Staré Mesto 272.000,- €.
V okrese Bratislava pôsobí a na ZoznamRealit.Sk inzeruje 92 realitných kancelárií, z toho je 57 Overených členov ZRKS.



























