Ideálny pozemok pre váš rodinný dom v lokalite Kamenný mlyn
6570x zobrazená v zozname / 236x zobrazená detailne / 236x zobrazená detailne tento mesiac
TOP PONUKA: Stavebný pozemok so stavebným povolením v lokalite Kamenný mlyn
Reality Bičiar vám ponúka na predaj slnečný stavebný pozemok v najvyhľadávanejšej rezidenčnej časti Trnavy – Kamenný mlyn. Tento pozemok je ideálnou voľbou pre klienta, ktorý nechce strácať čas úradnými procesmi a túži začať stavať okamžite.
HLAVNÉ BENEFITY:
Stavajte ihneď: Pozemok disponuje právoplatným stavebným povolením. Vynechajte mesiace čakania na úradoch.
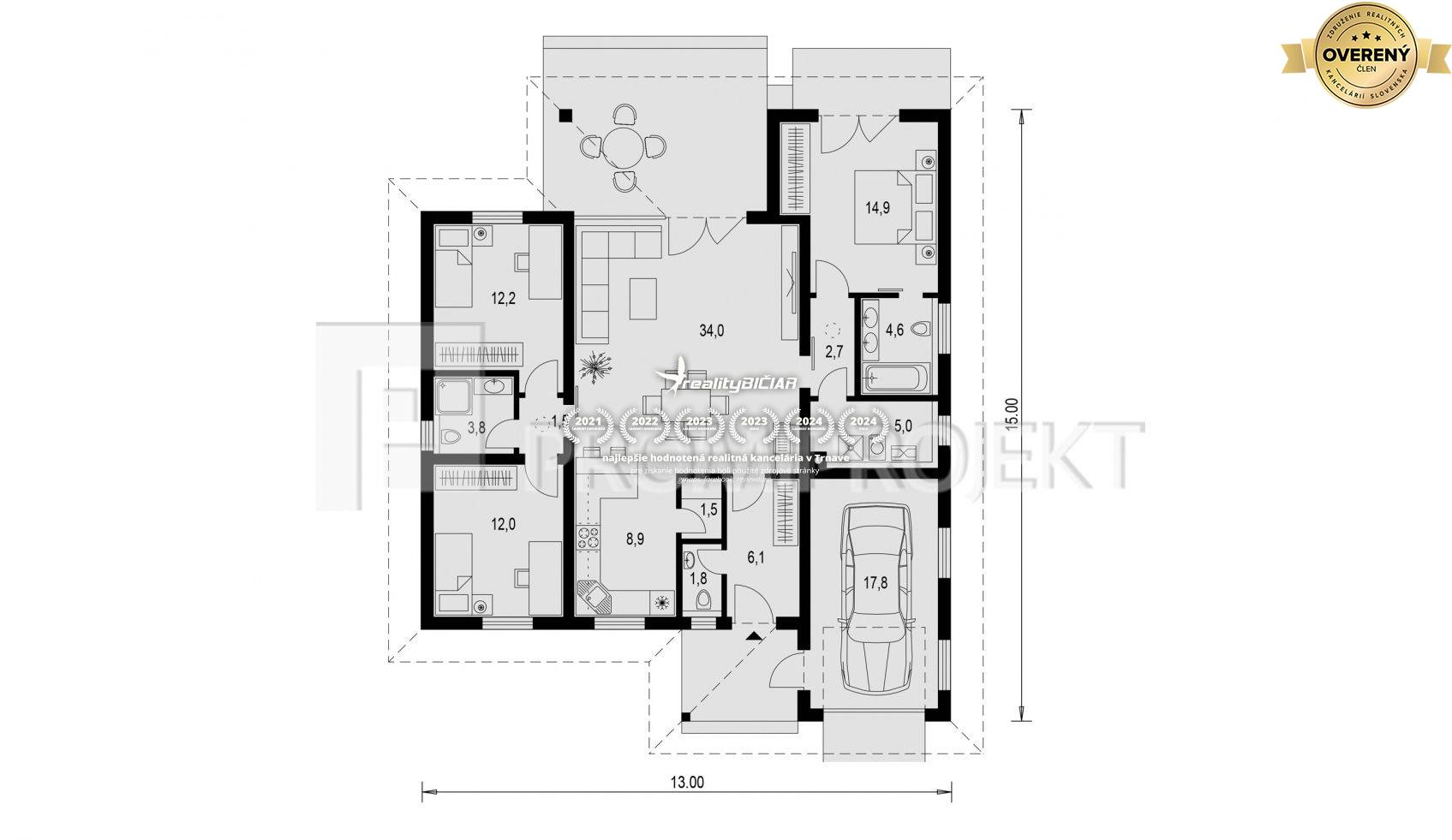
Projekt v cene: Súčasťou ponuky je projekt obľúbeného a praktického bungalovu Laguna 443 od renomovaného ateliéru Promiprojekt. (www.promiprojekt.sk )
Pripravené siete: Na pozemku je už vybudovaná elektrická prípojka.
Súkromie a bezpečnosť: Pozemok je už z dvoch bočných strán oplotený a nachádza sa v zastavanej časti medzi modernými novostavbami (bungalovy).
TECHNICKÉ PARAMETRE:
Výmera pozemku: 461 m²
Šírka pozemku - 17 m
Zastavaná plocha podľa projektu: 169 m²
Variabilita: Hoci je projekt nastavený na bungalov, UPI a charakter pozemku umožňujú budúcemu investorovi realizovať aj poschodový rodinný dom podľa vlastných predstáv.
LOKALITA, KTORÚ MILUJETE:
Kamenný mlyn spája mestský komfort s priamym dotykom prírody. V pešej dostupnosti máte rekreačnú zónu, rybníky, kúpalisko a cyklotrasy, pričom napojenie na obchvat a centrum Trnavy je otázkou pár minút.
Neváhajte nás kontaktovať a dohodnite si obhliadku ešte dnes. Váš nový domov v Kamennom mlyne začína práve tu!
Linda Snopková
reality Bičiar
Aká je občianska vybavenosť na ulici Trnava- Kamenný mlyn v Trnave?
Kamenný mlyn v Trnave je rezidenčná časť, ktorá prirodzene spája mestský komfort s blízkosťou prírody. V okolí prevažujú rodinné domy a novšie bungalovy, čo podporuje pokojný charakter štvrte a príjemné susedstvá. Oceňované je aj jednoduché napojenie na obchvat a dobrá dostupnosť do centra Trnavy.
Bežný deň tu spríjemnia prevádzky na dosah. Na obed sa dá zájsť do reštaurácie Špacírka vo vzdialenosti 16 m, rannú kávu ponúka kaviareň Verdon vo vzdialenosti 30 m. Rýchly nákup vybavíte v obchode Ľúbivé vo vzdialenosti 37 m, takže základné potreby vyriešite prakticky „za rohom“.
Zdravotné a finančné služby sú poruke. O lieky a poradenstvo sa postará lekáreň Benu vo vzdialenosti 33 m, bankové záležitosti vybavíte v Tatra banke vo vzdialenosti 26 m. Starostlivosť o chrup zabezpečuje zubná ambulancia MUDr. Jelisavety Haviarovej vo vzdialenosti 40 m.
Lokalita ťaží z rekreačnej zóny s rybníkmi, kúpaliskom a cyklotrasami v pešej dostupnosti, čo ocení aktívny aj rodinný život. Kombinácia tichej zástavby a blízkych služieb vytvára vyvážené miesto na bývanie s mestskými výhodami a priamym dotykom prírody.
Okolie ulice Trnava- Kamenný mlyn v Trnave ponúka tieto možnosti:
Reštaurácia: Špacírka - 16 m
Administratíva / kancelárie: Osinski Capital - 24 m
Banka: Tatra banka - 26 m
Kaviareň: Verdon - 30 m
Lekáreň: Benu - 33 m
Obchod: Ľúbivé - 37 m
Zubár: MUDr. Jelisaveta Haviarová - 40 m
PONUKU INZERUJE
Linda Snopková
Realitná maklérka Trnava
Podrobné informácie k pozemkom na bývanie na predaj
| Rozloha pozemku | 461 m² |
|---|---|
| Poschodie | prízemie |
| Status | aktívne |
| Odvoz odpadu | áno |
| Voda | verejný vodovod |
| El. napätie | 230/400V |
| Plyn | áno |
| Kanalizácia | áno |
|---|---|
| Internet | optika |
| Inžinierske siete | áno |
| Káblová televízia | áno |
| Terén | rovina |
| Prístupová cesta | asfaltová cesta |
| Pripravené na výstavbu | vydané stavebné povolenie |
Ďalšie pozemky bývanie v Trnave na predaj
Predaj Pozemky - bývanie
824 m2
Trnava
192.900,- €
Predaj Pozemky - bývanie
1061 m2
Trnava
239.900,- €
Predaj Pozemky - bývanie
1001 m2
Trnava
75.000,- €
Predaj Pozemky - bývanie
2600 m2
Trnava
257.000,- €
Predaj Pozemky - bývanie
1146 m2
Trnava
170,- €/m2
Predaj Pozemky - bývanie
824 m2
Trnava
189.900,- €
Predaj Pozemky - bývanie
1000 m2
Trnava
170,- €/m2
Predaj Pozemky - bývanie
5395 m2
Trnava
198.000,- €
Predaj Pozemky - bývanie
410 m2
Trnava
66.000,- €
Predaj Pozemky - bývanie
661 m2
Trnava
109.000,- €
Predaj Pozemky - bývanie
2500 m2
Trnava
Cena v RK
Predaj Pozemky - bývanie
4700 m2
Trnava
295.000,- €
Predaj Pozemky - bývanie
1017 m2
Trnava
357.990,- €
Predaj Pozemky - bývanie
790 m2
Trnava
28.000,- €
Predaj Pozemky - bývanie
937 m2
Trnava
Cena v RK
Predaj Pozemky - bývanie
4282 m2
Trnava
235.000,- €
Predaj Pozemky - bývanie
676 m2
Trnava
137.000,- €
Predaj Pozemky - bývanie
7284 m2
Trnava
265.000,- €
Hodnotenie ponuky - Ideálny pozemok pre váš rodinný dom v lokalite Kamenný mlyn
Analýza ponuky pozemkov v lokalite Trnava
V okrese Trnava je na ZoznamRealit.Sk 18 pozemkov na predaj a 6 pozemkov na prenájom.
Najdrahšia ponuka stojí 721.000,- € na predaj a najlacnejšia ponuka pozemku pre lokalitu Trnava 10.500,- €.
V okrese Trnava pôsobí a na ZoznamRealit.Sk inzeruje 12 realitných kancelárií, z toho je 10 Overených členov ZRKS.
