Laprovensalia.sk | Moderný 4-izbový bungalov | Chorvátsky Grob
8094x zobrazená v zozname / 268x zobrazená detailne / 268x zobrazená detailne tento mesiac
Predstavujeme Vám novostavbu rodinného domu v projekte La Provensalia, ktorá spája modernú architektúru, kvalitné technológie a funkčné dispozičné riešenie. Dom ponúka komfortné bývanie pre rodinu, priestrannú dennú zónu s priamym výstupom na terasu a súkromnú nočnú časť so šatníkom a kúpeľňou.
Detailné informácie o projekte nájdeš tu: https://laprovensalia.sk/
Začiatok výstavby je v apríli 2026.
Kolaudácia prebehne v decembri 2026.
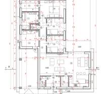
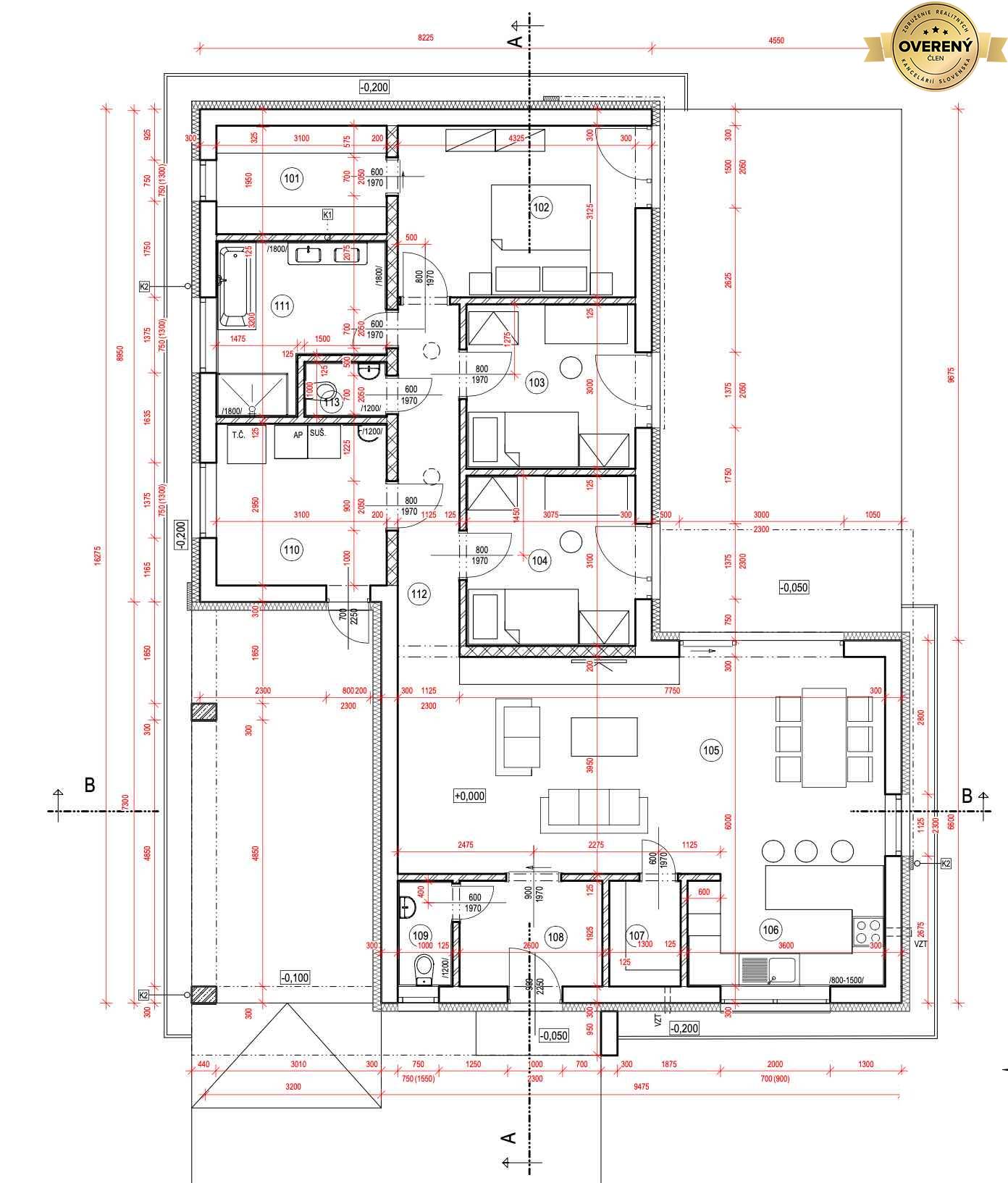
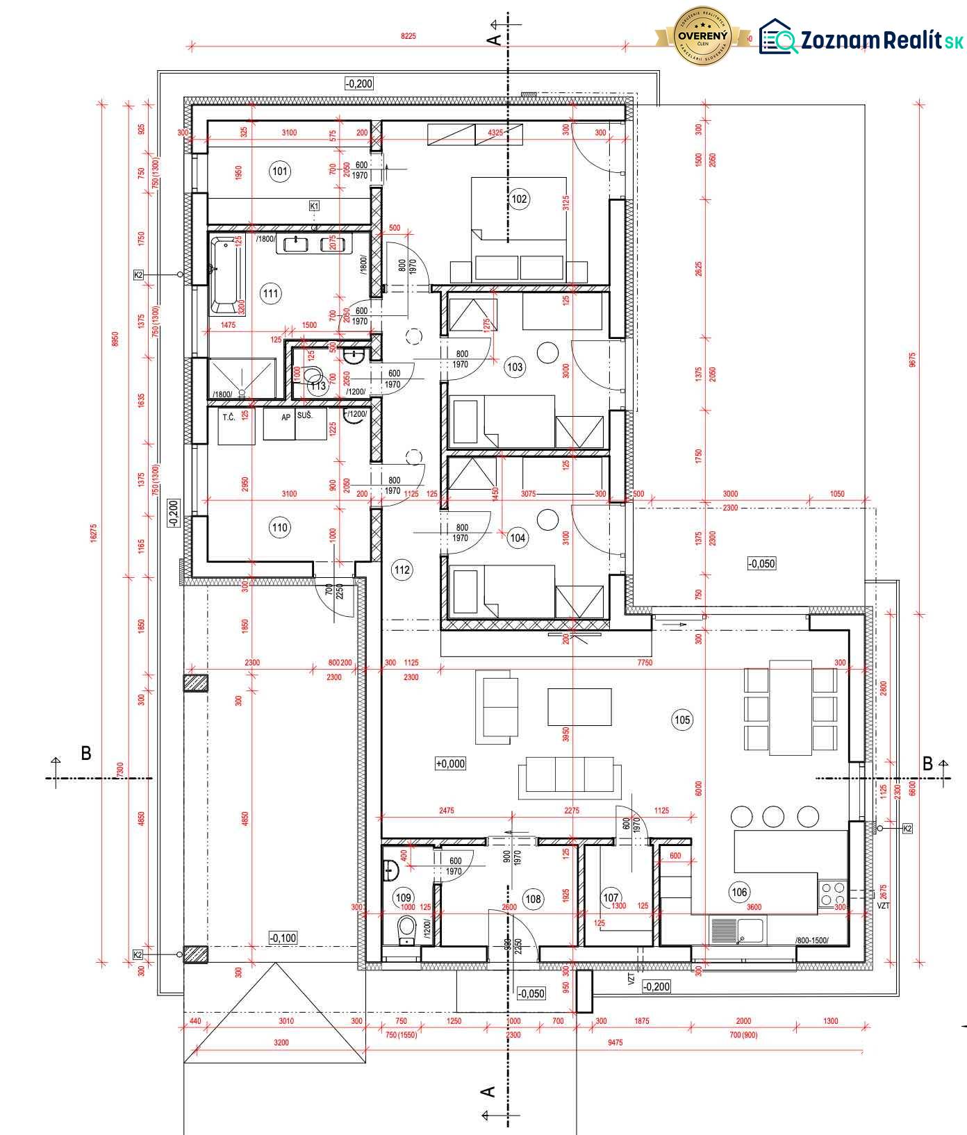
Dispozícia a úžitková plocha:
• Vstupná hala / zádverie (5,01 m²)
• Priestranná obývacia izba (35,06 m²) prepojená s kuchyňou (7,64 m²) a komorou (2,58 m²)
• Tri samostatné izby (9,53 m², 9,23 m² a 13,52 m²) – všetky so vstupom na terasu
• Šatník (6,12 m²) priamo napojený na hlavnú spálňu
• Kúpeľňa (8,09 m²) s prípravou na vaňu, sprchovací kút a dvojité umývadlo
• Dve samostatné toalety (1,93 m² a 1,50 m²)
• Technická miestnosť (9,15 m²) s prepojením na zastrešené parkovanie
• Celková obytná časť domu je doplnená o terasu zo zámkovej dlažby, prístupnú zo všetkých obytných miestností.
Celková úžitková plocha domu: 130 m²
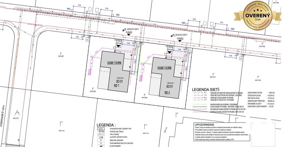
Celková výmera parcely: 600 m²
Parkovanie a pozemok:
• 3 parkovacie miesta priamo pri dome (1x zastrešené, 2x voľné)
• Spevnený vjazd zo zámkovej dlažby
• Pozemok kompletne oplotený zváraným poplastovaným pletivom
• Odvod dažďovej vody riešený drenážnou šachtou
Technológie a vybavenie
• Tepelné čerpadlo s podlahovým vykurovaním
• Lokálna rekuperácia
• Príprava pre klimatizáciu, fotovoltaiku, vonkajší kamerový systém a elektrické žalúzie
• Predpríprava na nabíjanie elektromobilu
• Plastové okná s izolačným trojsklom
• Sadrové omietky a biela maľba
• Zateplenie 150 mm polystyrén a fasádna škrabaná omietka
• Hrubé tehlové murivo, železobetónové stropy, strecha s 400 mm izoláciou a PVC fóliou
• Verejný vodovod (DN 32, vodomerná šachta)
• Verejná splašková kanalizácia (DN 160, revízna šachta)
• NN rozvod (3x25A, rozvádzač RE)
• Telekomunikačná prípojka (Slovak Telekom, a. s.)
Dom je navrhnutý s dôrazom na komfort a energetickú úspornosť.
Cena: 435 000€ vrátane DPH
Výhody tejto nehnuteľnosti:
• Moderná novostavba od renomovaného developera
• Premyslený dispozičný koncept s priamym vstupom na terasu zo všetkých izieb
• Kompletné inžinierske siete a predprípravy na inteligentné riešenia
• Tri parkovacie miesta vrátane krytého státia
V prípade záujmu o detailnejšie informácie alebo obhliadku nehnuteľností ma neváhajte kontaktovať:
Daniel Gianmarco Križan
RADO Reality Group
Tel.:
E-mail:
RADO ŠTANDARD – naše záväzky voči vám:
Kompletný právny servis vrátane zmlúv a návrhu na vklad
Hypotekárne poradenstvo šité na mieru
Úhrada správneho poplatku za vklad do katastra
Profesionálna starostlivosť počas celého procesu
Uvedená cena je konečná, pokiaľ sa zmluvné strany nedohodnú inak a nenavyšuje sa o odmenu sprostredkovateľa, v cene je zahrnuté právne poradenstvo, vyhotovenie kúpnych zmlúv, hypotekárne poradenstvo a uhradenie správneho poplatku za návrh na vklad do katastra nehnuteľností.
RADO Reality Group je ocenená Realitnou úniou ako najlepšia realitná kancelária na Slovensku za rok 2023. Okrem iného sme držiteľmi ďalších 6 prestížnych ocenení.
Aká je občianska vybavenosť na ulici Jadranskej v Chorvátskom Grobe?
Ulica Jadranská v Chorvátskom Grobe pôsobí ako komorné rezidenčné zázemie, ktoré vyhľadávajú najmä rodiny. Novostavby projektu La Provensalia sem prinášajú modernú architektúru aj praktické riešenia bývania – denná zóna s priamym prepojením na terasu prirodzene rozširuje život do záhrady, zatiaľ čo súkromná nočná časť poskytuje nerušený režim dňa a noci. Dom je koncipovaný s dôrazom na komfort a technológie, čo zapadá do charakteru novo budovaného susedstva.
Každodenný presun bez auta uľahčuje verejná doprava – v pešej dostupnosti sa nachádza autobusová zastávka Chorvátsky Grob, Výhon vo vzdialenosti 251 m, ktorá zvyšuje praktickú dosiahnuteľnosť širšieho okolia. Takéto umiestnenie podporuje vyvážený rytmus bývania: pokoj ulice dopĺňa jednoduché napojenie na bežné služby a dochádzanie.
Občiansku vybavenosť dotvárajú blízke prevádzky. Na obed či stretnutie s priateľmi pozýva reštaurácia Husacina Kamenný dvor vo vzdialenosti 332 m. Bežné nákupy vybavíte v obchode MegaNut vo vzdialenosti 889 m. Praktický štandard lokality podčiarkuje aj fakt, že samotný dom je napojený na verejný vodovod a splaškovú kanalizáciu, pričom premyslené parkovanie priamo pri nehnuteľnosti zjednodušuje návraty domov. Celok tak ponúka funkčné rodinné bývanie s rozumnou dostupnosťou služieb.
Okolie ulice Jadranská v Chorvátskom Grobe ponúka tieto možnosti:
Autobusová zastávka: Chorvátsky Grob, Výhon - 251 m
Reštaurácia: Husacina Kamenný dvor - 332 m
Obchod: MegaNut - 889 m
PONUKU INZERUJE
MSc. Daniel Gianmarco Križan
Realitný poradca
Podrobné informácie k rodinnému domu na predaj
| Zastavaná plocha | 140 m² |
|---|---|
| Úžitková plocha | 130 m² |
| Počet poschodí | 1 |
| Počet izieb | 4 |
| Stav | holopriestor |
| Status | aktívne |
| Odvoz odpadu | áno - separovaný |
| Voda | verejný vodovod |
| El. napätie | 230/400V |
| Plyn | nie |
| Kanalizácia | áno |
| Internet | optika |
| Kúpeľňa | áno |
| Vykurovanie | vlastné |
|---|---|
| Parkovanie | vlastné vyhradené |
| Inžinierske siete | áno |
| Postavené z | tehla |
| Zariadenie | nezariadený |
| Zateplený objekt | áno |
| Energetický certifikát | áno |
| Bezbariérový prístup | áno |
| Okná | plastové |
| Terén | rovina |
| Prístupová cesta | asfaltová cesta |
| Pripravené na výstavbu | vydané stavebné povolenie |
| Novostavba | áno |
Ďalšie rodinné domy Chorvátsky Grob na predaj
Predaj Rodinný dom
165 m2
Senec
360.000,- €
Predaj Rodinný dom
105 m2
Senec
249.000,- €
Predaj Rodinný dom
166.1 m2
Senec
405.000,- €
Predaj Rodinný dom
129 m2
Senec
315.000,- €
Predaj Rodinný dom
153 m2
Senec
749.000,- €
Predaj Rodinný dom
161 m2
Senec
499.900,- €
Predaj Rodinný dom
390 m2
Senec
Cena v RK
Predaj Rodinný dom
200 m2
Senec
515.000,- €
Predaj Rodinný dom
750 m2
Senec
850.000,- €
Predaj Rodinný dom
124 m2
Senec
309.000,- €
Predaj Rodinný dom
270 m2
Senec
Cena v RK
Predaj Rodinný dom
144 m2
Senec
285.500,- €
Predaj Rodinný dom
309 m2
Senec
599.800,- €
Predaj Rodinný dom
90 m2
Senec
319.990,- €
Predaj Rodinný dom
80 m2
Senec
Cena v RK
Predaj Rodinný dom
350 m2
Senec
259.000,- €
Predaj Rodinný dom
617 m2
Senec
300.000,- €
Predaj Rodinný dom
113 m2
Senec
280.000,- €
Hodnotenie ponuky - Laprovensalia.sk | Moderný 4-izbový bungalov | Chorvátsky Grob
Analýza ponuky rodinných domov v lokalite Chorvátsky Grob, Senec
V lokalite Chorvátsky Grob, okres Senec je na ZoznamRealit.Sk 13 rodinných domov na predaj a 2 rodinné domy na prenájom.
Najdrahšia ponuka stojí 1.599.000,- € na predaj a najlacnejšia ponuka rodinného domu pre lokalitu Chorvátsky Grob 134.990,- €.
V okrese Senec pôsobí a na ZoznamRealit.Sk inzeruje 6 realitných kancelárií, z toho je 5 Overených členov ZRKS.
