Na predaj 2 izbový byt na Sokolovskej ulici v meste Humenné
2225x zobrazená v zozname / 154x zobrazená detailne / 154x zobrazená detailne tento mesiac
MEGA realitná kancelária ponúka exkluzívne na predaj 2 izbový byt na vyhľadávanej Sokolovskej ulici v Humennom. Ideálna voľba pre tých, ktorí hľadajú dostupné bývanie s možnosťou rekonštrukcie podľa vlastných predstáv alebo zaujímavú investičnú príležitosť.
Základné informácie o nehnuteľnosti:
Lokalita: Sokolovská ulica, Humenné
Poschodie: prízemie
Stav: pôvodný, no zachovalý
Okná: plastové
Kúpeľňa: obložená keramickým obkladom
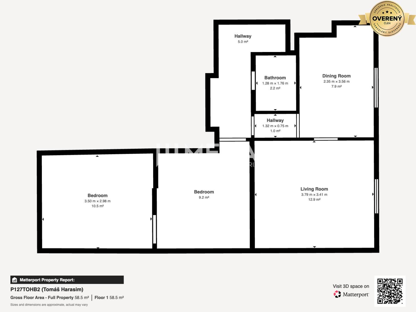
Dispozícia bytu: Byt pozostáva zo vstupnej chodby, kuchyne, samostatnej spálne, obývacej izby, kúpeľne a samostatného WC.
Dispozičné riešenie ponúka praktické rozdelenie dennej a nočnej časti, pričom pôvodný stav umožňuje novému majiteľovi realizovať rekonštrukciu presne podľa vlastného vkusu a potrieb.
Plastové okná zabezpečujú lepšiu tepelnú a zvukovú izoláciu. Kúpeľňa je už upravená keramickým obkladom, čo predstavuje čiastočný benefit pri budúcej modernizácii.
Lokalita a občianska vybavenosť: Sokolovská ulica patrí medzi obľúbené lokality v Humennom. V blízkosti sa nachádza kompletná občianska vybavenosť – obchody, školy, škôlky, zdravotné stredisko aj zastávky MHD.
Prízemie je praktické riešenie najmä pre seniorov, rodiny s deťmi alebo ako investícia na prenájom.
Tento byt predstavuje skvelú príležitosť pre klientov, ktorí hľadajú cenovo dostupné bývanie s potenciálom vlastnej rekonštrukcie v dobrej lokalite.
V cene nehnuteľnosti je zahrnutý kompletný právny servis, vypracovanie zmluvnej dokumentácie, poplatky spojené s prevodom vlastníckych práv a profesionálne poradenstvo pri financovaní.
V prípade záujmu ma neváhajte kontaktovať a dohodnúť si obhliadku.
3D obhliadka tu: https://my.matterport.com/show/?m=VMgVqzjrccr
Bc. Tomáš Harasim
Aká je občianska vybavenosť na ulici Sokolovskej v Humennom?
Sokolovská patrí k vyhľadávaným uliciam Humenného najmä vďaka praktickej polohe a širokej občianskej vybavenosti, ktorú obyvatelia využívajú každý deň. V okolí nechýbajú služby, možnosti stravovania ani oddychu a do centra mesta je jednoduché napojenie. Miestny charakter pôsobí rezidenčne a je vhodný pre bývanie aj dlhodobý nájom.
Dopravu uľahčuje blízkosť MHD – na autobusovú zastávku Humenné, Sokolovská ul. sa dostanete vo vzdialenosti 87 m, čo zvyšuje dostupnosť ostatných častí mesta bez potreby auta. V pešej dostupnosti sú pritom viaceré každodenné služby, takže bežnú agendu zvládnete rýchlo a v blízkosti domova.
Pre bežné nákupy a služby poslúži napríklad kaderníctvo Pánske a dámske kaderníctvo vo vzdialenosti 40 m. Finančné záležitosti vybavíte pohodlne – k dispozícii je bankomat Všeobecnej úverovej banky vo vzdialenosti 162 m a rovnako aj pobočka Všeobecnej úverovej banky vo vzdialenosti 162 m. Na stretnutia či oddych sa hodí posedenie v kaviarni Harlekýn vo vzdialenosti 172 m, obed alebo večeru si dáte v reštaurácii Dukla vo vzdialenosti 173 m a neformálne posedenie ponúka krčma KP-12 vo vzdialenosti 180 m.
Podľa znenia inzerátu je v okolí zabezpečená aj infraštruktúra pre rodiny – školy, škôlky a zdravotné stredisko, čo dopĺňa obraz praktickej a stabilnej adresy. Takéto zázemie podporuje pohodlný každodenný život a zvyšuje atraktivitu bývania v tejto lokalite.
Okolie ulice Sokolovská v Humenné ponúka tieto možnosti:
Obchod: Pánske a dámske kaderníctvo - 40 m
Autobusová zastávka: Humenné, Sokolovská ul. - 87 m
Bankomat: Všeobecná úverová banka - 162 m
Banka: Všeobecná úverová banka - 162 m
Kaviareň: Kaviareň Harlekýn - 172 m
Reštaurácia: Dukla - 173 m
Krčma: KP-12 - 180 m
PONUKU INZERUJE
Podrobné informácie k 2 izbovému bytu na predaj
| Zastavaná plocha | 54 m² |
|---|---|
| Úžitková plocha | 54 m² |
| Poschodie | prízemie |
| Počet izieb | 2 |
| Vlastníctvo | osobné |
| Stav | čiastočne prerobený |
| Status | aktívne |
|---|---|
| Voda | verejný vodovod |
| El. napätie | 230V |
| Plyn | áno |
| Kanalizácia | áno |
| Pivnica | áno |
Ďalšie 2 izbové byty v Humennom na predaj
Predaj 2-izbový byt
40.3 m2
Humenné
1,- €
Predaj 2-izbový byt
44 m2
Humenné
Cena v RK
Predaj 2-izbový byt
61.04 m2
Humenné
94.000,- €
Predaj 2-izbový byt
61 m2
Humenné
97.200,- €
Predaj 2-izbový byt
39 m2
Humenné
82.200,- €
Predaj 2-izbový byt
54 m2
Humenné
102.900,- €
Predaj 2-izbový byt
55 m2
Humenné
105.000,- €
Predaj 2-izbový byt
40.3 m2
Humenné
1,- €
Predaj 2-izbový byt
57 m2
Humenné
99.000,- €
Predaj 2-izbový byt
55 m2
Humenné
78.000,- €






