NA PREDAJ 5i rekreačný RD | Pekná cesta | Lesopark Rača
4820x zobrazená v zozname / 116x zobrazená detailne / 116x zobrazená detailne tento mesiac
GRAVITAS vám ponúka na predaj rekreačný rodinný dom v lesoparku Rača. Tento rodinný dom predstavuje unikátne a tiché bývanie, ktoré spája dokonalú polohu pri lese s modernou architektúrou, vynikajúcim štandardom a súkromnou prístupovou komunikáciou. Výnimočné umiestnenie so širokým výhľadom na vinice a mesto je synonymom pre dokonalé spojenie luxusu, prírody a vysokého štandardu bývania. Tento dom je vhodný pre tých, ktorí túžia po súkromí, pokoji a pohodlí, bez toho, aby sa vzdialili od všetkých výhod a atrakcií, ktoré mesto Bratislava ponúka.
LOKALITA:
Dom sa nachádza vo veľmi dobre dostupnej, ale tichej lokalite medzi viničom a lesoparkom Rača len na skok od prírody. Milovníci cyklistiky, behu a príjemných prechádzok tu nájdu svoje vysnívané miesto. Dom sa ale nachádza aj v blízkosti plnej občianskej vybavenosti, ktorú ponúka Pekná cesta. Nájdete tu napr. potraviny LIDL, potraviny Kraj, kaviarne a reštaurácie, ale aj banky a materské škôlky, ZŠ na Hubeného ulici, Gymnázium Hubeného a základnú umeleckú školu. Okrem toho, centrum Bratislavy je ľahko dostupné autom a hlavne električkou čo zabezpečuje skvelú konektivitu s mestom. Zastávka električky je na začiatku Peknej cesty.
ŠTANDARD:
V dome sú zabudované kvalitné hliníkové okná s izolačným trojsklom vo farbe antracit, vonkajšie elektricky ovládané exteriérové žalúzie, hliníkové bezpečnostné vstupné dvere so sklom, betónové potery, sadrové vnútorné omietky, maľovky, sadrokartonové stropy, príprava pre kuchynskú linku, kompletná vodoinštalácia a elektroinštalácia. Dom je napojený na vlastnú studňu a žumpu. Predáva sa vo vysokom technologickom prevedení, ale v štádiu HOLODOM. Je postavený z tehly hr. 300mm, zateplený s kvalitným zatepľovacím systémom (polystyrén hrúbky 200mm) s kombináciou betónovej fasády a tehlového alebo dreveného obkladu. Strecha je väzníkový krov a betónová škridla vo farbe antracit. Kúrenie zabezpečuje tepelné čerpadlo systémom vzduch – voda, ktoré je napojené vo všetkých obytných miestnostiach na podlahové vykurovanie. V každej miestnosti je predpríprava na klimatizáciu a dom ma predprípravu aj na fotovoltiku, ktorá je plánovaná na streche. Objekt bude mať aj predprípravu pre krb, termostaty so zónovou reguláciou každej obytnej miestnosti, predprípravu pre alarm. Terénne úpravy sú plánované v základnom prevedení, aby si ich každý majiteľ mohol dokončiť podľa svojich snov a predstáv. Dom bude oplotený, ale bez vstupnej brány a bráničky. Ku vstupu do domu bude viesť vydláždený chodníček zo zámkovej dlažby. Dažďova voda je odvádzaná do vsakov. Bude dodaná aj prípojka a verejné LED osvetlenie komunikácie.
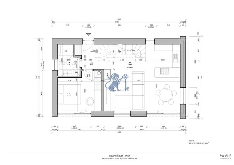
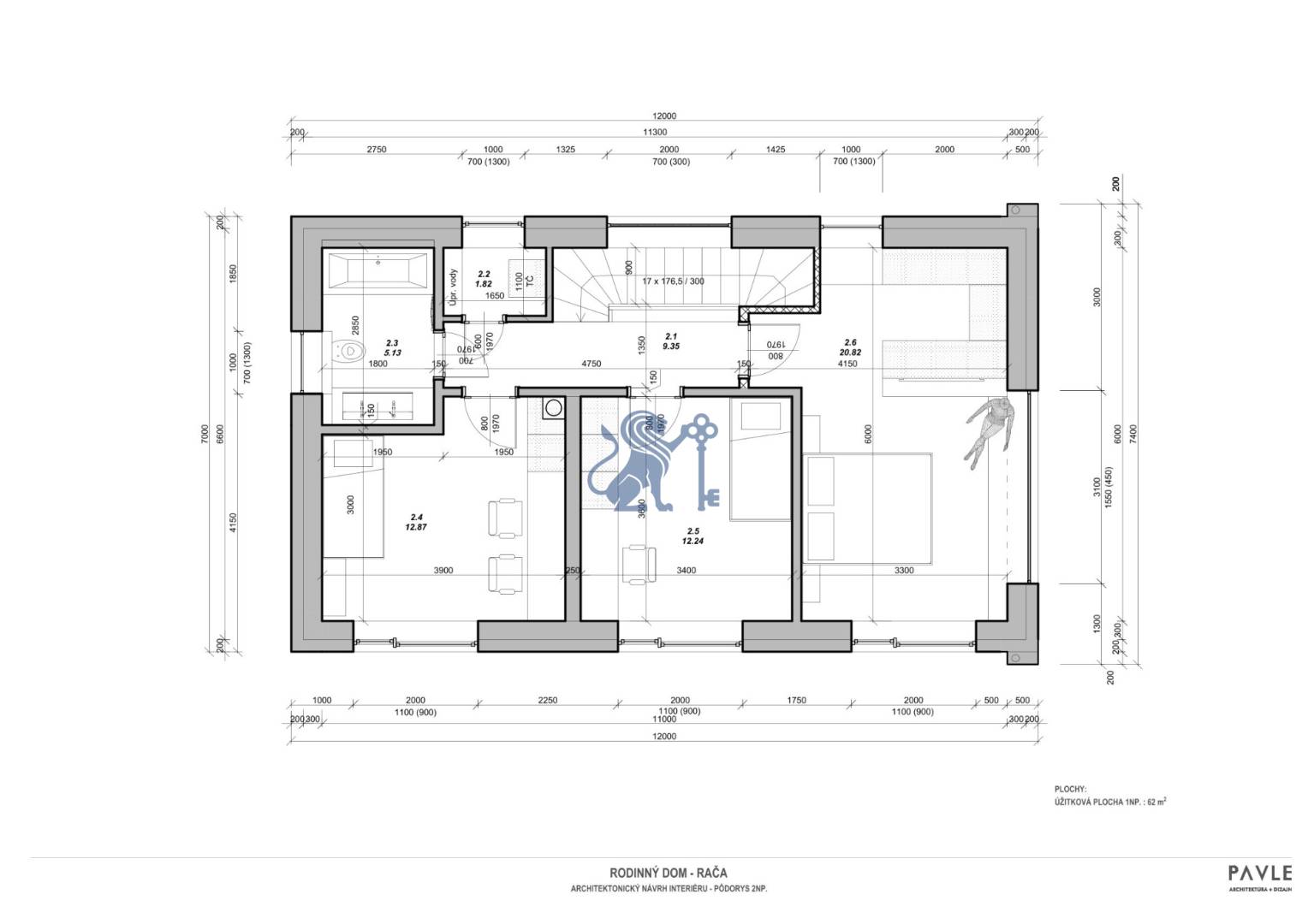
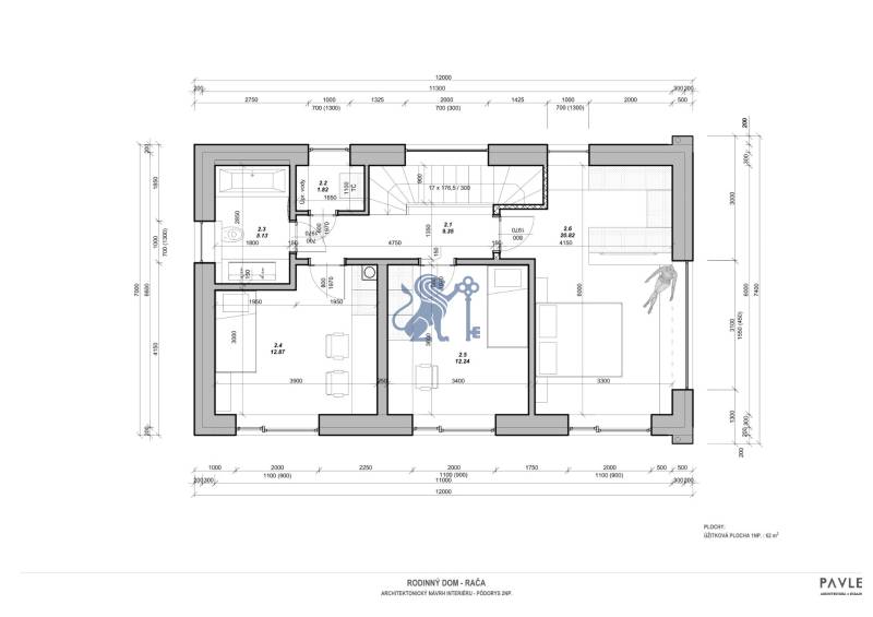
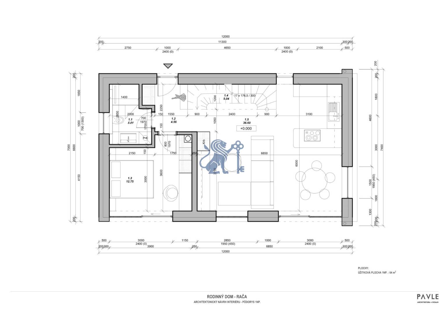
DISPOZÍCIA:
Tento dom je navrhnutý pre pohodlný život a komfortné bývanie vďaka priestrannej obývačke prepojenej s funkčne navrhnutou kuchyňou a s priamym výstupom na terasu a do veľkej záhrady, jednej hosťovskej izby na prízemí, trom elegantným spálňam na 1. poschodí, praktickému šatníku v hlavnej spálni, dvom kúpeľňovým zónam s toaletami, jedna na každom poschodí a doplnkovým úložným priestorom plánovaným pod schodmi a technickej miestnosti. V obývacej izbe bude vyhotovená príprava pre krb, čím sa pridáva útulnosť a teplý pocit do vášho domova.
VÝMERY:
Celková plocha pozemku vrátane komunikácie: 369,50 m2
Zastavaná plocha: 88,00 m2
Úžitková plocha RD: 126,20 m2
Záhrada a zeleň okolo celého RD: 242,00 m2
Ak Vás ponuka zaujala, rád Vás privítam na osobnej obhliadke, kde si môžete vychutnať atmosféru domu a blízkej prírody lesoparku Rača. Príďte sa presvedčiť o jeho kvalite a aj výnimočnom umiestnení.
© Fotografie, grafiky a texty sú vlastníctvom RK GRAVITAS a.s.
PONUKU INZERUJE
Podrobné informácie
| Rozloha pozemku | 370 m² |
|---|---|
| Zastavaná plocha | 88 m² |
| Celková rozloha | 126.2 m² |
| Úžitková plocha | 126.2 m² |
| Poschodie | prízemie |
| Počet poschodí | 2 |
| Počet izieb | 5 |
| Vlastníctvo | osobné |
| Stav | holopriestor |
| Status | aktívne |
| Voda | studňa |
| El. napätie | 230/400V |
| Plyn | nie |
| Kanalizácia | žumpa |
| Kúpeľňa | vaňa a sprchovací kút |
| Vykurovanie | vlastné |
| Balkón | nie |
| Lódžia | nie |
|---|---|
| Terasa | nie |
| Pivnica | nie |
| Garáž | nie |
| Parkovanie | vonkajšie |
| Inžinierske siete | áno |
| Postavené z | tehla |
| Zariadenie | nezariadený |
| Zateplený objekt | áno |
| Krb | predpríprava |
| Energetický certifikát | áno |
| Predzáhradka | áno |
| Okná | hliníkové |
| Terén | mierny svah |
| Prístupová cesta | betónová cesta |
| Pripravené na výstavbu | vydané stavebné povolenie |
| Novostavba | áno |
Mohlo by vás tiež zaujímať
Predaj Rodinný dom
218 m2
Bratislava - Rača
490.000,- €
Predaj Rodinný dom
483 m2
Bratislava - Rača
Cena v RK
Predaj Rodinný dom
204 m2
Bratislava - Rača
415.000,- €
Predaj Rodinný dom
240 m2
Bratislava - Rača
Cena v RK
Predaj Rodinný dom
435 m2
Bratislava - Rača
1.395.000,- €
Predaj Rodinný dom
155.7 m2
Bratislava - Rača
Cena v RK
Predaj Rodinný dom
388 m2
Bratislava - Rača
Cena v RK
Predaj Rodinný dom
169 m2
Bratislava - Rača
Cena v RK
Predaj Rodinný dom
155 m2
Bratislava - Rača
670.000,- €
Predaj Rodinný dom
204.5 m2
Bratislava - Rača
414.000,- €
Predaj Rodinný dom
169 m2
Bratislava - Rača
Cena v RK
Predaj Rodinný dom
218 m2
Bratislava - Rača
490.000,- €
Predaj Rodinný dom
133.52 m2
Bratislava - Rača
539.000,- €
Predaj Rodinný dom
350 m2
Bratislava - Rača
Cena v RK
Predaj Rodinný dom
169 m2
Bratislava - Rača
Cena v RK
Vaše hodnotenie ponuky
Analýza ponuky rodinných domov v lokalite Bratislava - Rača
V okrese Bratislava - Rača je na ZoznamRealit.Sk 16 rodinných domov na predaj a 1 rodinný dom na prenájom.
Najdrahšia ponuka stojí 1.750.000,- € na predaj a najlacnejšia ponuka rodinného domu pre lokalitu Bratislava - Rača 414.000,- €.
V okrese Bratislava pôsobí a na ZoznamRealit.Sk inzeruje 87 realitných kancelárií, z toho je 57 Overených členov ZRKS.
