Na PREDAJ | investičný pozemok | Rusovce | výborná poloha
125,- €/m2 V cene je zahrnutá odmena pre RK a všetky činnosti spojené s predajom tejto nehnuteľnosti.
3294x zobrazená v zozname / 139x zobrazená detailne / 139x zobrazená detailne tento mesiac
GRAVITAS vám ponúka na predaj súbor pozemkov o celkovej výmere 20001 m2, ktoré sa nachádzajú v katastrálnom území mestskej časti Rusovce, v tichej a vyhľadávanej lokalite Pri Gaštanovej aleji v blízkosti Rusovského kaštieľa a parku. Pozemky sa predávajú v 4 rôznych alternatívach.
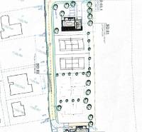
Alt 1: najmenšia alternatíva a je to menšia 1/2 pozemku s právoplatným ÚR pre športový areál o výmere 7346 m2 a s vlastnou komunikáciou z boku pozemku. Alt 2: celá 1/2 pozemku s právoplatným ÚR pre športový areál o výmere 10063 m2 a s vlastnou komunikáciou z boku pozemku. Alt 3: celá 1/2 pozemku o výmere 10063 m2 s komunikáciou v strede súboru pozemkov. Alt 4: celý súbor pozemkov s cestou v strede, ktorá ostane vo vlastníctve aktuálneho majiteľa a všetci ostatní majitelia pozemkov v okolí budú mať právo prechodu. Viď fotogalériu.
Podľa Územného plánu hlavného mesta SR Bratislavy (2007, v znení zmien a doplnkov) sú pozemky určené na:
1. Rekreáciu v prírodnom prostredí (funkcia 1003) – vhodné pre oddych, šport a voľnočasové aktivity s možnosťou drobných objektov občianskej vybavenosti.
2. Šport, telovýchovu a voľný čas (funkcia 401) – ideálne pre vybudovanie športového alebo rekreačného areálu, krytých či otvorených športovísk, športových klubov alebo zón pre aktívny relax. Územie je rozvojového charakteru, s možnosťou napojenia na inžinierske siete a prístup z novej ulice Pri Pieskovom Hone.
AKTUÁLNE VYUŽITIE A POTENCIÁL:
Pozemky boli pôvodne využívané na poľnohospodárske účely, avšak v súčasnosti sú nevyužívané. Povrch tvorí trávnatý porast.
Na území je vydané právoplatné územné rozhodnutie pre výstavbu projektu „Športový klubu“, v nasledovnej objektovej skladbe, čo potvrdzuje atraktivitu lokality pre budúci rozvoj. Klubový objekt č. 1, Klubový objekt č. 2, prístupová komunikácia a spevnené plochy, prístupová plocha a parkovacie plochy, Tenisové kurty, Volejbalové kurty, Oddychová záhrada. IS sú v tesnej blízkosti s možnosťou napojenia ( voda, ELE, plyn). Nutnosť vybudovania kanalizačnej prípojky cca 500m od pozemku.
ÚZEMNOPLÁNOVACIA INFORMÁCIA:
Pozemky sa nachádzajú v rozvojovom území definovanom územným plánom mesta Bratislava. Ide o plochu určenú pre novú výstavbu a zmenu funkčného využitia v širšom rozsahu. Podľa územného plánu ide o regulačný kód X 401, navrhované územie športu v kombinácií s rekreáciou v prírodnom prostredí. Index zastavanosti je 40%, maximálna podlažnosť je 2,5 a index zelene je 25%. Predmetné pozemky sú súčasťou územia, pre ktoré bol schválený Územný plán zóny – Pamiatková zóna Rusovce, spracovaný Mestskou časťou Bratislava – Rusovce. Nachádzajú sa v regulačných celkoch E29 a E30. Na dané pozemky bolo vydané územné rozhodnutie o umiestnení stavby „Športový klub“, ktoré nadobudlo právoplatnosť v roku 2022 a je stále platné.
LOKALITA:
Pozemky sa nachádzajú v mestskej časti Bratislava – Rusovce, na novovybudovanej ulici Pri pieskovom hone. Ide o južnú časť Bratislavy, približne 9 km od historického centra. Okolie tvorí zástavba rodinných domov a pokojná rezidenčná zóna. Výborná dopravná dostupnosť – priamym napojením na MHD aj diaľničný privádzač, vďaka ktorému sa do centra mesta dostanete približne do 15 minút. Rusovce patria medzi štyri zadunajské mestské časti Bratislavy a od roku 1990 sú vyhlásené za pamiatkovú zónu. Lokalita má výnimočné historické a geografické postavenie – už od čias Rímskej ríše ňou prechádzala významná obchodná cesta z územia dnešného Maďarska do Rakúska. V mestskej časti je kompletná občianska vybavenosť – materská škola, základná škola, obchodné centrum, reštaurácie (napr. Gatto Matto, Pod Stodolou, SĽUK, Pizzeria Diabolino, U Marca Aurélia, Pod Gaštanmi, Ponteo), kaviarne a športovo-relaxačné zariadenia. Blízkosť Rusovského jazera, Čunovských jazier a ramena Dunaja ponúka ideálne podmienky na oddych a rekreáciu v prírode.
Radi vás pozveme na osobnú prehliadku, kde si môžete pozemok pozrieť osobne a získať z neho tú správnu emóciu.
© Fotografie, grafiky a texty sú vlastníctvom realitnej kancelárie GRAVITAS a. s.
PONUKU INZERUJE
Podrobné informácie
| Rozloha pozemku | 7346 m² |
|---|---|
| Celková rozloha | 7346 m² |
| Poschodie | prízemie |
| Vlastníctvo | osobné |
| Status | aktívne |
| Voda | verejný vodovod |
| El. napätie | 230/400V |
| Plyn | áno |
|---|---|
| Kanalizácia | áno |
| Inžinierske siete | blízko |
| Orientácia | južná |
| Terén | rovina |
| Prístupová cesta | asfaltová cesta |
| Pripravené na výstavbu | vydané územné rozhodnutie |
Vaše hodnotenie ponuky
Analýza ponuky pozemkov v lokalite Bratislava - Rusovce
V okrese Bratislava - Rusovce je na ZoznamRealit.Sk 7 pozemkov na predaj.
Najdrahšia ponuka stojí 650,- € na predaj a najlacnejšia ponuka pozemku pre lokalitu Bratislava - Rusovce 125,- €.
V okrese Bratislava pôsobí a na ZoznamRealit.Sk inzeruje 87 realitných kancelárií, z toho je 57 Overených členov ZRKS.
