Na predaj ubytovňa / rodinný dom v Šali Veči s kapacitou 50 osôb
6707x zobrazená v zozname / 305x zobrazená detailne / 175x zobrazená detailne tento mesiac
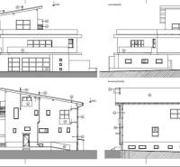
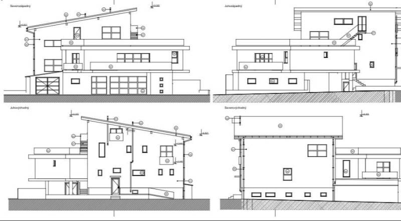
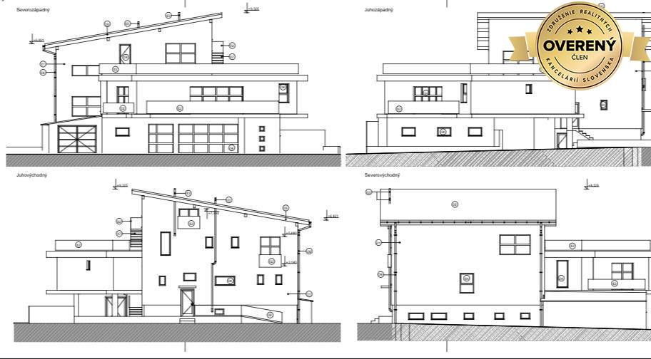
Ponúkame na predaj moderný objekt, ktorý je dnes vedený ako rodinný dom so samostatnými bytovými jednotkami – čo znamená, že kúpu môžete financovať aj štandardnou hypotékou na rodinný dom a zároveň využívať výhodnejšie tarify energií.
Aktuálne budova slúži ako plne funkčné ubytovacie zariadenie s kapacitou až 50 osôb (3 apartmány + 19 izieb).
Nachádza sa v komerčno-obytnej zóne priamo pri frekventovanom cestnom ťahu, čo z nej robí ideálne miesto pre investíciu, podnikanie aj pohodlné bývanie.
Flexibilný priestor s veľkým potenciálom
Budova je postavená s dôrazom na kvalitu, variabilitu a nízke prevádzkové náklady.
Vďaka samonosnej monolitickej konštrukcii je možné vnútorné priečky jednoducho prispôsobiť a vytvoriť presne to, čo potrebujete:
Komerčné alebo obchodné priestory
– svetlá výška 3 m, vstupná šírka 2,5 m
– ideálne pre služby, showroom, kancelárie či gastro prevádzku
Bytový dom s 10–14 bytmi
– skvelá investičná príležitosť v rastúcej lokalite
Kombinácia bývania a podnikania
– napr. vlastné bývanie + prenájom časti objektu
Technické vybavenie a parametre
Samonosné, monolitické stropy (zateplené)
Podlahové kúrenie, 2× plynový kotol Junkers
Klimatizované priestory
Skolaudované parkovisko pre 17–20 áut
Skolaudovaná vodná stavba – odlučovač ropných látok (vhodné pre motoristické služby alebo gastro sektor)
Lokalita, ktorá pracuje pre vás
ubytovacie zariadenie sa nachádza v okresnom meste Šaľa, na strategickom ťahu Bratislava – Nové Zámky, iba 20 minút od Nitry.
Bezprostredná blízkosť kompletnej občianskej vybavenosti, dobrá viditeľnosť z hlavnej cesty a vysoká frekvencia áut robia z tejto nehnuteľnosti výnimočnú príležitosť pre investora aj podnikateľa.
Ideálne pre:
podnikateľov, investorov, developera, ubytovateľa, alebo kohokoľvek, kto hľadá moderný priestor s potenciálom na návratnosť investície.
V prípade záujmu nás neváhajte kedykoľvek kontaktovať ( cez týždeň, sobota, nedeľa ) radi vám poskytneme viac informácií a vybavíme najvýhodnejší HU na trhu.
V CENE NEHNUTEĽNOSTI:
▸Vyhotovenie: Zmluva o Budúcej kúpnej zmluve, Kúpna zmluva o prevode vlastníctva nehnuteľnosti, Návrh na vklad vlastníckeho práva k nehnuteľnosti
▸Úhrada kolkov za návrh na začatie konania o povolení vkladu práva k nehnuteľnosti v lehote 30 dní
▸Úhrada poplatkov za úradné overenie podpisov na kúpnych zmluvách
▸Doručenie podkladov na kataster po úhrade celej kúpnej ceny na účet predávajúceho
▸Asistencia pri odovzdaní nehnuteľnosti, prehlásení energií a služieb
▸Ďalšiu potrebnú asistenciu podľa dohody
Dohodnite si obhliadku ešte dnes.
Teším sa na obhliadku s Vami.
Text a fotografie sú autorským dielom realitnej kancelárie Real Dreams s.r.o.
Podrobné informácie k hotelom a penziónom na predaj
| Rozloha pozemku | 1133 m² |
|---|---|
| Zastavaná plocha | 346 m² |
| Úžitková plocha | 600 m² |
| Poschodie | prízemie |
| Počet poschodí | 4 |
| Počet izieb | 19 |
| Stav | čiastočne prerobený |
| Status | aktívne |
| Voda | studňa a vodovod |
| El. napätie | 230V |
| Plyn | áno |
|---|---|
| Kanalizácia | áno |
| Vykurovanie | vlastné |
| Terasa | áno |
| Postavené z | tehla |
| Zateplený objekt | áno |
| Klimatizácia | áno |
| Energetický certifikát | nie |
| Okná | plastové |
Ďalšie hotely a penzióny v Šali na predaj
Hodnotenie ponuky - Na predaj ubytovňa / rodinný dom v Šali Veči s kapacitou 50 osôb
Analýza ponuky hotelov a penziónov v lokalite Šaľa
V okrese Šaľa je na ZoznamRealit.Sk 1 hotel / penzión na predaj.
Najdrahšia ponuka stojí 930.000,- € na predaj a najlacnejšia ponuka hotela / penziónu pre lokalitu Šaľa 895.000,- €.
V okrese Šaľa pôsobí a na ZoznamRealit.Sk inzerujú 4 realitné kancelárie, z toho sú 2 Overeným členom ZRKS.
