Nová výstavba posledná 4iz. Novostavba Veselé pri Piešťanoch
14945x zobrazená v zozname / 337x zobrazená detailne / 337x zobrazená detailne tento mesiac
Ponúkame poslednú voľnú novostavbu murovaného 4i rodinného domu v novovybudovanej lokalite s cestou, chodníkom a osvetlením, v obci Veselé. Nachádza sa na pozemku o rozlohe 510 m2. Domy sú samostatne stojace.
Rodinný dom A - rezervovaný
Rodinný dom B - voľný
Rodinný dom C - rezervovaný
Dom je postavený podľa najnovších enviromentálnych noriem a trendov.
Ekonomická trieda A0 – nízke náklady na energie.
Vďaka použitým materiálom a technológiám sú náklady na bývanie v tejto dobe minimálne.
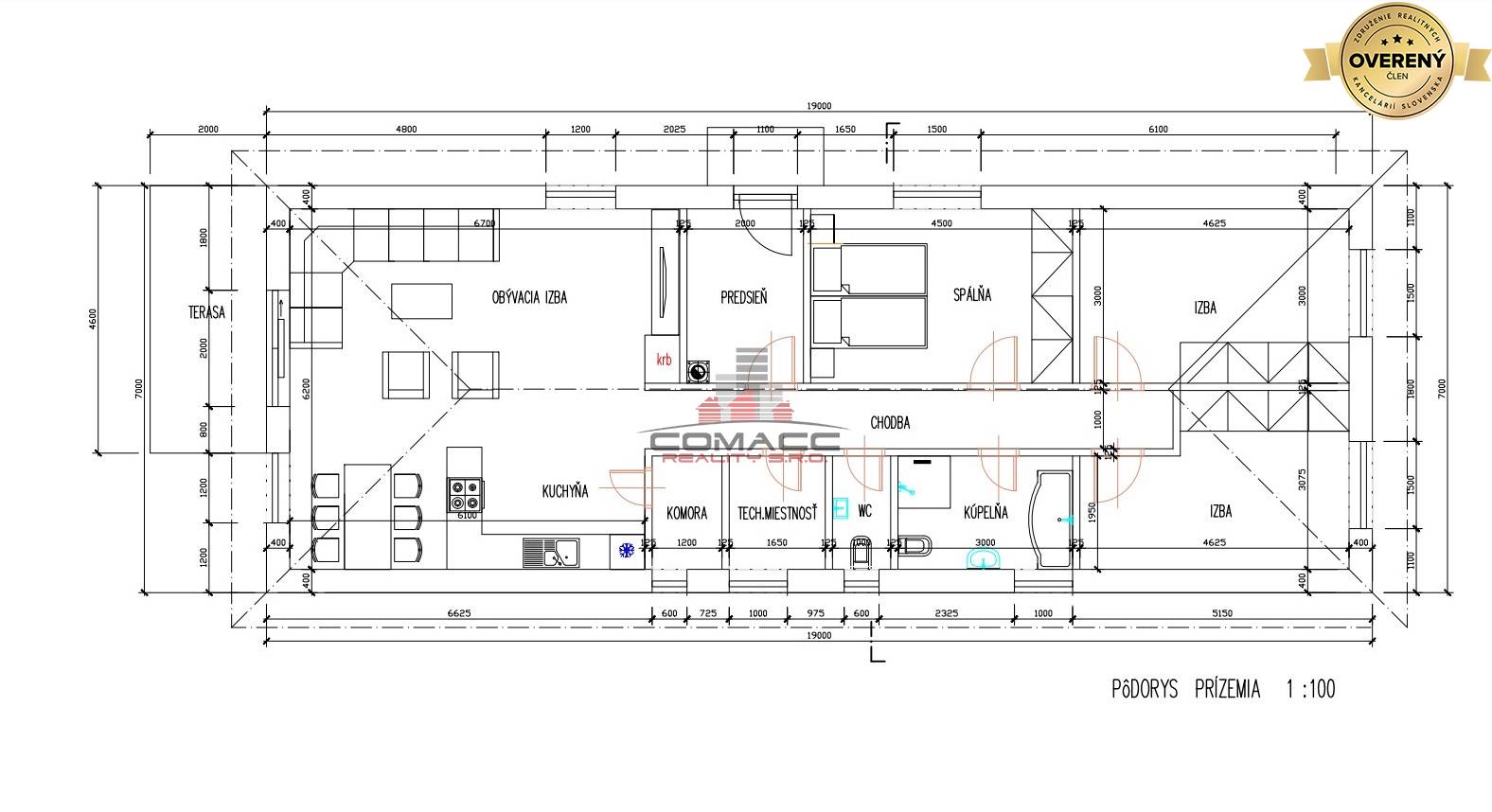
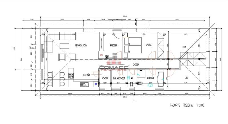
Dispozícia domu:
- vstupná chodba s priestorom na vstavanú skriňu,
- kuchyňa s komorou prepojená s obývačkou s výstupom na terasu,
- 2 x izba s priestorom na vstavanú skriňu,
- spálňa s priestorom na vstavanú skriňu,
- kúpeľňa s vaňou, sprchovým kútom, WC, 2 x umývadlo,
- samostatné WC,
- technická miestnosť,
Technický popis:
- veľkosť pozemku: 510 m2,
- zastavaná plocha domu: 133 m2,
- strecha Bramac - čierna - väzníkový krov
- murivo: tehla 30 cm
- zateplenie obvodových múrov: 15cm polystyrén, vonkajšia fasáda, trativody
- plastové okná - izolačné troj-sklo s vonkajšou povrchovou úpravou antracit
- vypínače a zásuvky
- sádrokartóny, stropná izolácia ISOVER, omietky( sieťka celoplošne), potery,
- príprava na alarm a kamerový systém,
- predpríprava na krb
Vykurovanie :
- vodovodné podlahové vykurovanie s tepelným čerpadlom, možnosť prípravy na fotovoltaiku, elek.žalúzie....
Dom je napojený na všetky inžinierske siete - elektrika, vodovod, kanalizácia
Dom sa predáva v stave štandard - plávajúce podlahy, kúpeľna - sprchový kút, vaňa, umývadlo, 2 x WC, sanita, obklad, interérové dvere, zámková dlažba pred domom a terasa
Nehnuteľnosť je možné prefinancovať prostredníctvom hypotekárneho úveru za spolupráci všetkých bánk. S financovaním Vám pomôže náš hypotekárny špecialista. Ku každému klientovi sa v rámci financovania pristupuje individuálne.
Obec Veselé je vzdialená od Piešťan len 10 km, napojenie na diaľnicu. Nachádza sa tu materská škola, základná škola, potraviny......
Pri kúpe Vám zabezpečíme kompletný servis od obhliadok až po spracovanie zmlúv a prevod nehnuteľností. Kontaktujte nás a my Vám radi pomôžeme. Pre podrobné informácie volajte .
PONUKU INZERUJE
Podrobné informácie k rodinnému domu na predaj
| Rozloha pozemku | 510 m² |
|---|---|
| Zastavaná plocha | 133 m² |
| Celková rozloha | 510 m² |
| Úžitková plocha | 120 m² |
| Poschodie | prízemie |
| Počet izieb | 4 |
| Vlastníctvo | osobné |
| Status | aktívne |
| Odvoz odpadu | áno |
| Voda | verejný vodovod |
| El. napätie | 230/400V |
| Kanalizácia | áno |
| Kúpeľňa | vaňa a sprchovací kút |
| Vykurovanie | vlastné – kombinované |
| Terasa | áno |
|---|---|
| Parkovanie | vlastné vyhradené |
| Inžinierske siete | áno |
| Postavené z | tehla |
| Zariadenie | zariadený |
| Zateplený objekt | áno |
| Krb | predpríprava |
| Energetický certifikát | A |
| Predzáhradka | áno |
| Bezbariérový prístup | áno |
| Okná | plastové |
| Terén | rovina |
| Prístupová cesta | asfaltová cesta |
| Novostavba | áno |
Ďalšie rodinné domy Veselé na predaj
Predaj Rodinný dom
98 m2
Piešťany
259.000,- €
Predaj Rodinný dom
95 m2
Piešťany
82.000,- €
Predaj Rodinný dom
500 m2
Piešťany
224.900,- €
Predaj Rodinný dom
120 m2
Piešťany
214.900,- €
Predaj Rodinný dom
72 m2
Piešťany
134.000,- €
Predaj Rodinný dom
88 m2
Piešťany
178.900,- €
Predaj Rodinný dom
174.4 m2
Piešťany
150.000,- €
Predaj Rodinný dom
113 m2
Piešťany
215.000,- €
Predaj Rodinný dom
108 m2
Piešťany
129.000,- €
Predaj Rodinný dom
130 m2
Piešťany
242.000,- €
Predaj Rodinný dom
160 m2
Piešťany
270.000,- €
Predaj Rodinný dom
295 m2
Piešťany
Cena v RK
Predaj Rodinný dom
190 m2
Piešťany
399.900,- €
Predaj Rodinný dom
1 m2
Piešťany
245.000,- €
Predaj Rodinný dom
120 m2
Piešťany
214.900,- €
Predaj Rodinný dom
130 m2
Piešťany
224.900,- €
Predaj Rodinný dom
133 m2
Piešťany
214.900,- €
Predaj Rodinný dom
146 m2
Piešťany
221.500,- €
Hodnotenie ponuky - Nová výstavba posledná 4iz. Novostavba Veselé pri Piešťanoch
Analýza ponuky rodinných domov v lokalite Veselé, Piešťany
V lokalite Veselé, okres Piešťany je na ZoznamRealit.Sk 9 rodinných domov na predaj.
Najdrahšia ponuka stojí 1.495.000,- € na predaj a najlacnejšia ponuka rodinného domu pre lokalitu Veselé 33.000,- €.
V okrese Piešťany pôsobí a na ZoznamRealit.Sk inzeruje 6 realitných kancelárií, ktoré sú zároveň Overeným členom ZRKS.
