PETRŽALKA -Obchodný priestor v blízkosti električkovej trate na predaj
17514x zobrazená v zozname / 461x zobrazená detailne / 373x zobrazená detailne tento mesiac
NA PREDAJ - Obchodný priestor s výborným potenciálom – Petržalka
Hľadáte priestor pre vlastné podnikanie alebo hotovú prevádzku?
Exkluzívne ponúkame na predaj obchodný priestor o výmere 139 m² v stabilnej a frekventovanej časti Petržalky na Beňadickej ulici.
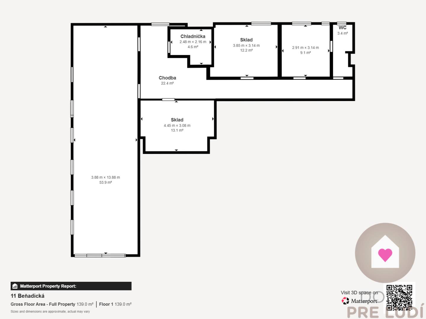
DISPOZÍCIA:
Obchodný priestor zo 4 miestnosti + chodba + WC.
Predná časť je v súčasnosti využívaná ako zabehnutá večierka s možnosťou plynulého pokračovania v prevádzke. Zvyšok priestoru tvorí praktické zázemie – štyri samostatné miestnosti, chodba a WC.
1. miestnosť - bez okna, upravená ako chladiaci priestor, v súčasnosti ako sklad
2. miestnosť - bez okna, slúži ako skladovací priestor
3. miestnosť - s oknom (staré) - slúži ako sklad
4. miestnosť - s oknom (staré) - slúži ako kancelária
Priestor je po čiastočnej úprave - vymené boli okná v prednej časti (za plastové) a kúrenie je zabezpečené klimatizačnými jednotkami.
Veľkou výhodou je variabilita využitia – priestor je vhodný nielen na maloobchod, ale aj ako služby, kancelária, showroom, výdajné miesto e-shopu či iné podnikateľské účely. Dispozícia umožňuje úpravy podľa vlastných predstáv.
LOKALITA, ktorá pracuje pre vás:
hustá bytová zástavba = stabilná klientela
kompletná občianska vybavenosť v pešej dostupnosti
jazero Draždiak v blízkosti
výborná dostupnosť MHD a blízkosť novej električkovej trate
Cena: 185 400€
NAŠE SLUŽBY
Kompletný realitný a právny servis v cene provízie vrátane autorizovaných zmlúv, poplatkov spojených s prevodom, poistenia zodpovednosti do 1,5 mil.€ a hypotekárneho poradenstva.
*Text a fotografie sú vlastníctvom spoločnosti Domy pre ľudí.
PONUKU INZERUJE
Ing. Michaela Birošová
hypotekárna špecialistka - senior
Podrobné informácie k obchodným priestorom na predaj
| Celková rozloha | 139 m² |
|---|---|
| Úžitková plocha | 139 m² |
| Poschodie | prízemie |
| Vlastníctvo | osobné |
| Stav | čiastočne prerobený |
| Status | aktívne |
| Odvoz odpadu | áno |
| El. napätie | 230V |
| Plyn | nie |
| Kúpeľňa | áno |
| Vykurovanie | vlastné - elektrické |
| Terasa | nie |
| Pivnica | nie |
|---|---|
| Garáž | nie |
| Parkovanie | verejné |
| Postavené z | panel |
| Zariadenie | nezariadený |
| Zateplený objekt | áno |
| Klimatizácia | áno |
| Energetický certifikát | áno |
| Predzáhradka | nie |
| Bezbariérový prístup | áno |
| Okná | plastové |
Ďalšie obchodné priestory v Petržalke, Bratislava na predaj
Hodnotenie ponuky - PETRŽALKA -Obchodný priestor v blízkosti električkovej trate na predaj
Analýza ponuky obchodných priestorov v lokalite Bratislava - Petržalka
V okrese Bratislava - Petržalka je na ZoznamRealit.Sk 3 obchodné priestory na predaj a 9 obchodných priestorov na prenájom.
Najdrahšia ponuka stojí 550.000,- € na predaj a najlacnejšia ponuka obchodného priestoru pre lokalitu Bratislava - Petržalka 185.400,- €.
V okrese Bratislava pôsobí a na ZoznamRealit.Sk inzeruje 83 realitných kancelárií, z toho je 56 Overených členov ZRKS.



















