Pozemok s rozostavanou stavbou pre 12 bytov pri Senici
3174x zobrazená v zozname / 141x zobrazená detailne / 141x zobrazená detailne tento mesiac
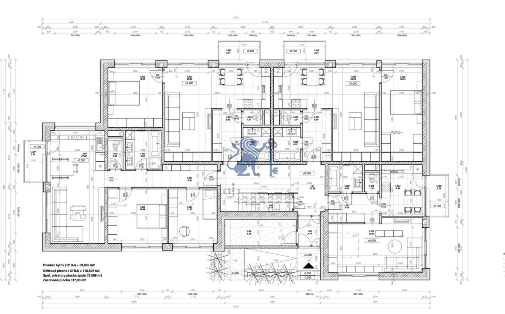
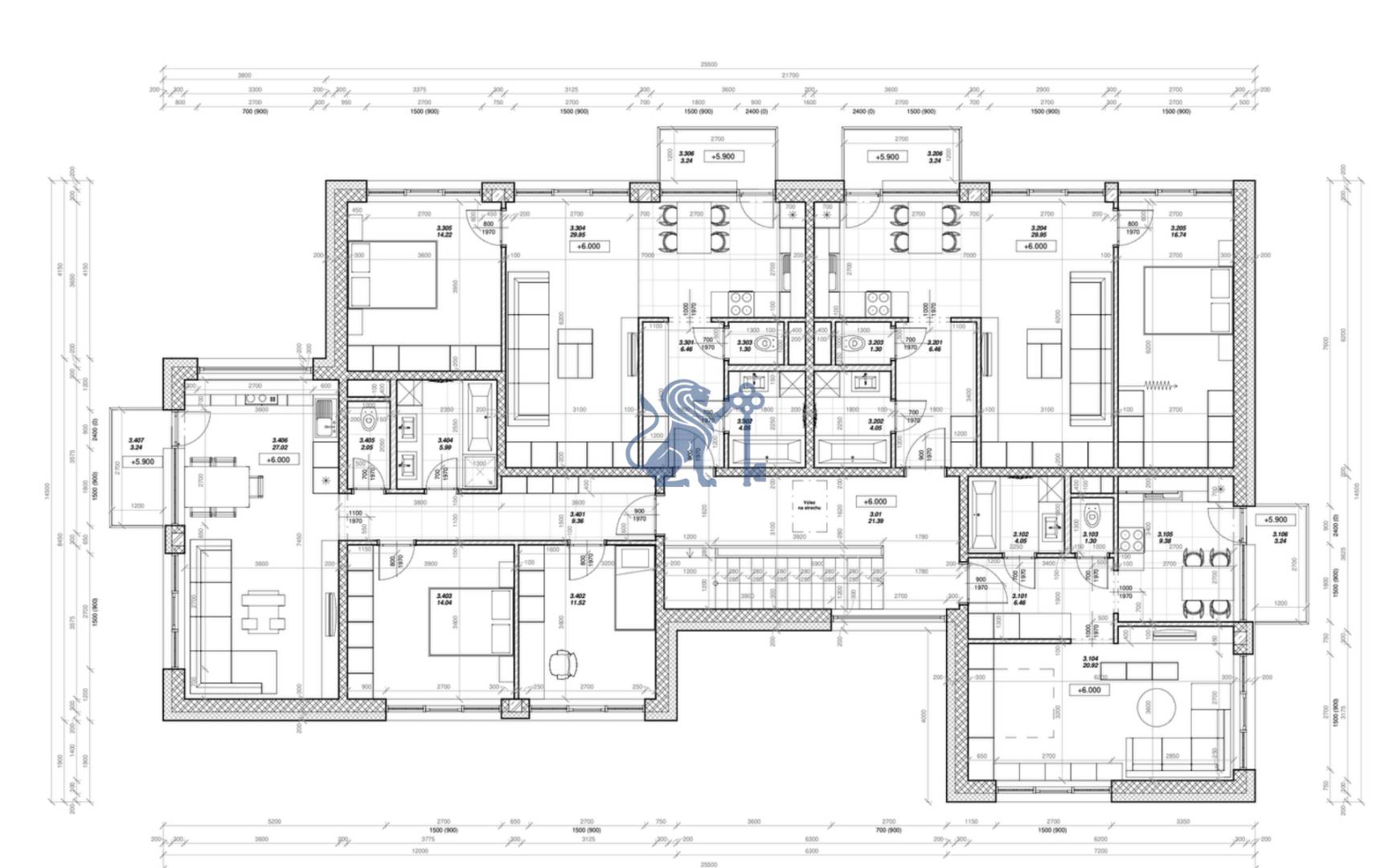
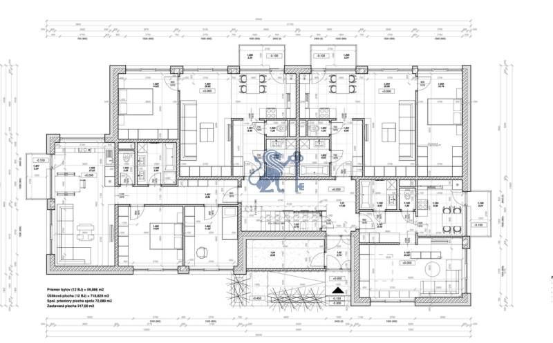
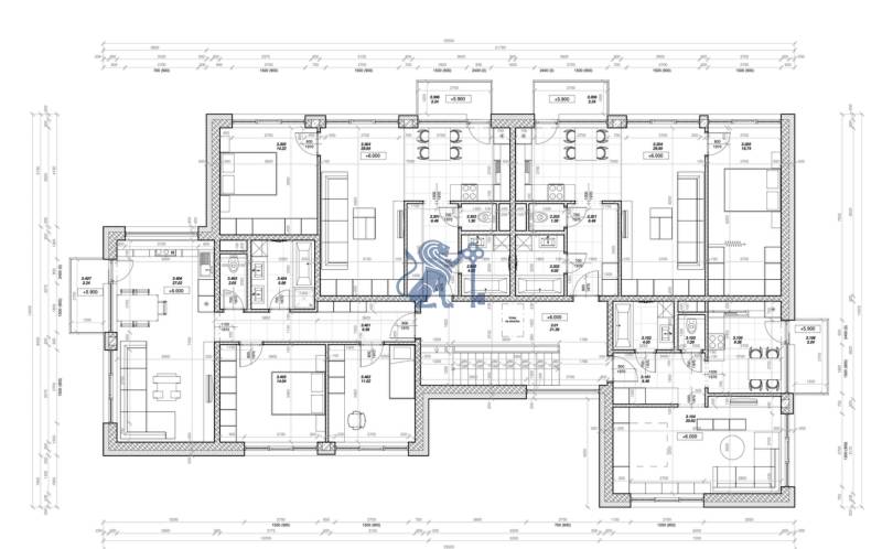
Ponúkame na predaj zaujímavý pozemok s právoplatným stavebným povolením a začatou stavbou bytového domu v tesnej blízkosti okresného mesta Senica. Jedná sa celkovo o 12 bytov, 1 až 3- izbové dispozície v centre susednej obci Koválov.
- Postavené základy a 1.NP + materiál pre 2.NP.
- Celková výmera pozemku je 1175 m2
- Úžitková plocha bytov spolu 718,6 m2
- 3 rovnaké podlažia, na každom je 1x 1-izb., 2x 2-izb. a 1x 3-izb. byt
- Bytový dom ráta so 17 vonkajšími park. miestami
- Napojenie na verejný vodovod, kúrenie elektrina/ tep. čerpadlo, odkanalizovanie pomocou žumpy
- Možnosť dokončenia stavby do štádia holobyt aj s vonkajšími plochami do 500.000EUR bez DPH.
Cena pozemku, projektu a rozostavanej stavby s materiálom je 320.000EUR + DPH. Byty sú navrhnuté, aby spĺňali možnosť financovania cez ŠFRB.
Pre viac informácií nás neváhajte kontaktovať.
PONUKU INZERUJE
Podrobné informácie
| Rozloha pozemku | 1175 m² |
|---|---|
| Celková rozloha | 1175 m² |
| Poschodie | neuvedené |
| Status | aktívne |
| Voda | verejný vodovod |
| El. napätie | 230V |
| Plyn | áno |
|---|---|
| Kanalizácia | žumpa |
| Terén | rovina |
| Prístupová cesta | asfaltová cesta |
| Pripravené na výstavbu | vydané stavebné povolenie |
Mohlo by vás tiež zaujímať
Predaj Pozemky - bývanie
804 m2
Senica
39.000,- €
Predaj Pozemky - bývanie
721 m2
Senica
80.000,- €
Predaj Pozemky - bývanie
2759 m2
Senica
262.500,- €
Predaj Pozemky - bývanie
720 m2
Senica
69.900,- €
Predaj Pozemky - bývanie
5643 m2
Senica
10,- €/m2
Predaj Pozemky - bývanie
460 m2
Senica
80.000,- €
Predaj Pozemky - bývanie
1585 m2
Senica
88.000,- €
Predaj Pozemky - bývanie
1451 m2
Senica
129.990,- €
Predaj Pozemky - bývanie
3302 m2
Senica
59.000,- €
Predaj Pozemky - bývanie
1396 m2
Senica
77.500,- €
Predaj Pozemky - bývanie
21853 m2
Senica
Cena v RK
Predaj Pozemky - bývanie
2000 m2
Senica
25.000,- €
Predaj Pozemky - bývanie
523 m2
Senica
51.990,- €
Predaj Pozemky - bývanie
572 m2
Senica
75.000,- €
Predaj Pozemky - bývanie
997 m2
Senica
69.500,- €
Vaše hodnotenie ponuky
Analýza ponuky pozemkov v lokalite Senica
V okrese Senica je na ZoznamRealit.Sk 12 pozemkov na predaj a 1 pozemok na prenájom.
Najdrahšia ponuka stojí 320.000,- € na predaj a najlacnejšia ponuka pozemku pre lokalitu Senica 25.000,- €.
V okrese Senica pôsobí a na ZoznamRealit.Sk inzeruje 5 realitných kancelárií, z toho sú 3 Overeným členom ZRKS.
