Pozemok s rozostavanou stavbou pre 12 bytov pri Senici
746x zobrazená v zozname / 129x zobrazená detailne / 129x zobrazená detailne tento mesiac
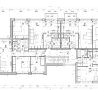
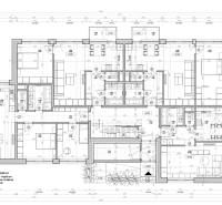
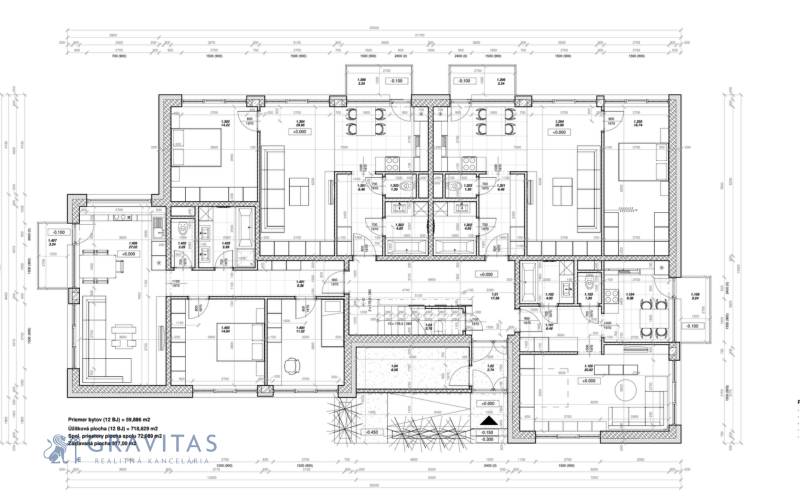
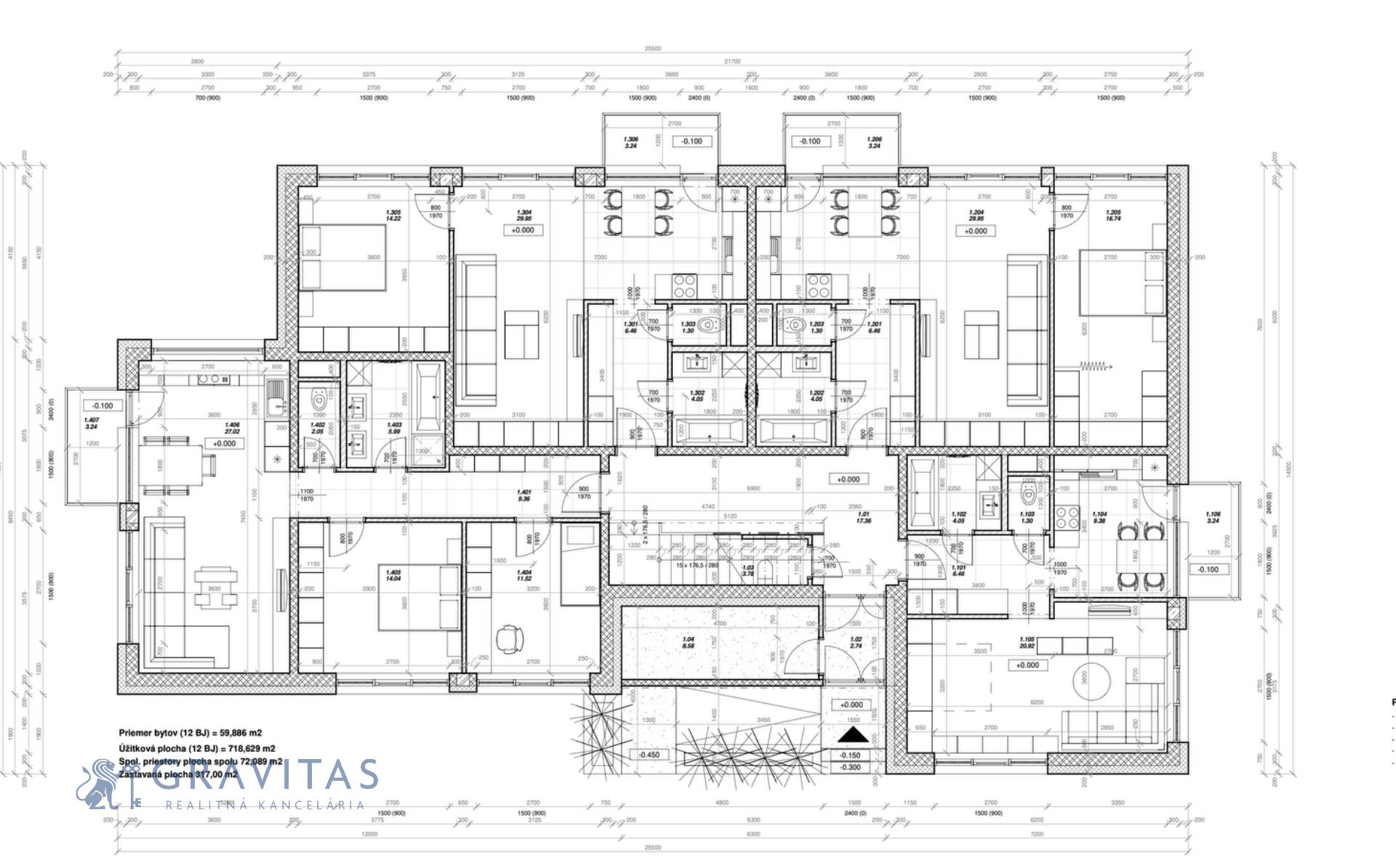
Ponúkame na predaj zaujímavý pozemok s právoplatným stavebným povolením a začatou stavbou bytového domu v tesnej blízkosti okresného mesta Senica. Jedná sa celkovo o 12 bytov, 1 až 3- izbové dispozície v centre susednej obci Koválov.
- Postavené základy a 1.NP + materiál pre 2.NP.
- Celková výmera pozemku je 1175 m2
- Úžitková plocha bytov spolu 718,6 m2
- 3 rovnaké podlažia, na každom je 1x 1-izb., 2x 2-izb. a 1x 3-izb. byt
- Bytový dom ráta so 17 vonkajšími park. miestami
- Napojenie na verejný vodovod, kúrenie elektrina/ tep. čerpadlo, odkanalizovanie pomocou žumpy
- Možnosť dokončenia stavby do štádia holobyt aj s vonkajšími plochami do 500.000EUR bez DPH.
Cena pozemku, projektu a rozostavanej stavby s materiálom je 320.000EUR + DPH. Byty sú navrhnuté, aby spĺňali možnosť financovania cez ŠFRB.
Cena nehnuteľnosti zahŕňa kompletný právny servis zabezpečený advokátskou kanceláriou, hypotekárne poradenstvo a asistenciu počas celého procesu prevodu vlastníctva.
Radi pomôžeme aj Vám, aby celý proces predaja alebo prenájmu prebehol bezpečne, profesionálne a bez starostí.
Zistite aktuálnu hodnotu Vašej nehnuteľnosti – ocenenie a návrh marketingovej stratégie od nás získate nezáväzne.
©️ Text a fotografie sú autorským dielom a majetkom realitnej kancelárie Gravitas.
PONUKU INZERUJE
Podrobné informácie k developerským pozemkom na predaj
| Rozloha pozemku | 1175 m² |
|---|---|
| Celková rozloha | 1175 m² |
| Poschodie | neuvedené |
| Status | aktívne |
| Voda | verejný vodovod |
| El. napätie | 230V |
| Plyn | áno |
|---|---|
| Kanalizácia | žumpa |
| Terén | rovina |
| Prístupová cesta | asfaltová cesta |
| Pripravené na výstavbu | vydané stavebné povolenie |
