PREDAJ VEĽKORYSÝ 2 IZBOVÝ BYT NOVOSTAVBA DESINGN CENTER
8635x zobrazená v zozname / 135x zobrazená detailne / 135x zobrazená detailne tento mesiac
Realitná kancelária Real-H,s.r.o. ponúka na predaj moderný 2 izbový byt v pokojnom prostredí bratislavských Jaroviec, NÁMESTIE PRI SÝPKE , BA V
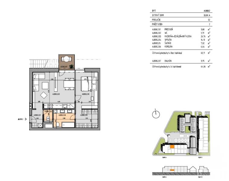
Byt má výmeru 60,48 m2. K bytu prislúcha aj BALKÓN.
Umiestnený je na 1. poschodí nízkopodlažnej novostavby Design Center Jarovce, ktorá bola skolaudovaná v roku 2025.
Mesačné náklady sú 92,-EUR + elektrina
K bytu je možné dokúpiť aj garážové státie a sklad ( pivnicu )
Byt je v modernom a kvalitnom vyhotovení:
- biele interiérové dvere a zárubne
- plávajúce podlahy
- plastové okná
- vlastné kúrenie a ohrev vody
- kúpeľňa a WC vybavené moderným obkladom a dlažbou
- samostatné WC (závesný podoomietkový systém) s umývadielkom
- druhé WC je umiestnené v kúpeľni so sprchovacím kútom, dvojitým umývadlom, priestor na práčku so sušičkou
- vlastné kúrenie (vlastný kotol) aj ohrev vody
- videovrátnik
- vyššie stropy
Priečka na oddelenie spálne od obývačky s kuchyňou s posuvnými dverami bude dorobená v cene podľa želania kupujúceho.
Lokalita ponúka bývanie obklopené prírodou, dobrú občiansku vybavenosť, nachádza sa tu materská škola, základná škola, materské centrum, zdravotné stredisko, lekáreň, potraviny, zastávky MHD, dobrá dostupnosť do mesta, v tesnej blízkosti sa nachádza hraničný priechod.
CENA: 229 000,-EUR, možnosť kúpy aj na hypotekárny úver
Provízia zahŕňa kvalitné realitné a právne služby spojené s prevodom nehnuteľnosti:
– vypracovanie kompletnej zmluvnej dokumentácie (zmluva o budúcej zmluve, rezervačná zmluva, zmluva o prevode vlastníctva bytu, návrh na vklad vlastníckych práv, prípadné dodatky, protokol o prevzatí a odovzdaní nehnuteľnosti…)
– notárske poplatky spojené s overovaním podpisov predávajúceho na zmluve o prevode vlastníctva bytu
– správny poplatok (kolok v hodnote 100,-EUR) spojený s návrhom na vklad vlastníckych práv
– zabezpečenie promptného ohodnotenia nehnuteľnosti prostredníctvom znalca, ktorý je akceptovaný všetkými bankami
VÝKUP NEHNUTEĹNOSTÍ
Ponúkame Vám expresné vykúpenie vašej nehnuteľnosti za najvýhodnejšiu cenu .
Potrebujete rýchlo , bezpečne a diskrétne predať vašu nehnuteľnosť?
Nemusíte absolvovať nespočetné množstvo obhliadok a hľadať vhodného kupujúceho, vašu nehnuteľnosť po vzájomnej dohode vyplatíme do 24 hodín..
Rýchlo a bezpečne vyplatíme vaše dlhy, exekúcie, pôžičky a úvery, zabezpečíme právny servis a kompletné služby spojené s katastrálnym konaním.
Zabezpečíme maximálnu diskrétnosť počas celého procesu výkupu vašej nehnuteľnosti.
Ďalej hľadáme pre svojich klientov NEHNUTEĽNOSTI v Bratislave a blízkom okolí (garsónky, 1, 2, 3, 4 izb. byty, pozemky, RD). Ponúknite nám na predaj svoje nehnuteľnosti. Platba v hotovosti, alebo na úver. Tešíme sa na spoluprácu s Vami, prosím kontaktujte nás telefonicky, prípadne nám pošlite email, SMS a my sa s Vami skontaktujeme. Ďakujeme Vám za každý kontakt.
Kontakt: Real-H,s.r.o
Office: Hraničná 20B, 821 05 Bratislava
Hana Bačiková
Email: h.bacikova
www.realh.sk
Podrobné informácie k 2 izbovému bytu na predaj
| Celková rozloha | 60.48 m² |
|---|---|
| Úžitková plocha | 60.48 m² |
| Poschodie | 1/vyššie poschodie |
| Počet poschodí | 2 |
| Počet izieb | 2 |
| Vlastníctvo | osobné |
| Stav | úplne prerobený |
| Status | aktívne |
| Odvoz odpadu | áno - separovaný |
| Plyn | nie |
| Internet | optika |
| Kúpeľňa | sprchovací kút |
| Vykurovanie | vlastné - elektrické |
| Balkón | áno - 1 |
| Lódžia | nie |
| Terasa | nie |
| Pivnica | áno |
|---|---|
| Garáž | áno - 1 auto |
| Výťah | áno |
| Postavené z | Zmiešané |
| Zariadenie | nezariadený |
| Zateplený objekt | áno |
| Krb | nie |
| Klimatizácia | áno |
| Káblová televízia | áno |
| Energetický certifikát | A |
| Predzáhradka | nie |
| Bezbariérový prístup | áno |
| Okná | hliníkové |
| Orientácia | východná |
| Novostavba | áno |
Ďalšie 2 izbové byty v Jarovciach, Bratislava na predaj
Hodnotenie ponuky - PREDAJ VEĽKORYSÝ 2 IZBOVÝ BYT NOVOSTAVBA DESINGN CENTER
Analýza ponuky bytov v lokalite Bratislava - Jarovce
V okrese Bratislava - Jarovce je na ZoznamRealit.Sk 8 bytov na predaj a 1 byt na prenájom.
Najdrahšia ponuka stojí 319.000,- € na predaj a najlacnejšia ponuka bytu pre lokalitu Bratislava - Jarovce 229.000,- €.
V okrese Bratislava pôsobí a na ZoznamRealit.Sk inzeruje 90 realitných kancelárií, z toho je 57 Overených členov ZRKS.
