Prenájom 3-izbový byt s loggiou, SKY PARK, Bratislava
33061x zobrazená v zozname / 359x zobrazená detailne / 359x zobrazená detailne tento mesiac
Ponúkame na prenájom štýlový a moderne zariadený 3-izbový byt v projekte SKY PARK
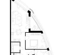
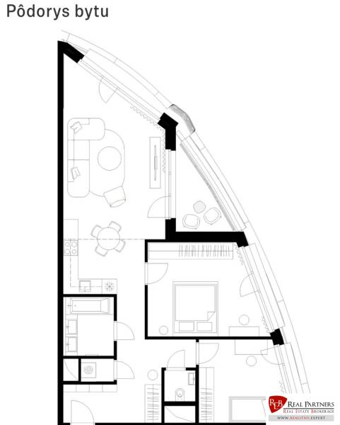
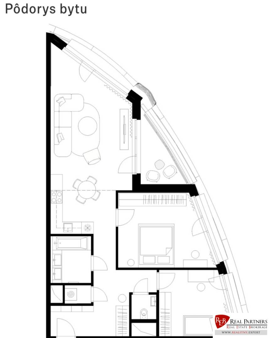
REB.sk ponúka na prenájom byt s celkovou výmerou 79,41 m² sa nachádzajúci sa na 4. poschodí v 4. veži Sky Parku na ulici Bottova. Súčasťou bytu je loggia o výmere 5,42 m², ideálna na oddych. Byt je presvetlený, orientovaný na severovýchod a ponúka príjemný výhľad na centrum Bratislavy. Spája nadčasový dizajn, komfort a výnimočnú polohu v centre mesta.
Základné informácie:
• Lokalita: Bratislava – Staré Mesto, Sky Park (veža 4)
• Poschodie: 4. poschodie
• Orientácia: severovýchod
• Dispozícia: 3-izbový byt (2 spálne)
• Loggia: 5,42 m²
Dispozícia a vybavenie
• dve samostatné spálne
• priestranná obývacia izba prepojená s kuchyňou
• plne vybavená kuchyňa so spotrebičmi
• klimatizácia, rýchle Wi-Fi a smart TV v cene nájmu
• štýlový interiér, byt je kompletne zariadený a pripravený na okamžité nasťahovanie
Lokalita a benefity
• historické centrum a Michalská brána: cca 1,4 km
• Bratislavský hrad: cca 2,5 km
• OC Eurovea a dunajská promenáda: cca 1 km
• OC Nivy a autobusová stanica: cca 1,2 km
• park, detské ihriská, reštaurácie a kaviarne priamo v areáli Sky Parku
Cena a podmienky prenájmu
• Nájomné: 1 600€ / mesiac
• Energie: 400€ / mesiac
• Parkovacie státie: 150€ / mesiac
• Kaucia: vo výške 2-mesačného nájmu
• Domáce zvieratá: nie sú povolené
Pre bližšie informácie a obhliadky nás môžete kontaktovať na alebo mailom
© Všetky informácie uvedené v tomto inzeráte sú orientačné a môžu podliehať zmene.
© Text a fotografie sú autorským dielom a majetkom realitnej kancelárie REB - REAL PARTNERS
Aká je občianska vybavenosť na ulici Bottovej v Bratislave – Historickom jadre?
Ulica Bottova v projekte Sky Park patrí k mestským adresám, kde sa nové bývanie stretáva s historickou atmosférou centra. Priamo pri Múzeu mesta Bratislavy (vo vzdialenosti 0 m) máte kontakt s kultúrou a pamiatkami, pričom staré uličky s Michalskou bránou či výhľadom na Bratislavský hrad sú na dosah. Bývanie na prenájom v 3-izbovom byte tu ťaží z polohy v jadre diania a zároveň z premyslenej infraštruktúry okolia.
Každodenný komfort dopĺňajú miesta na stretnutia aj oddych. Na rannú kávu poslúži v kaviarni Radnička (vo vzdialenosti 8 m), obed zvládnete v reštaurácii Divná múza (vo vzdialenosti 52 m) a večer môžete zakončiť v bare Old Vibe Winery (vo vzdialenosti 57 m). Praktické nákupy zariadite v obchode Suveníry (vo vzdialenosti 49 m) alebo v neďalekých centrách Eurovea a Nivy s autobusovou stanicou.
Administratívne zázemie dotvára blízkosť Veľvyslanectva Japonska (vo vzdialenosti 45 m). Voľnočasový program spestrí úniková hra Trapped (vo vzdialenosti 75 m). Priamo v areáli Sky Parku sa nachádza park, detské ihriská, reštaurácie a kaviarne, takže zázemie pre rodinu aj prácu z domu je pripravené bez nutnosti presunov. Dunajská promenáda ponúka priestor na prechádzky a šport, pričom všetko podstatné zostáva v pešej dostupnosti.
Okolie ulice Bottova v Bratislava - Historické jadro ponúka tieto možnosti:
Cestovný ruch: Múzeum mesta Bratislavy - 0 m
Kaviareň: Radnička - 8 m
Administratíva / kancelárie: Veľvyslanectvo Japonska - 45 m
Obchod: Suveníry - 49 m
Reštaurácia: Divná múza - 52 m
Bar: Old Vibe Winery - 57 m
Voľný čas / rekreácia: Trapped - 75 m
PONUKU INZERUJE
Bc Beata Hečkova
Realitný maklér
REB - REAL PARTNERS, s. r. o. pobočka Luxusné reality, Bratislava
Červeňova 28
81103 Bratislava
KontaktPodrobné informácie k 3 izbovému bytu na prenájom
| Úžitková plocha | 79.41 m² |
|---|---|
| Poschodie | 4/vyššie poschodie |
| Počet poschodí | 31 |
| Počet izieb | 3 |
| Vlastníctvo | osobné |
| Status | aktívne |
| Odvoz odpadu | áno |
| Plyn | nie |
| Internet | wifi |
| Kúpeľňa | áno |
| Vykurovanie | áno |
| Balkón | nie |
| Lódžia | áno |
| Terasa | nie |
| Garáž | áno |
|---|---|
| Výťah | áno |
| Parkovanie | áno |
| Postavené z | Zmiešané |
| Zariadenie | zariadený |
| Zateplený objekt | áno |
| Krb | nie |
| Klimatizácia | áno |
| Káblová televízia | áno |
| Energetický certifikát | áno |
| Predzáhradka | nie |
| Okná | hliníkové |
| Novostavba | áno |
Ďalšie 3 izbové byty Bratislava - Historické jadro na prenájom
Prenájom 3-izbový byt
116 m2
Bratislava - Staré Mesto
2.200,- €/mes.
Prenájom 3-izbový byt
80 m2
Bratislava - Staré Mesto
1.000,- €
Prenájom 3-izbový byt
114 m2
Bratislava - Staré Mesto
2.200,- €/mes.
Prenájom 3-izbový byt
88 m2
Bratislava - Staré Mesto
1.380,- €
Prenájom 3-izbový byt
78 m2
Bratislava - Staré Mesto
1.200,- €
Prenájom 3-izbový byt
116 m2
Bratislava - Staré Mesto
2.200,- €
Prenájom 3-izbový byt
135 m2
Bratislava - Staré Mesto
3.000,- €/mes.
Prenájom 3-izbový byt
133 m2
Bratislava - Staré Mesto
2.690,- €/mes.
Prenájom 3-izbový byt
80 m2
Bratislava - Staré Mesto
950,- €/mes.
Prenájom 3-izbový byt
125 m2
Bratislava - Staré Mesto
3.150,- €/mes.
Prenájom 3-izbový byt
142 m2
Bratislava - Staré Mesto
2.500,- €
Prenájom 3-izbový byt
116 m2
Bratislava - Staré Mesto
2.200,- €
Prenájom 3-izbový byt
164.52 m2
Bratislava - Staré Mesto
3.150,- €
Prenájom 3-izbový byt
65 m2
Bratislava - Staré Mesto
1.250,- €/mes.
Prenájom 3-izbový byt
85 m2
Bratislava - Staré Mesto
1.000,- €/mes.
Prenájom 3-izbový byt
134 m2
Bratislava - Staré Mesto
2.500,- €/mes.
Prenájom 3-izbový byt
68 m2
Bratislava - Staré Mesto
660,- €/mes.
Prenájom 3-izbový byt
81 m2
Bratislava - Staré Mesto
900,- €/mes.
Hodnotenie ponuky - Prenájom 3-izbový byt s loggiou, SKY PARK, Bratislava
Analýza ponuky bytov v lokalite Bratislava - Historické jadro, Bratislava - Staré Mesto
V lokalite Bratislava - Historické jadro, okres Bratislava - Staré Mesto je na ZoznamRealit.Sk 179 bytov na predaj a 358 bytov na prenájom.
Najdrahšia ponuka stojí 3.150,- € na prenájom a najlacnejšia ponuka bytu pre lokalitu Bratislava - Historické jadro 710,- €.
V okrese Bratislava pôsobí a na ZoznamRealit.Sk inzeruje 88 realitných kancelárií, z toho je 57 Overených členov ZRKS.
