Prenájom haly / obchodno-skladových priestorov – Šenkvice, Nádražná ul
5641x zobrazená v zozname / 286x zobrazená detailne / 122x zobrazená detailne tento mesiac
VIDA REAL ponúka na prenájom zrekonštruovanú halu s možnosťou využitia vonkajších plôch na Nádražnej ulici v Šenkviciach.
Možnosti využitia sú napr sklad alebo logistika, obchodné priestory alebo showroom, e-shop a distribúcia, servis alebo montážne priestory, ľahká výroba bez hluku.
Základné parametre:
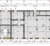
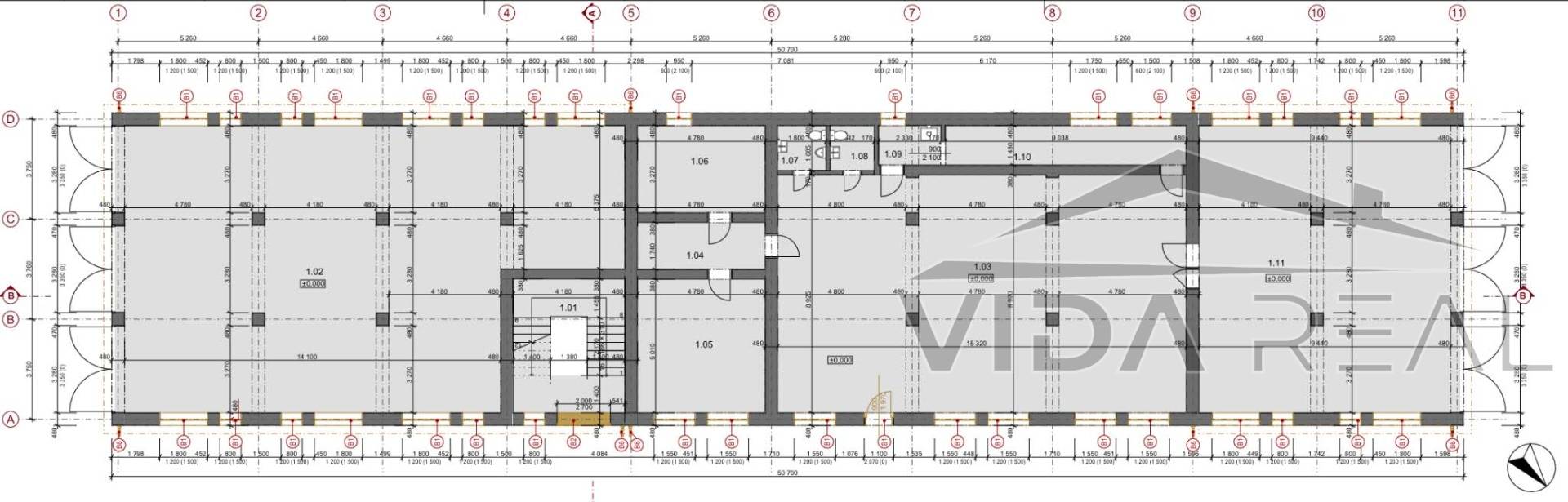
- vnútorná plocha 490,61m2
- vonkajšia plocha 1095m2 + plechová garáž 123m2
Cena prenájmu:
- hala: 7€ / m² / mesiac
- vonkajšie plochy: 3€ / m² / mesiac
- energie (elektrina, plyn) podľa spotreby
- možnosť prenájmu iba časti haly, podľa dohody
- pri podpise zmluvy sa platí provízia vo výške 1.500,-Eur
Výhody:
- dobrá dostupnosť
- cca 500 m² celkovej plochy
- možnosť využitia vonkajších plôch alebo parkovania
- flexibilné využitie priestoru
- viacero samostatných vstupov z ulice (veľká výhoda pre obchod alebo showroom)
- ihneď k dispozícii
- sociálne zázemie (2× WC)
- možnosť rozdeliť na viac prevádzok
Jedná sa o priestory po rekonštrukcii, fasáda bude dokončená tento rok počas letných mesiacov. Viď vizualizácia.
Pre viac informácií a dohodnutie obhliadky nás neváhajte kontaktovať!
VIDA REAL
Rastislav Jajcay
Aká je občianska vybavenosť na ulici Nádražnej v Šenkviciach?
Ulica Nádražná v Šenkviciach je praktickou adresou pre prevádzky so skladovým či showroomovým zázemím. Dobrá dostupnosť, na ktorú sa v tejto ponuke kladie dôraz, vychádza aj z polohy pri dopravnom uzle: pri autobusovej zastávke Šenkvice, žel. stanica vo vzdialenosti 157 m. Vďaka priamej orientácii na ulicu je vhodná aj pre prevádzky s viacerými vstupmi a prirodzeným zákazníckym prístupom.
Prevádzky zamerané na logistiku a e‑shop ocenia AlzaBox vo vzdialenosti 100 m, ktorý uľahčuje výdaj a príjem zásielok. Servisné a montážne tímy majú na dosah Požičovňu náradia vo vzdialenosti 27 m. K dispozícii je aj čerpacia stanica Jurki vo vzdialenosti 446 m, čo zjednodušuje zásobovanie aj tankovanie firemných vozidiel.
Zamestnanci nájdu v okolí možnosti stravovania a oddychu. Reštaurácia Sa&Tu club BOWLING sa nachádza vo vzdialenosti 495 m a Zmrzlina Roma vo vzdialenosti 474 m. Hneď pri objekte je aj Fire Fitness vo vzdialenosti 8 m, čo poteší priaznivcov aktívneho životného štýlu.
Lokalita týmto službám prirodzene nahráva a dopĺňa charakter zrekonštruovaných priestorov vhodných pre sklad, logistiku, showroom, e‑shop s distribúciou či ľahkú nerušivú výrobu. Kombinácia dostupnosti a ponuky služieb v okruhu niekoľkých stoviek metrov podporuje flexibilné využitie priestoru aj prípadné rozdelenie na viaceré prevádzky.
Okolie ulice Nádražnej v Šenkviciach ponúka tieto možnosti:
Voľný čas / rekreácia: Fire Fitness - 8 m
Obchod: Požičovňa náradia - 27 m
Balíkomat: AlzaBox - 100 m
Autobusová zastávka: Šenkvice, žel. stanica - 157 m
Čerpacia stanica: Jurki - 446 m
Zmrzlina: Zmrzlina Roma - 474 m
Reštaurácia: Sa&Tu club BOWLING - 495 m
Podrobné informácie k skladom a halám na prenájom
| Celková rozloha | 1708.61 m² |
|---|---|
| Úžitková plocha | 490 m² |
| Poschodie | prízemie |
| Stav | čiastočne prerobený |
| Status | aktívne |
| Odvoz odpadu | áno |
| Voda | verejný vodovod |
| El. napätie | 230/400V |
| Plyn | áno |
| Kanalizácia | áno |
|---|---|
| Kúpeľňa | nie |
| Garáž | áno |
| Parkovanie | vnútorné |
| Inžinierske siete | áno |
| Postavené z | tehla |
| Zateplený objekt | plánuje sa |
| Energetický certifikát | nie |
Ďalšie sklady a haly Šenkvice na prenájom
Prenájom Sklady a haly
108 m2
Pezinok
6,- €/m2/mes.
Prenájom Sklady a haly
1200 m2
Pezinok
1,- €/m2/mes.
Prenájom Sklady a haly
2000 m2
Pezinok
1,50 €/m2/mes.
Prenájom Sklady a haly
1139 m2
Pezinok
2.100,- €/mes.
Prenájom Sklady a haly
4900 m2
Pezinok
1,50 €/m2/mes.
Prenájom Sklady a haly
548 m2
Pezinok
4,49 €/m2/mes.
