Reprezentatívne priestory na prenájom, Mlynská, Košice - Staré mesto
330,00 € / mes +energie, +DPH, vrátane provízie
13028x zobrazená v zozname / 286x zobrazená detailne / 174x zobrazená detailne tento mesiac
Mgr. Gabriela Ferenczová a Impulz Real, s.r.o. Vám ponúkajú na prenájom reprezentatívne kancelárske priestory priamo v srdci centra mesta na Mlynskej ulici.
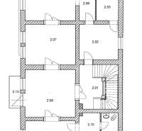
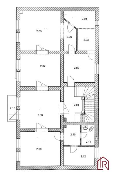
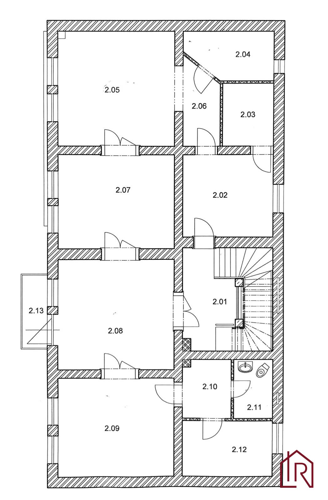
Ponúkané priestory majú celkovú rozlohou 138,05m2 s výhľadom na Dóm sv. Alžbety.
Cena mesačného nájmu pozostáva z:
9€/m2 x 138,05m2 = 1242,45€€
+ 330€ zálohová platba za energie, pri dlhšom nájme upravená podľa reálnej spotreby
+ DPH
Celoková cena prenájmu je 1572,45€ mesačne bez DPH (1934,11€ mesačne s DPH )
Depozitu je vo výške jedného mesačného nájmu.
Priestory sa skladajú zo štyroch veľkých presvetlených kancelárii, jednej menšej kancelárie, serverovne, skladu, kuchynky a toalety.
Priestory disponujú až troma samostatnými vstupmi, čo umožňuje flexibilné usporiadanie podľa potrieb nájomcu.
Doplňujúce informácie:
- 2x klimatizačná jednotka v kanceláriách
- Samostatná klimatizácia v serverovni
- Vlastný kotol zabezpečujúci kúrenie a ohrev teplej vody
- Optický internet v budove
- Priestory sa rozliehajú na celom poschodí, čo zaručuje dostatok súkromia
Pre bližšie informácie sa s dôverou môžete kedykoľvek obrátiť na rodinného realitného makléra: Mgr. Gabriela Ferenczová , (certifikovaný maklér NARKS - Národná asociácia realitných kancelárií Slovenska).
Tešíme sa na spoluprácu.
"VŠETKO POD JEDNOU STRECHOU", zabezpečenie právnych služieb advokátom, protokolárne odovzdanie nehnuteľnosti a 100% servis aj v budúcnosti so spoľahlivým tímom čestných a kvalifikovaných ľudí s dlhoročnými skúsenosťami. S nadhľadom profesionálnych skúseností, s maximálnym rešpektovaním Vašich potrieb, žijeme s vami Vaše realitné rozhodnutia akoby boli naše vlastné.
Impulz Real - spoločnosť, ktorej DÔVERUJETE.
Aká je občianska vybavenosť na ulici Mlynskej v Košiciach - mestskej časti Staré Mesto?
OC GASTRODOM na Mlynskej 27 leží priamo v centre Košíc, v mestskej časti Staré Mesto. Adresa je ľahko identifikovateľná, čo ocenia firmy aj ich klienti. Okolie ponúka široké zázemie služieb a veľmi dobré napojenie na dopravu; v dosahu sa nachádza železničná aj autobusová stanica, čo uľahčuje dochádzanie zamestnancov aj návštev.
Každodennú rutinu spríjemní blízkosť podnikov a reštaurácií. Na kávu si zájdete do kaviarne Caffé Trieste vo vzdialenosti 7 m, rýchle občerstvenie zabezpečí Bandy Food vo vzdialenosti 8 m a na obed poslúži reštaurácia COM VIET vo vzdialenosti 23 m. Po práci sa dá stretnúť v bare El Nacional vo vzdialenosti 44 m.
Praktické zázemie dopĺňajú finančné a nákupné možnosti: bankomat Slovenskej sporiteľne je vo vzdialenosti 7 m a bežné nákupy vybavíte v obchode Michalels vo vzdialenosti 7 m. V susedstve pôsobia aj ďalšie administratívne subjekty, napríklad kancelárie Century 21 vo vzdialenosti 13 m, čo podčiarkuje pracovný charakter ulice.
Mlynská ponúka firmám stabilnú adresu s koncentrovanými službami a infraštruktúrou. Pešia dostupnosť občianskej vybavenosti, známa administratívna budova OC GASTRODOM a výhodná poloha v centre mesta vytvárajú funkčné prostredie pre profesionálne zázemie.
Okolie ulice Mlynská v Košice - mestská časť Staré Mesto ponúka tieto možnosti:
Obchod: Michalels - 7 m
Kaviareň: Caffé Trieste - 7 m
Bankomat: Slovenská sporiteľňa - 7 m
Rýchle občerstvenie: Bandy Food - 8 m
Administratíva / kancelárie: Century 21 - 13 m
Reštaurácia: COM VIET - 23 m
Bar: El Nacional - 44 m
PONUKU INZERUJE
Mgr. Gabriela Ferenczová
rodinný realitný poradca
Podrobné informácie k kanceláriám na prenájom
| Úžitková plocha | 138.05 m² |
|---|---|
| Poschodie | 2/vyššie poschodie |
| Počet poschodí | 3 |
| Počet izieb | 5 |
| Vlastníctvo | firemné |
| Stav | po rekonštrukcii |
| Status | aktívne |
| Internet | optika |
| Kúpeľňa | áno |
| Balkón | áno - 1 |
| Lódžia | nie |
| Garáž | nie |
|---|---|
| Výťah | nie |
| Parkovanie | nie |
| Postavené z | tehla |
| Zariadenie | nezariadený |
| Zateplený objekt | nie |
| Klimatizácia | áno |
| Káblová televízia | nie |
| Energetický certifikát | nie |
| Bezbariérový prístup | nie |
| Okná | drevené |
Ďalšie kancelárie Košice - mestská časť Staré Mesto na prenájom
Prenájom Kancelárie
130 m2
Košice - Staré Mesto
11,- €/m2
Prenájom Kancelárie
10 m2
Košice - Staré Mesto
16,80 €/mes.
Prenájom Kancelárie
15 m2
Košice - Staré Mesto
698,- €
Prenájom Kancelárie
73 m2
Košice - Staré Mesto
499,- €/mes.
Prenájom Kancelárie
10 m2
Košice - Staré Mesto
149,- €
Prenájom Kancelárie
127.04 m2
Košice - Staré Mesto
1.300,52 €
Prenájom Kancelárie
20 m2
Košice - Staré Mesto
20,- €
Prenájom Kancelárie
0 m2
Košice - Staré Mesto
15,- €/m2/mes.
Prenájom Kancelárie
15 m2
Košice - Staré Mesto
11,25 €/m2/mes.
Prenájom Kancelárie
1000 m2
Košice - Staré Mesto
12,- €
Prenájom Kancelárie
8 m2
Košice - Staré Mesto
349,- €
Prenájom Kancelárie
234.79 m2
Košice - Staré Mesto
2.289,43 €/mes.
Prenájom Kancelárie
0 m2
Košice - Staré Mesto
35,- €/mes.
Prenájom Kancelárie
25.96 m2
Košice - Staré Mesto
10,- €
Prenájom Kancelárie
104.12 m2
Košice - Staré Mesto
10,- €/m2/mes.
Prenájom Kancelárie
44 m2
Košice - Staré Mesto
6,- €
Prenájom Kancelárie
30 m2
Košice - Staré Mesto
11,25 €/m2/mes.
Prenájom Kancelárie
130 m2
Košice - Staré Mesto
9,50 €/m2/mes.
Hodnotenie ponuky - Reprezentatívne priestory na prenájom, Mlynská, Košice - Staré mesto
Analýza ponuky kancelárií v lokalite Košice - mestská časť Staré Mesto, Košice - Staré Mesto
V lokalite Košice - mestská časť Staré Mesto, okres Košice - Staré Mesto je na ZoznamRealit.Sk 22 kancelárií na prenájom.
Najdrahšia ponuka stojí 2.709,- €/mes. na prenájom a najlacnejšia ponuka kancelárie pre lokalitu Košice - mestská časť Staré Mesto 17,- €/mes..
V okrese Košice pôsobí a na ZoznamRealit.Sk inzeruje 24 realitných kancelárií, z toho je 16 Overených členov ZRKS.
