REZERVÁCIA _4-izb.rodinný dom na Okružnej ul.-Senec
8430x zobrazená v zozname / 211x zobrazená detailne / 211x zobrazená detailne tento mesiac
Ponúkame na predaj 4 izbový rodinný dom s garážou na Okružnej ulici v Senci. Dom sa nachádza v novovybudovanej lokalite na okraji Senca s dobrou náväznosťou na diaľnicu ako aj Seneckú cestu (lokalita Mlynský klin). Jedná sa o krajný dom v radovej zástave (troj-dome) so samostatnou garážou prístupnou zo zadnej strany pozemku. Tichá lokalita a priaznivá poloha prispievajú ku komfortu bývania. Cena domu vrátane zariadenia je 285.500.-K dispozícii je od leta 2026.
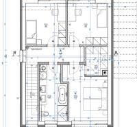
Dispozícia a popis domu:
Celková výmera domu je 144m2. Zastavaná plocha 72m2 a plocha záhrady 248m2. Dispozičné riešenie pozostáva z dvoch podlaží. Na prízemí sa nachádza denná časť: vstupná chodba z ktorej je vstup do otvorenej obývacej izby s jedálňou a kuchyňou, samostatného wc a technickej miestnosti. Kuchyňa je vybavená kuchynskou linkou so zabudovanými (kompletnými) spotrebiči a prislúcha k nej aj komora. Z obývacej časti je výstup na terasu a do dvora. Terasa je pojednaná bioklimatickou lamelovou pergolou s osvetlením – solisystém. Schodiskom z dennej časti je prístupné poschodie kde sa nachádza nočná časť domu: tri spálne, z toho jedna so samostatným šatníkom a priestranná kúpeľňa s vaňou aj sprchovacím kútom.
Vybavenie domu:
Dom sa predáva čiastočne zariadený v rozsahu ako je zachytený na fotodokumentácii. V dome je kuchynská linka vrátane všetkých spotrebičov, jedálenský stôl so stoličkami, dve spálne sú vybavené úložným priestorom (skrine) a rozťahovacím gaučom, hlavná spálňa manželskou posteľou a samostatným zabudovaným šatníkom. Kúpeľňa je vybavená vaňou, sprchovacím kútom, dvoj-umývadlom a toaletou. Všetko vybavenie je vo vyššom štandarde.
V izbách je plávajúca podlaha, v kúpeľni keramický obklad, dlažba.
Dom je klimatizovaný a vybavený zabezpečovacím systémom-alarmom. Ku domu patrí aj samostatná garáž a taktiež dve parkovacie státia pred domom. Jedná sa o novostavbu kolaudovanú v r.2019.
Lokalita:
Dobrá poloha v tichej novovybudovanej časti medzi rodinnými domami s dobrým napojením na diaľnicu a starú seneckú cestu. Materská škôlka a detské ihrisko v blízkosti domov, základná škola a ostatná občianska vybavenosť dostupná v okolí. Vlaková zastávka Veľký Biel (3,5km)
Cena nehnuteľnosti zahŕňa kompletný právny servis zabezpečený advokátskou kanceláriou, hypotekárne poradenstvo a asistenciu počas celého procesu prevodu vlastníctva.
Radi pomôžeme aj Vám, aby celý proces predaja alebo prenájmu prebehol bezpečne, profesionálne a bez starostí.
Zistite aktuálnu hodnotu Vašej nehnuteľnosti – ocenenie a návrh marketingovej stratégie od nás získate nezáväzne.
©️ Text a fotografie sú autorským dielom a majetkom realitnej kancelárie Gravitas.
Aká je občianska vybavenosť na ulici Okružnej v Senci?
Okružná v Senci leží v novovybudovanej časti pri lokalite Mlynský klin. Ide o tichú rezidenčnú zónu medzi rodinnými domami, ktorá ťaží z dobrého napojenia na diaľnicu aj Seneckú cestu. Praktické spojenie dopĺňajú autobusové linky; zastávka Senec, Mlynský klin je vo vzdialenosti 250 m.
Ulica pôsobí komorne a je vhodná na rodinné bývanie. V okolí sa nachádza materská škôlka aj detské ihrisko, zatiaľ čo základná škola a ostatné služby sú dostupné v meste. Z praktických služieb poteší prítomnosť Autoservisu STIGI vo vzdialenosti 904 m, ktorý dopĺňa miestnu občiansku vybavenosť. Aj na zastávku Senec, Mlynský klin sa dostanete rýchlo – je to 250 m.
Blízkosť hlavného ťahu a prístupových ciest uľahčuje presun po Senci aj smerom na okolie; pre dochádzanie je v dosahu aj železničná trať s nástupišťom vo Veľkom Bieli. Každodenný chod spríjemní krátka dochádzka na autobusovú zastávku Senec, Mlynský klin vo vzdialenosti 250 m a medzi službami nechýba ani Autoservis STIGI približne 904 m od ulice.
Okolie ulice Okružnej v Senci ponúka tieto možnosti:
Autobusová zastávka: Senec, Mlynský klin - 250 m
Obchod: Autoservis STIGI - 904 m
PONUKU INZERUJE
Podrobné informácie k rodinnému domu na predaj
| Rozloha pozemku | 248 m² |
|---|---|
| Zastavaná plocha | 144 m² |
| Úžitková plocha | 144 m² |
| Poschodie | neuvedené |
| Počet poschodí | 2 |
| Počet izieb | 4 |
| Vlastníctvo | osobné |
| Status | aktívne |
| Odvoz odpadu | áno |
| Voda | verejný vodovod |
| El. napätie | 230V |
| Plyn | áno |
| Kanalizácia | žumpa |
| Internet | wifi |
| Kúpeľňa | vaňa a sprchovací kút |
| Vykurovanie | vlastné - plyn |
| Terasa | áno |
|---|---|
| Pivnica | nie |
| Garáž | áno |
| Parkovanie | áno |
| Inžinierske siete | áno |
| Postavené z | tehla |
| Zariadenie | čiastočne |
| Zateplený objekt | áno |
| Klimatizácia | áno |
| Káblová televízia | áno |
| Energetický certifikát | A |
| Predzáhradka | áno |
| Okná | plastové |
| Terén | rovina |
| Prístupová cesta | asfaltová cesta |
| Novostavba | áno |
Ďalšie rodinné domy v Senci na predaj
Predaj Rodinný dom
101.4 m2
Senec
329.000,- €
Predaj Rodinný dom
130 m2
Senec
435.000,- €
Predaj Rodinný dom
386 m2
Senec
550.000,- €
Predaj Rodinný dom
200 m2
Senec
595.000,- €
Predaj Rodinný dom
635 m2
Senec
Cena v RK
Predaj Rodinný dom
298 m2
Senec
380.000,- €
Predaj Rodinný dom
101.4 m2
Senec
329.000,- €
Predaj Rodinný dom
129 m2
Senec
349.900,- €
Predaj Rodinný dom
340 m2
Senec
432.600,- €
Predaj Rodinný dom
390 m2
Senec
Cena v RK
Predaj Rodinný dom
165 m2
Senec
360.000,- €
Predaj Rodinný dom
130 m2
Senec
359.000,- €
Predaj Rodinný dom
122 m2
Senec
195.000,- €
Predaj Rodinný dom
137.41 m2
Senec
139.990,- €
Predaj Rodinný dom
106 m2
Senec
299.000,- €
Predaj Rodinný dom
139 m2
Senec
320.000,- €
Predaj Rodinný dom
166.1 m2
Senec
405.000,- €
Predaj Rodinný dom
102 m2
Senec
439.000,- €
Hodnotenie ponuky - REZERVÁCIA _4-izb.rodinný dom na Okružnej ul.-Senec
Analýza ponuky rodinných domov v lokalite Senec
V okrese Senec je na ZoznamRealit.Sk 30 rodinných domov na predaj a 1 rodinný dom na prenájom.
Najdrahšia ponuka stojí 1.530.000,- € na predaj a najlacnejšia ponuka rodinného domu pre lokalitu Senec 575,- €.
V okrese Senec pôsobí a na ZoznamRealit.Sk inzeruje 6 realitných kancelárií, z toho je 5 Overených členov ZRKS.























