REZERVOVANÉ - 3i, OV, 71m2 + loggia, Lomonosovova, dizajnový, zariaden
9150x zobrazená v zozname / 155x zobrazená detailne / 155x zobrazená detailne tento mesiac
REZERVOVANÉ - Spoločnosť ImpulzReal a Lucia Talianová ponúkajú na predaj:
*** dokonalý dizajnový byt, Košice, Juh, Lomonosovova ***
*** Stará nemocnica 5 minút pešo ***
*** nádherný výhľad z loggie na mesto ***
*** kompletne zrekonštruovaný a zariadený ***
*** pripravený ihneď k nasťahovaniu ***
*** 71m2 + 6 metrová zasklená loggia, sklad na poschodí, pivnica ***
*** ideálne 3. poschodie, bezbariérový prístup ***
*** klimatizácia, drevené podlahy, vstavané skrine, ostrovček v kuchyni ***
*** priama orientácia východ/ západ ***
*** bytový dom po kompletnej rekonštrukcii ***
Lokalita:
- Košice, mestská časť Juh, Lomonosovova ulica
- v bezprostrednej blízkosti nové detské ihrisko, škôlky, školy
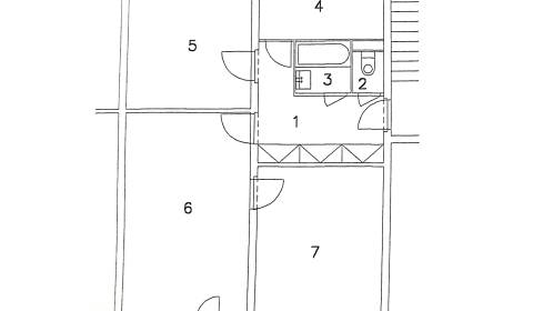
Dispozícia bytu:
- moderná dispozícia s veľkorysým komunikačným denným priestorom (priestranná obývačka prepojená s kuchyňou s výstupom na 6 metrovú loggiu)
- 2x nepriechodná spálňa
- samostatná kúpeľňa
- samostatná toaleta
- byt sa nachádza na ideálnom 3. poschodí zo 7
- patrí k nemu sklad na poschodí a pivnica na prízemí
Prevedená rekonštrukcia v byte:
- plastové okná, vymenená vodo a elektroinštalácia, bezpečnostné dvere, optika
- murované jadro a toaleta (vaňa so zástenou, umývadlo so skrinkou na mieru, šikovný skrytý dodatočný úložný priestor, práčka, toaleta geberit, umývadielko)
- masívne drevené podlahy (kuchyňa, obývačka
- izby príjemný koberec
- kuchynská linka na mieru s ostrovčekom a raňajkovým sedením, so vstavanými spotrebičmi (chladnička s mrazničkou, indukčná varná doska, elektrická rúra, komínový digestor, mikrovlnka, umývačka riadu 60cm)
- 2x vstavaná skriňa v oboch izbách
Byt sa predáva kompletne zariadený:
- obývačka: gauč v tvare "L" od Phase, konferenčný stolík, obývačková zostava nábytku, TV,
- kuchyňa: jedálenský stôl + 4 stoličky
- spálňa: vstavaná skriňa (kombinácia masív, sklo), skrinka z masívu na periny, manželská posteľ, matrace, kreslo
- detská izba: manželská posteľ, vstavaná skriňa
- vstupná chodba: vstavaná skriňa s botníkom a vešaním
Bytový dom:
- zateplený, vymenené stupačky, nová vstupná brána, vstup na čip
- kamerový systém, nový výťah vrátane kabíny, dlažba v celom BD
Zhrnutie:
Nádherný, dizajnový byt. Po kompletnej rekonštrukcii. Predáva sa vrátane kompletného zariadenia. Ihneď pripravený k nasťahovaniu. Vynikajúca lokalita. Byt, ktorý si zamilujete na prvý pohľad.
Pre bližšie informácie kontaktujte rodinného realitného makléra (certifikovaného NARKS): Lucia Talianová,
"VŠETKO POD JEDNOU STRECHOU", zabezpečenie právnych služieb, služby financovania, protokolárne odovzdanie nehnuteľnosti + elektrárne, plyn a 100% servis aj v budúcnosti so spoľahlivým teamom čestných a kvalifikovaných ľudí s dlhoročnými skúsenosťami. S nadhľadom profesionálnych skúseností, s maximálnym rešpektovaním vašich potrieb, žijeme s vami vaše realitné rozhodnutia akoby boli naše vlastné"
PONUKU INZERUJE
Podrobné informácie
| Celková rozloha | 77 m² |
|---|---|
| Úžitková plocha | 71 m² |
| Poschodie | 3/vyššie poschodie |
| Počet poschodí | 7 |
| Počet izieb | 3 |
| Vlastníctvo | osobné |
| Stav | úplne prerobený |
| Status | rezervované |
| Odvoz odpadu | áno |
| Internet | optika |
| Kúpeľňa | vaňa |
| Vykurovanie | spoločné |
| Balkón | nie |
| Lódžia | áno - 1 |
|---|---|
| Terasa | nie |
| Pivnica | áno |
| Garáž | nie |
| Výťah | áno |
| Parkovanie | vonkajšie |
| Postavené z | panel |
| Zariadenie | zariadený |
| Zateplený objekt | áno |
| Energetický certifikát | áno |
| Predzáhradka | nie |
| Bezbariérový prístup | áno |
| Okná | plastové |
Mohlo by vás tiež zaujímať
Predaj 3-izbový byt
69 m2
Košice - Juh
189.900,- €
Predaj 3-izbový byt
64 m2
Košice - Juh
105.000,- €
Predaj 3-izbový byt
68 m2
Košice - Juh
210.990,- €
Predaj 3-izbový byt
63.86 m2
Košice - Juh
115.000,- €
Predaj 3-izbový byt
93 m2
Košice - Juh
430.000,- €
Predaj 3-izbový byt
74 m2
Košice - Juh
159.000,- €
Predaj 3-izbový byt
68 m2
Košice - Juh
189.900,- €
Predaj 3-izbový byt
63.5 m2
Košice - Juh
209.900,- €
Predaj 3-izbový byt
67 m2
Košice - Juh
219.900,- €
Vaše hodnotenie ponuky
Analýza ponuky bytov v lokalite Košice - mestská časť Juh, Košice - Juh
V lokalite Košice - mestská časť Juh, okres Košice - Juh je na ZoznamRealit.Sk 23 bytov na predaj a 13 bytov na prenájom.
Najdrahšia ponuka stojí 430.000,- € na predaj a najlacnejšia ponuka bytu pre lokalitu Košice - mestská časť Juh 105.000,- €.
V okrese Košice pôsobí a na ZoznamRealit.Sk inzeruje 22 realitných kancelárií, z toho je 14 Overených členov ZRKS.
