REZERVOVANÉ Na prenájom 4 izbový rodinný dom, Pata, ul. Pod Vinohradmi
200 € / mes Cena je uvedená bez energií, +200,00€ energie
15681x zobrazená v zozname / 265x zobrazená detailne / 265x zobrazená detailne tento mesiac
REZERVOVANÉ
Na prenájom 4 izbový rodinný dom, novostavba, obec Pata, ul. Pod vinohradmi, okr. Galanta
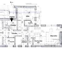
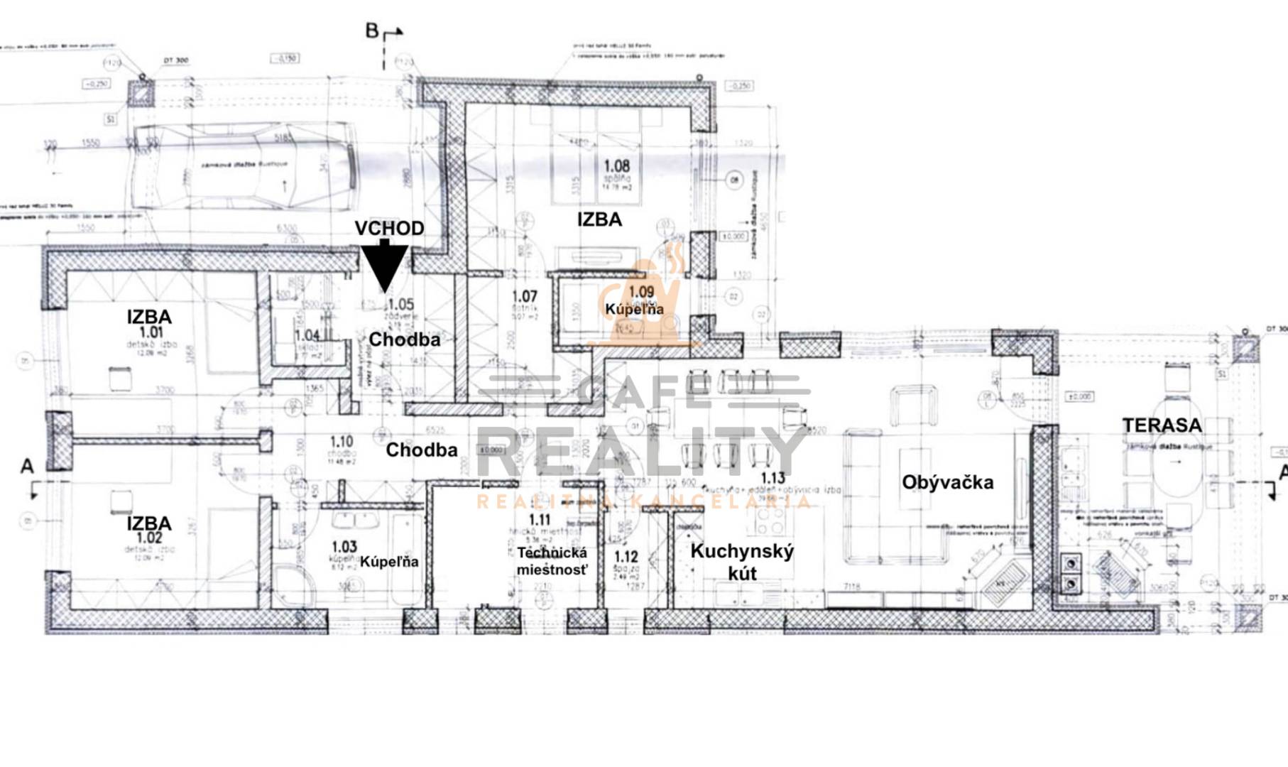
Dom je priestranný bungalov s dobrou dispozíciou o veľkosti podlahovej plochy 122 m2, je čiastočne zariadený a vybavený spotrebičmi v kuchyni.
Ide o prízemný bungalov, ktorý sa nachádza v tichej ulici obce na pozemku o veľkosti 557 m2. Parkovanie je možné pred domom na ulici a vo dvore za elektrickou bránou pre 2 - 3 autá.
Dom pozostáva zo: vstupnej chodby so šatníkom, 2 kúpeľňa (1x s vaňou, 1x rodičovskej so sprch. kútom), priestrannej obývacej izby s krbovou pecou, kuchynského kúta so samostatnou komorou, technickej miestnosti s kotlom, rodičovskej spálne so samostatnou kúpeľnou, a dvoch samostatných izieb. Z obývacej izby a rodičovskej spálne je výstup na udržiavanú záhradu so zastrešenou terasu. Trávnik je polievaný závlahou.
Dom má podlahové kúrenie, 3x klimatizácia (chodba, obývačka a spálňa). Je vybavený a zariadený ako je na fotkách, prípadne čiastočné dozariadenie je na dohode s majiteľom.
Odpad je napojený na septik (12 m3), vývoz bude v réžii nájomcu. Internet nie je aktuálne pripojený. Pri terase pribudne ešte domček na náradie a drevo. Dom bol postaveený v roku 2020.
Dobré pripojenie hneď za obcou na diaľnicu R1 smer Nitra - Trnava - Bratislava.
PONUKA aktuálna do zmazania. Dom je voľný IHNEĎ k nasťahovaniu.
Cena je uvedená bez energií. Cena nájmu je 800,-EUR/mes. + energie 200,-EUR/mes. energie, cena nájmu spolu 1.000,-EUR/mes.. Depozit vo výške mesačného nájmu s energiami, provízia vo výške 1/2 nájmu s energiami.
Dom sa nachádza v blízkosti obcí: Šoporňa, Pusté Sady, Hájske, Horná Kráľová, Báb, Váhovce, Dolná Streda, Sereď, Nitra 22 km, Trnava 26 km, Senec 42 km, Galanta 16 km
PONUKU INZERUJE
Peter Lukas
Akreditovaný realitný maklér
Podrobné informácie
| Rozloha pozemku | 557 m² |
|---|---|
| Zastavaná plocha | 205 m² |
| Celková rozloha | 557 m² |
| Úžitková plocha | 122 m² |
| Poschodie | neuvedené |
| Počet poschodí | 1 |
| Počet izieb | 4 |
| Vlastníctvo | osobné |
| Stav | po rekonštrukcii |
| Status | rezervované |
| Odvoz odpadu | áno |
| Voda | verejný vodovod |
| El. napätie | 230V |
| Kanalizácia | septik |
| Kúpeľňa | vaňa a sprchovací kút |
| Vykurovanie | vlastné – kombinované |
| Terasa | áno |
|---|---|
| Pivnica | nie |
| Garáž | nie |
| Parkovanie | vlastné vyhradené |
| Inžinierske siete | áno |
| Postavené z | tehla |
| Zariadenie | čiastočne |
| Zateplený objekt | áno |
| Klimatizácia | áno |
| Energetický certifikát | B |
| Predzáhradka | áno |
| Bezbariérový prístup | áno |
| Okná | plastové |
| Terén | rovina |
| Prístupová cesta | asfaltová cesta |
| Novostavba | áno |
Mohlo by vás tiež zaujímať
Vaše hodnotenie ponuky
Analýza ponuky rodinných domov v lokalite Pata, Galanta
V lokalite Pata, okres Galanta je na ZoznamRealit.Sk 1 rodinný dom na predaj a 1 rodinný dom na prenájom.
Najdrahšia ponuka stojí 800,- €/mes. na prenájom a najlacnejšia ponuka rodinného domu pre lokalitu Pata 30,- €/mes..
V okrese Galanta pôsobí a na ZoznamRealit.Sk inzerujú 4 realitné kancelárie, z toho sú 2 Overeným členom ZRKS.
