REZERVOVANÝ 2, 5 IZBOVÝ BYT, 65 M2, PREŠOV, UL. FEDERÁTOV
5227x zobrazená v zozname / 435x zobrazená detailne / 263x zobrazená detailne tento mesiac
Ponúkame na predaj 2,5 izbový panelový byt na Sídlisku Sekčov - ulica Federátov. Bytový dom je vo veľmi peknej tichej lokalite s kompletnou občianskou vybavenosťou v blízkosti. Má vlastnú kotolňu.
Byt je pripravený na rekonštrukciu podľa predstáv a vkusu nového majiteľa.
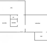
Pozostáva z kuchyne, obývačky, jednej väčšej a jednej menšej izby, chodby a oddelenej kúpeľne a WC.
- 65 m2, 2/7 poschodie, orientácia SV - JZ
- panelový bytový dom
- osobné vlastníctvo, financovanie hypotékou možné (pomôžeme vám s jej vybavením)
- čiastočná staršia rekonštrukcia
- plastové okná v celom byte
- plávajúca podlaha, keramická dlažba (kúpeľňa a WC)
- murované jadro
- zrekonštruovaná kúpeľňa
- vymenené stupačky
- bezbariérový vstup do bytového domu
Byt je kúpou voľný. V prípade rýchleho jednania je dohoda na cene možná.
Bytový dom je zateplený, vymenené sú stupačky, nové sú vchodové dvere, schránky a okná v spoločných priestoroch.
Nachádza sa na Sekčove, v tichej, peknej lokalite, hneď za bytovým domom je detské ihrisko, trošku ďalej materská a základná škola, cca 5 minút od domu potraviny či MHD.
Ak máte záujem o obhliadku prípadne potrebujete viac informácii nájdete nás v realitnom centre na Slovenskej ul. č. 8 v Prešove, prípadne na alebo na telefónnom čísle
ZADARMO K TEJTO NEHNUTEĽNOSTI DOSTANETE:
- inzerovanie nehnuteľnosti na najsledovanejších realitných portáloch a v miestnych novinách;
- preverenie právneho stavu a tiarch danej nehnuteľnosti;
- vysvetlenie problémov záložných tiarch, vecných bremien a pod.;
- právny servis zabezpečený právnikom s dlhoročnými skúsenosťami;
- kópiu LV prípadne katastrálnej mapy s kolkom na právne účely;
- poplatky za overenie podpisov na zmluvách u notára;
- správny poplatok za vklad vlastníckeho práva do katastra vo výške 100,-€
- realitné, daňové a právne poradenstvo;
- zabezpečenie znalca na vypracovania znaleckého posudku;
- vypracovanie ponúk na zabezpečenie úveru u nášho hypotekárneho odborníka, ktorý spolupracuje s viacerými bankami
PONUKU INZERUJE
Mgr. Ivana Kočišová
Asistentka predaja
Podrobné informácie
| Úžitková plocha | 65 m² |
|---|---|
| Poschodie | 2/vyššie poschodie |
| Počet poschodí | 7 |
| Počet izieb | 3 |
| Vlastníctvo | osobné |
| Stav | nutná rekonštrukcia |
| Status | rezervované |
| Kúpeľňa | vaňa |
| Vykurovanie | spoločné – vlastná kotolňa |
|---|---|
| Balkón | nie |
| Lódžia | nie |
| Pivnica | áno |
| Postavené z | panel |
| Zateplený objekt | áno |
| Energetický certifikát | áno |
| Bezbariérový prístup | áno |
Mohlo by vás tiež zaujímať
Predaj 3-izbový byt
86 m2
Prešov
220.000,- €
Predaj 3-izbový byt
66 m2
Prešov
96.000,- €
Predaj 3-izbový byt
66.84 m2
Prešov
135.500,- €
Predaj 3-izbový byt
0 m2
Prešov
164,99 €
Predaj 3-izbový byt
69 m2
Prešov
Cena v RK
Predaj 3-izbový byt
78 m2
Prešov
Cena v RK
Predaj 3-izbový byt
70 m2
Prešov
144.900,- €
Predaj 3-izbový byt
72 m2
Prešov
229.000,- €
Predaj 3-izbový byt
71 m2
Prešov
Cena v RK
Predaj 3-izbový byt
55.1 m2
Prešov
132.900,- €
Predaj 3-izbový byt
57 m2
Prešov
Cena v RK
Predaj 3-izbový byt
64 m2
Prešov
144.999,- €
Predaj 3-izbový byt
1 m2
Prešov
174.999,- €
Predaj 3-izbový byt
68 m2
Prešov
169.000,- €
Predaj 3-izbový byt
70 m2
Prešov
144.900,- €
Predaj 3-izbový byt
85 m2
Prešov
194.000,- €
Predaj 3-izbový byt
77 m2
Prešov
Cena v RK
Predaj 3-izbový byt
65 m2
Prešov
Cena v RK
Vaše hodnotenie ponuky
Analýza ponuky bytov v lokalite Prešov
V okrese Prešov je na ZoznamRealit.Sk 89 bytov na predaj a 21 bytov na prenájom.
Najdrahšia ponuka stojí 243.990,- € na predaj a najlacnejšia ponuka bytu pre lokalitu Prešov 165,- €.
V okrese Prešov pôsobí a na ZoznamRealit.Sk inzeruje 8 realitných kancelárií, z toho je 6 Overených členov ZRKS.
