RIVERS - Veľkorysý rodinný dom po rekonštrukcii
11548x zobrazená v zozname / 270x zobrazená detailne / 270x zobrazená detailne tento mesiac
Realitná kancelária RIVERS REAL ESTATE ponúka na predaj trojpodlažný, renovovaný rodinný dom v Ivanke pri Dunaji. Táto nehnuteľnosť sa nachádza v občiansky najlepšie vybavenej obci v blízkosti Bratislavy, ponúka výbornú dostupnosť do centra Bratislavy – po D4 a R7 ste v meste už za 20 minút a zároveň poskytuje tiché, bezpečné prostredie ideálne pre rodinný život.
________________________________________
Referencia makléra
✅ Kvalitne postavený rodinný dom s úžasným potenciálom využitia - priestorovo veľkorysé bývanie, aj viacgeneračné bývanie, podnikanie, možnosť relax zóny...
✅ Kachľové pece, ktoré sú dominantami oboch obývacích izieb očaria na prvý pohľad - slúžia na zakúrenie počas jesene a jari, aj ako krásny dizajnový prvok v dome
✅ Priaznivé mesačné náklady 200EUR na energie, a to aj vďaka hrubším múrom a orientácii na južnú stranu
✅ Nadčasová obnova niektorých častí v roku
✅ Bez potreby ďalších investícií, možné k ihneď k nasťahovaniu a užívaniu
✅ 6 izieb + 3 izby v zapustenom podlaží, 3 kúpeľne s WC, dve kuchyne a tretia s predprípravou, 3 komory, sklad, záhradný domček
✅ Suterénne podlažie je využiteľné na bývanie, alebo na relax, prípadne podnikanie
✅ Slnečná terasa na príjemné posedenie
✅ Parkovanie pre 2 autá pod prístreškom a pre ďalšie autá vedľa domu na ceste
✅ Vyrastená záhrada s okrasnými a ovocnými stromami s automatickou závlahou z vlastnej studne
✅ Oplotenie po celom obvode
✅ Potenciál bazéna, detského ihriska alebo úžitkovej záhrady
✅ Komfort, kvalita a pokoj v jednom balení
________________________________________
Technické parametre a riešenia:
• Pozemok: 591m²
• Zastavaná plocha: 148 m²
• Úžitková plocha: 442,98 m²
• Záhradný dom a prístrešok na autá
• Južná orientácia domu a pozemku
• Kolaudácia: 1999, renovácia:
• Konštrukcia: tehla
• Strecha: kvalitná alpská škridla
• Okná: plastové, sieťky, interiérové žalúzie vymenené v roku 2025
• Kúrenie: plynový kotol vymenený pred 5 rokmi, radiátory, energetický certifikát je v príprave
• Rekonštrukcia v rokoch - nové nadčasové kúpeľne so zriaďovacími predmetmi značky Hansgrohe, Duravit, Laufen, nová podstropná klimatizácia v obývacej izbe a spálňach na hornom podlaží, renovovaná kuchynská linka a nové spotrebiče, nové interiérové žalúzie, nové dlažby na terase, balkóne a vstupe do domu
• Inžinierske siete: voda, plyn, elektrina, optika, kanalizácia + vlastná studňa
• Podlahy: laminátové, dlažby v kuchyni, kúpeľniach a chodbe
• Interiérové dvere a zárubne: masív
________________________________________
Dispozícia:
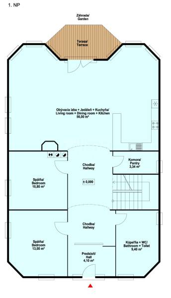
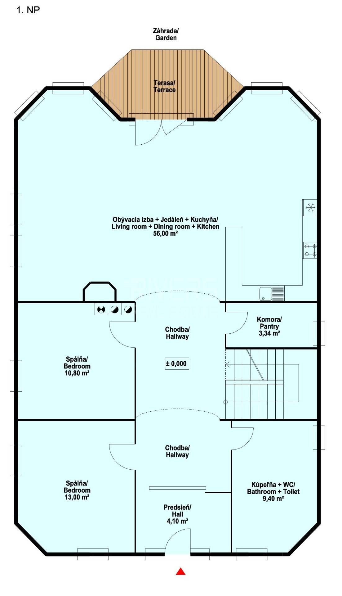
Dom pozostáva z troch podlaží rovnakého pôdorysu. Na prvom sa nachádza denná zóna domu s otvorenou dispozíciou obývacej izby s jedálňou a s výstupom na terasu, taktiež sú tu dve spálne, komfortná nadčasová kúpeľňa a komora. Dominantou tohto podlažia a celého domu je priestranná obývacia izba s výhľadom do záhrady, prepojená s exteriérom cez krídlové dvere na terasu.
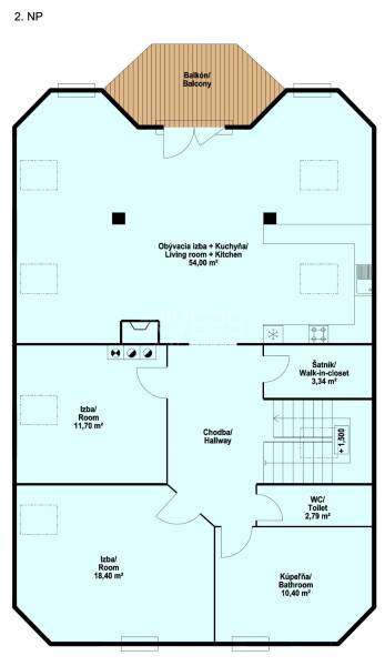
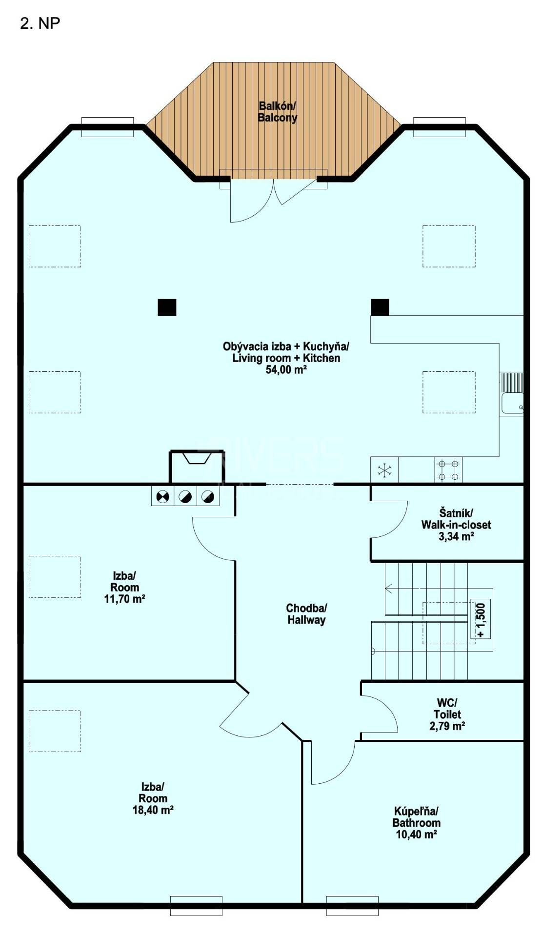
Druhé nadzemné podlažie má rovnaký pôdorys - otvorenú dispozíciu obývacej izby s kuchyňou, ktorá je teraz využívaná ako spálňa plus dve ďalšie spálne, šatník, samostatné WC a dizajnová kúpeľňa.
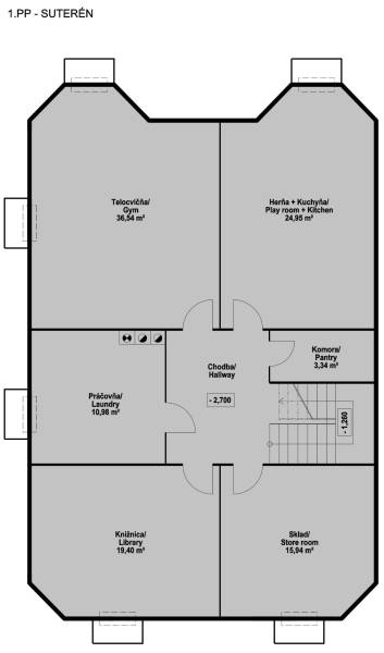
Podzemné podlažie s tým istým pôdorysom je aktuálne využívané ako relaxačná zóna - telocvičňa, herňa, knižnica a technická zóna - práčovňa a sklad.
________________________________________
Lokalita, ktorá má všetko:
Ivanka pri Dunaji patrí medzi najprestížnejšie a najžiadanejšie lokality v blízkosti Bratislavy. Výborné dopravné napojenie zabezpečuje diaľnica D1, rýchlostná cesta R7 aj pravidelné vlakové a autobusové spojenie s Bratislavou. Vďaka tomu ponúka ideálnu rovnováhu medzi mestským komfortom a pokojom vidieka.
V obci je kompletná občianska vybavenosť – moderné školy a škôlky, zdravotné stredisko, obchody, kvalitné reštaurácie, športoviská a širokú škálu služieb pre každodenné potreby.
Ivanka pri Dunaji je známa svojou príjemnou atmosférou, zeleňou a komunitným životom. Okolie ponúka množstvo možností pre aktívny oddych – prechádzky pri jazere Štrkovisko, cyklotrasy popri Malom Dunaji či pokojné zákutia pre relax v prírode.
________________________________________
#followtheriversfindyourhome
Aká je občianska vybavenosť na ulici Puškinova v Ivanke pri Dunaji?
Ulica Puškinova v Ivanke pri Dunaji spája praktickú občiansku vybavenosť s jednoduchým dopravným napojením na Bratislavu. V obci funguje pravidelné autobusové aj vlakové spojenie a napojenie na rýchlostné ťahy D1 a R7. Pri každodennom dochádzaní poteší aj blízkosť verejnej dopravy – zastávka Ivanka pri Dunaji, Palárikova sa nachádza vo vzdialenosti 177 m, čo uľahčuje presuny v rámci obce aj smerom do mesta.
Rodinnému bývaniu praje najmä dostupnosť služieb. Zdravotné stredisko je vo vzdialenosti 105 m, na ranné povinnosti s deťmi poslúži Materská škola Slnečná vzdialená 286 m. Majitelia domácich zvierat ocenia, že od veterinára Lionvet vás delí len 486 m. Všetko podstatné tak máte v pešej dostupnosti.
Na bežné nákupy či služby môžete zájsť do Salónu Afrodita, ku ktorému je to 204 m, a na obed alebo večerné posedenie do Pafárskej reštaurácie vzdialenej 280 m či do Hostinca Britva, kam je to 309 m. Ivanka pri Dunaji ponúka kompletné zázemie vrátane škôl, športovísk a komunít; zároveň si udržiava príjemnú, zelenú atmosféru s možnosťami oddychu pri Štrkovisku a na cyklotrasách popri Malom Dunaji. Výsledkom je prostredie, ktoré prirodzene podporuje pohodlný a rodinne orientovaný spôsob života.
Okolie ulice Puškinova v Ivanke pri Dunaji ponúka tieto možnosti:
Lekár: Zdravotné stredisko - 105 m
Autobusová zastávka: Ivanka pri Dunaji, Palárikova - 177 m
Obchod: Salón Afrodita - 204 m
Reštaurácia: Pafárska reštaurácia - 280 m
Materská škola: Materská škola Slnečná - 286 m
Krčma: Hostinec Britva - 309 m
Veterinár: Lionvet - 486 m
PONUKU INZERUJE
Podrobné informácie k rodinnému domu na predaj
| Rozloha pozemku | 591 m² |
|---|---|
| Zastavaná plocha | 148 m² |
| Úžitková plocha | 442.98 m² |
| Počet poschodí | 3 |
| Počet izieb | 9 |
| Vlastníctvo | osobné |
| Stav | po rekonštrukcii |
| Status | aktívne |
| Odvoz odpadu | áno - separovaný |
| Voda | verejný vodovod |
| El. napätie | 230/400V |
| Plyn | áno |
| Kanalizácia | áno |
| Internet | optika |
| Kúpeľňa | áno |
| Vykurovanie | vlastné - plyn |
| Balkón | áno |
| Terasa | áno |
|---|---|
| Pivnica | áno |
| Garáž | nie |
| Parkovanie | áno |
| Inžinierske siete | áno |
| Postavené z | tehla |
| Zariadenie | zariadený |
| Zateplený objekt | nie |
| Strecha | pôvodná |
| Krb | áno |
| Klimatizácia | áno |
| Káblová televízia | áno |
| Energetický certifikát | nie |
| Okná | plastové |
| Terén | rovina |
| Prístupová cesta | asfaltová cesta |
RIVERS - Veľkorysý rodinný dom po rekonštrukcii - Vývoj ceny
Ďalšie rodinné domy Ivanka pri Dunaji na predaj
Predaj Rodinný dom
314 m2
Senec
519.000,- €
Predaj Rodinný dom
4221 m2
Senec
Cena v RK
Predaj Rodinný dom
309 m2
Senec
599.800,- €
Predaj Rodinný dom
200 m2
Senec
515.000,- €
Predaj Rodinný dom
101.65 m2
Senec
295.000,- €
Predaj Rodinný dom
108 m2
Senec
385.000,- €
Predaj Rodinný dom
110 m2
Senec
300.000,- €
Predaj Rodinný dom
106 m2
Senec
299.000,- €
Predaj Rodinný dom
216.38 m2
Senec
586.000,- €
Predaj Rodinný dom
97 m2
Senec
295.000,- €
Predaj Rodinný dom
124 m2
Senec
409.000,- €
Predaj Rodinný dom
402 m2
Senec
1.599.000,- €
Predaj Rodinný dom
132 m2
Senec
240.000,- €
Predaj Rodinný dom
122.43 m2
Senec
149.990,- €
Predaj Rodinný dom
170 m2
Senec
575.000,- €
Predaj Rodinný dom
147 m2
Senec
343.000,- €
Predaj Rodinný dom
100 m2
Senec
380.000,- €
Predaj Rodinný dom
230 m2
Senec
449.000,- €
Hodnotenie ponuky - RIVERS - Veľkorysý rodinný dom po rekonštrukcii
Analýza ponuky rodinných domov v lokalite Ivanka pri Dunaji, Senec
V lokalite Ivanka pri Dunaji, okres Senec je na ZoznamRealit.Sk 12 rodinných domov na predaj a 1 rodinný dom na prenájom.
Najdrahšia ponuka stojí 1.599.000,- € na predaj a najlacnejšia ponuka rodinného domu pre lokalitu Ivanka pri Dunaji 134.990,- €.
V okrese Senec pôsobí a na ZoznamRealit.Sk inzeruje 6 realitných kancelárií, z toho je 5 Overených členov ZRKS.
