Rodinný dom s terasou, garáž, pozemok 902m2, Dojč, okr. Senica
7111x zobrazená v zozname / 263x zobrazená detailne / 169x zobrazená detailne tento mesiac
Miesto, kde deti môžu bezstarostne behať po dvore, domáci miláčikovia si užívať voľnosť a vy si vychutnáte pokoj na terase v atmosfére skutočného domova.
AVORY Realitné Centru / ponúkame na predaj príjemný 3-izbový rodinný dom v obľúbenom vidieckom štýle, situovaný na rovinatom a kompletne oplotenom pozemku v obci Dojč. Nehnuteľnosť ponúka pokojné bývanie, dostatok priestoru, súkromie a výborné zázemie pre rodinu.
Dom bol nanovo postavený z pôvodného domu v r. 2001, dostavba priestrannej prestrešenej terasy bola realizovaná len nedávno. Tá ponúka ideálny priestor na oddych, rodinné posedenia aj trávenie voľného času počas celého roka. Časť chodby si ešte vyžaduje menšie kozmetické úpravy na dokončenie, čo novému majiteľovi ponecháva priestor na jej finálne doladenie.
Výhodou tejto nehnuteľnosti je pokojná lokalita s už stabilizovaným okolím, ktoré prináša príjemné bývanie, viac súkromia a komfort hotového prostredia. Pozemok poskytuje dostatok priestoru nielen na relax, ale aj na praktické využitie. Nachádza sa tu murovaná garáž s montážnou jamou a elektrickou bránou, drevený záhradný domček a v zadnej časti pozemku aj miesto vhodné pre úžitkovú záhradu.
Táto nehnuteľnosť je doslova rajom pre deti aj domácich miláčikov. Veľký oplotený pozemok ponúka bezpečný priestor na hru, pohyb a oddych. Zároveň poskytuje aj možnosť drobnochovu, napríklad chovu hydiny, čo ocenia najmä záujemcovia o pokojnejší spôsob bývania s dotykom prírody.
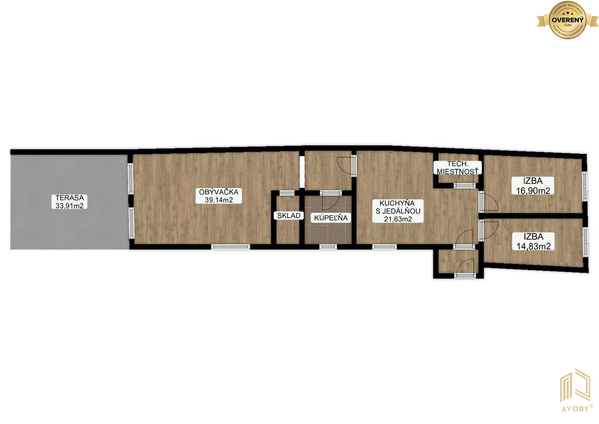
● výmera pozemku: 902m²
● podlahová plocha domu 120m²
● terasa: 34 m²
● garáž 31m2 + sklad (10m²)
Dispozícia: zádverie, kuchyňa s jedálenskou časťou a chodbou (29m2), 2 samostatné izby (17 a 15m2), kúpeľňa (6,9m2), technická miestnosť, úložný priestor s výstupom na povalu - miestnosť vhodná na vytvorenie šatníka (3,5m2), priestranná obývacia izba (39m2) s možnosťou rozdelenia a vytvorenia ďalšej izby, terasa.
► TECHNICKÉ INFORMÁCIE:
● kompletné inžinierske siete: elektrina 230 V + 400 V, obecný vodovod, plyn, kanalizácia
● zmiešaná konštrukcia: tehla a kváder
● plastové a drevené okná
● sedlová strecha s pálenou strešnou krytinou
● drevené podlahy, plávajúce podlahy a keramické dlažby
● zateplenie a fasáda
● vykurovanie plynové, etážové, bojler na ohrev vody
► DOPLŇUJÚCE INFORMÁCIE:
● murovaná garáž s montážnou jamou, oknom a elektrickou bránou na ovládanie
● vstup na pozemok podbráním
● drevený záhradný domček
● v zadnej časti pozemku priestor pre úžitkovú záhradu
● mesačné náklady na bývanie 230€
● okná spální orientované na juh, kuchyňa s obývačkou na západ
Dojč je obľúbená a dynamicky sa rozrastajúca obec na Záhorí, ktorá si zachováva pokoj vidieka a zároveň ponúka komfort moderného života. Disponuje kvalitnou občianskou vybavenosťou a veľmi dobrým autobusovým spojením.
Len 10 km od okresného mesta Senica a 85 km od Bratislavy predstavuje ideálnu rovnováhu medzi dostupnosťou a pokojom.
Veľkým benefitom je nová cyklotrasa vedúca až do Senice, ktorá sa vinie krajinou ako zelená tepna pre aktívny oddych. Milovníkov prírody očarí aj neďaleký les v Šajdíkových Humenciach – miesto, kde si hlava oddýchne a čas plynie pomalšie.
V bezprostrednej blízkosti, len 10 km, sa nachádza vyhľadávaný golfový areál Penati Golf Resort v Šajdíkových Humenciach, ktorý patrí medzi najprestížnejšie na Slovensku.
Monika Krčová – certifikovaný realitný maklér
AVORY Realitné Centrum, robíme svet realít lepším miestom.
PONUKU INZERUJE
Podrobné informácie k rodinnému domu na predaj
| Rozloha pozemku | 902 m² |
|---|---|
| Zastavaná plocha | 200 m² |
| Úžitková plocha | 120 m² |
| Poschodie | prízemie |
| Počet poschodí | 1 |
| Počet izieb | 3 |
| Vlastníctvo | osobné |
| Stav | úplne prerobený |
| Status | aktívne |
| Odvoz odpadu | áno |
| Voda | studňa a vodovod |
| El. napätie | 230/400V |
| Plyn | áno |
| Kanalizácia | áno |
| Internet | lokálny poskytovateľ |
| Kúpeľňa | vaňa |
| Balkón | nie |
| Lódžia | nie |
|---|---|
| Terasa | áno |
| Pivnica | nie |
| Garáž | áno |
| Parkovanie | áno |
| Inžinierske siete | áno |
| Postavené z | tehla |
| Zariadenie | zariadený |
| Zateplený objekt | áno |
| Strecha | po rekonštrukcii |
| Klimatizácia | nie |
| Energetický certifikát | nie |
| Predzáhradka | áno |
| Bezbariérový prístup | áno |
| Terén | rovina |
| Prístupová cesta | asfaltová cesta |
Ďalšie rodinné domy Dojč na predaj
Predaj Rodinný dom
78 m2
Senica
145.000,- €
Predaj Rodinný dom
280 m2
Senica
79.000,- €
Predaj Rodinný dom
149 m2
Senica
149.000,- €
Predaj Rodinný dom
150 m2
Senica
99.000,- €
Predaj Rodinný dom
391 m2
Senica
Cena v RK
Predaj Rodinný dom
105 m2
Senica
Cena v RK
Predaj Rodinný dom
105 m2
Senica
Cena v RK
Predaj Rodinný dom
160 m2
Senica
398.000,- €
Predaj Rodinný dom
80 m2
Senica
50.000,- €
Predaj Rodinný dom
1 m2
Senica
194.000,- €
Predaj Rodinný dom
100 m2
Senica
189.000,- €
Predaj Rodinný dom
160 m2
Senica
150.000,- €
Predaj Rodinný dom
271 m2
Senica
189.900,- €
Predaj Rodinný dom
82 m2
Senica
99.850,- €
Predaj Rodinný dom
119 m2
Senica
76.000,- €
Predaj Rodinný dom
300 m2
Senica
Cena v RK
Predaj Rodinný dom
240 m2
Senica
190.000,- €
Predaj Rodinný dom
436 m2
Senica
65.000,- €
Hodnotenie ponuky - Rodinný dom s terasou, garáž, pozemok 902m2, Dojč, okr. Senica
Analýza ponuky rodinných domov v lokalite Dojč, Senica
V lokalite Dojč, okres Senica je na ZoznamRealit.Sk 4 rodinné domy na predaj.
Najdrahšia ponuka stojí 410.000,- € na predaj a najlacnejšia ponuka rodinného domu pre lokalitu Dojč 39.900,- €.
V okrese Senica pôsobí a na ZoznamRealit.Sk inzerujú 4 realitné kancelárie, z toho sú 3 Overeným členom ZRKS.

















