**SKVELÁ INVESTÍCIA**REZIDENCIA OPERA**KÚPELE TURČIANSKE TEPLICE**
4084x zobrazená v zozname / 245x zobrazená detailne / 245x zobrazená detailne tento mesiac
Ponúkame Vám na predaj exkluzívny, KOMPLETNE ZARIADENÝ apartmán v prestížnej novostavbe Rezidencia Opera – Villa Donizetti, nachádzajúcej sa v srdci Turčianskych Teplíc, jedného z najstarších kúpeľných miest na Slovensku.
Lokalita je výnimočná predovšetkým vďaka svojej liečivej termálnej a minerálnej vode, ktorá je unikátom v rámci Európy.
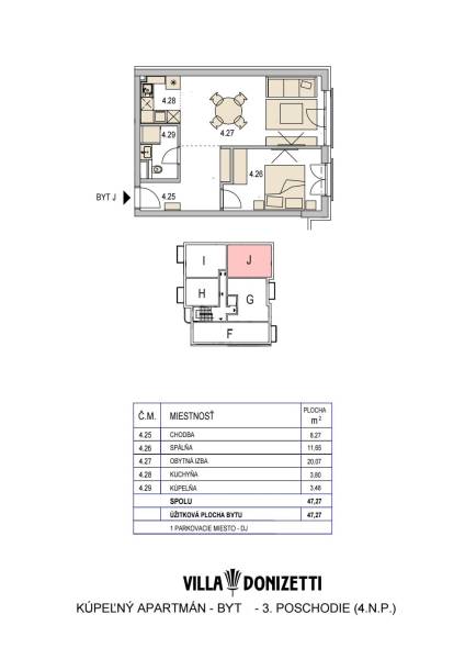
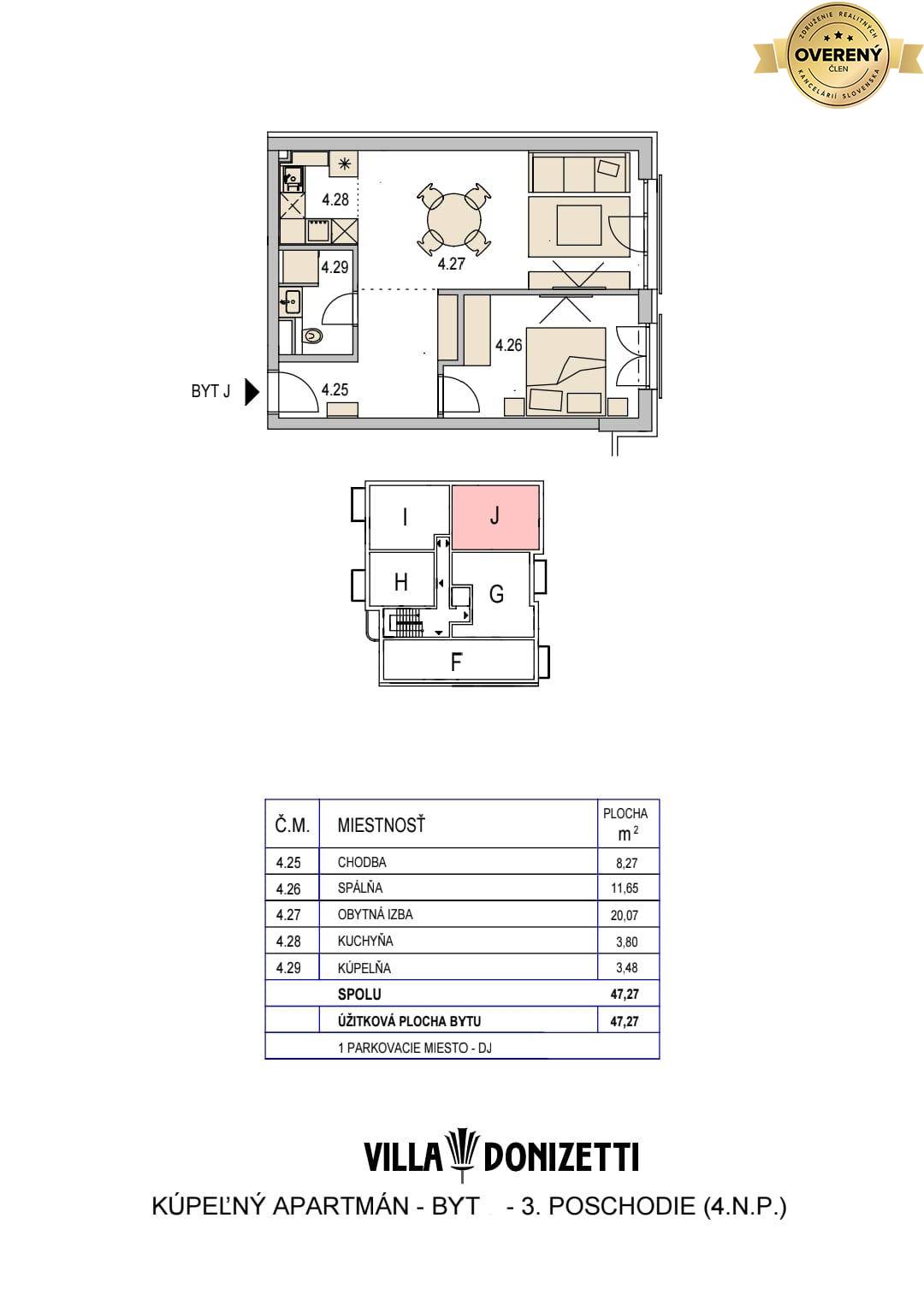
Apartmán s úžitkovou plochou 47,27 m² je situovaný na 3. poschodí a ponúka moderné, nadčasové bývanie s vysokým komfortom a bez potreby ďalších investícií.
Súkromné parkovacie miesto je k dispozícii vo vnútrobloku Rezidencie.
DISPOZÍCIA: (47,27 m²)
-vstupná chodba: 8,27 m²
-spálňa: 11,65 m²
-obývacia izba: 20,07 m²
-kuchyňa: 3,80 m²
-kúpeľňa: 3,48 m²
Dispozícia je premyslená a poskytuje dostatok priestoru na bývanie aj relax.
VYBAVENIE A ŠTANDARD:
-elegantný, moderný interiér v nadčasových farbách
-kvalitná kuchynská linka so vstavanými spotrebičmi
-klimatizácia
-dizajnové podlahy a obklady
-kúpeľňa so sprchovým kútom
-vstavané skrine v spálni
Apartmán sa predáva kompletne zariadený!!!
BENEFITY PRE MAJITEĽOV APARTMÁNOV REZIDENCIE OPERA:
-kúpeľné, zdravotné a wellness benefity hotela Royal Palace a SPA & AQUAPARK Turčianske Teplice
-zvýhodnený prístup k procedúram a službám v Zlatých kúpeľoch Turčianske Teplice (liečivá minerálna voda)
HOTELOVÉ SLUŽBY DOSTUPNÉ PRE MAJITEĽOV APARTMÁNOV:
-pravidelné upratovanie
-concierge a správcovské služby
-možnosť zabezpečiť PRENÁJOM ARTMÁNU v čase, keď ho majiteľ nevyužíva
-recepcia priamo v budove
LOKALITA A OKOLIE:
Turčianske Teplice ponúkajú dokonalé prepojenie relaxu, prírody a aktívneho životného štýlu.
V blízkom okolí sa nachádza:
-Národný park Veľká Fatra – nádherné turistické chodníky, hrebeňovky a cyklotrasy
-lyžiarske strediská: Jasenská dolina, Snowland Valčianska dolina, Malinô Brdo, Králiky
-kúpeľný park, lesoparky, termálne pramene
-kompletná občianska vybavenosť – wellness, reštaurácie, obchody, služby
Lokalita je ideálna na REKREÁCIU, TRVALÉ BÝVANIE aj ako INVESTÍCIA ( krátkodobý prenájom).
CENA: 244.000,-EUR
V cene je zahrnuté kompletné zariadenie apartmánu.
INFO: Michal Toriška tel.
E-mail:
WWW.QREAL.SK
Text a fotografie sú autorským dielom a majetkom spoločnosti Q REAL s.r.o.
Aká je občianska vybavenosť na ulici Školskej v Turčianskych Tepliciach?
Školská ulica v Turčianskych Tepliciach spája tichú rezidenčnú zónu s praktickou dostupnosťou služieb. Na mestské spojenia nadviažete pri autobusovej zastávke Turčianske Teplice, ZŠ vo vzdialenosti 86 m. Vzdelávacie zázemie dopĺňa Stredná odborná škola pedagogická, ktorú nájdete vo vzdialenosti 171 m.
Každodenné potreby vybavíte bez zbytočného presúvania. K poliklinike Turčianske Teplice je to 176 m, na poštu Turčianske Teplice 247 m. Menšie nákupy vyriešite v obchode Petra byt vo vzdialenosti 218 m a na obed či večeru si môžete zájsť do reštaurácie U Palatína, ktorá je 120 m od ulice.
Kultúrnu atmosféru dotvára Dom Mikuláša Galandu vo vzdialenosti 240 m. Samotné mesto patrí medzi najstaršie kúpeľné destinácie na Slovensku a preslávila ho liečivá termálna aj minerálna voda. Popri kúpeľnom parku sú v Turčianskych Tepliciach dostupné aj wellness a vodné atrakcie v SPA & AQUAPARK Turčianske Teplice.
Okolie Školskej je vhodné na pokojnú každodennosť aj aktívny oddych. Región sa opiera o Národný park Veľká Fatra a v širšom okolí nájdete viaceré lyžiarske strediská. Ak hľadáte 2-izbový byt na predaj, lokalita spája praktickú občiansku vybavenosť s atmosférou kúpeľného mesta.
Okolie ulice Školská v Turčianskych Tepliciach ponúka tieto možnosti:
Autobusová zastávka: Turčianske Teplice, ZŠ - 86 m
Reštaurácia: U Palatína - 120 m
Škola: Stredná odborná škola pedagogická - 171 m
Klinika: Poliklinika Turčianske Teplice - 176 m
Obchod: Petra byt - 218 m
Cestovný ruch: Dom Mikuláša Galandu - 240 m
Pošta: Turčianske Teplice - 247 m
Podrobné informácie k 2 izbovému bytu na predaj
| Úžitková plocha | 47.27 m² |
|---|---|
| Poschodie | 2/vyššie poschodie |
| Počet poschodí | 3 |
| Stav | úplne prerobený |
| Status | aktívne |
| Internet | optika |
| Kúpeľňa | sprchovací kút |
| Vykurovanie | áno |
| Výťah | áno |
| Parkovanie | vlastné vyhradené |
|---|---|
| Postavené z | tehla |
| Zariadenie | zariadený |
| Zateplený objekt | áno |
| Klimatizácia | áno |
| Energetický certifikát | B |
| Bezbariérový prístup | áno |
| Okná | plastové |
| Novostavba | áno |
Ďalšie 2 izbové byty v Turčianskych Tepliciach na predaj
Hodnotenie ponuky - **SKVELÁ INVESTÍCIA**REZIDENCIA OPERA**KÚPELE TURČIANSKE TEPLICE**
Analýza ponuky bytov v lokalite Turčianske Teplice
V okrese Turčianske Teplice je na ZoznamRealit.Sk 5 bytov na predaj.
Najdrahšia ponuka stojí 244.000,- € na predaj a najlacnejšia ponuka bytu pre lokalitu Turčianske Teplice 98.000,- €.
