Veľkometrážny byt na Slavíne s výhľadom na mesto
26491x zobrazená v zozname / 244x zobrazená detailne / 244x zobrazená detailne tento mesiac
Realitná kancelária RIVERS REAL ESTATE ponúka na predaj veľkometrážny byt na Slavíne s výhľadom na mesto. Je jedinečný svojou polohou priamo pod Slavínom a výhľadom na mesto. Zariadenie bytu je v klasicistickom štýle.
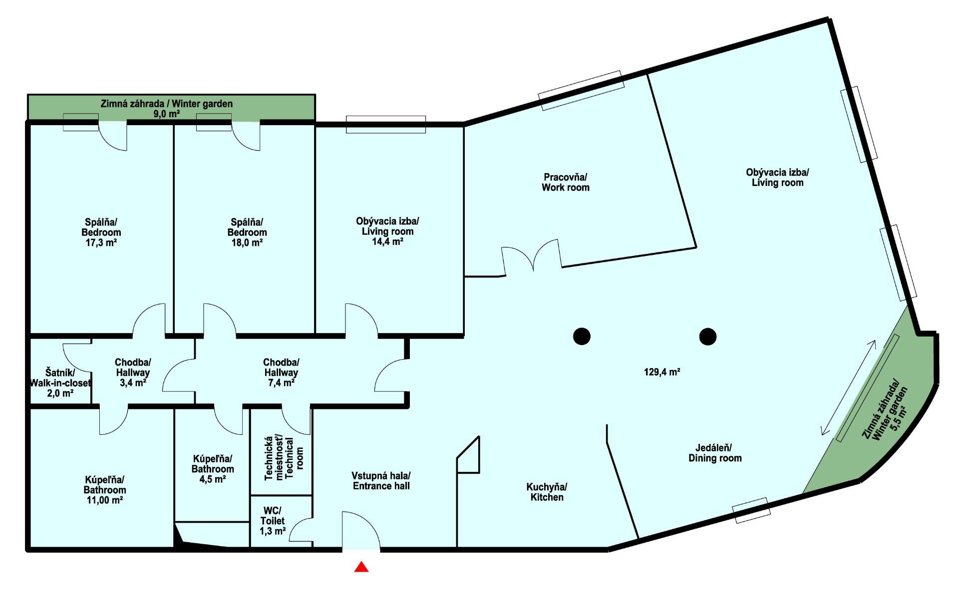
Byt je na 3/8 poschodí, jeho celková výmera je 240,71 m2, do ktorej je zahrnutý byt, pivnica a dve zasklené zimné záhrady. Byt je dispozíciou rozdelený na dennú / hosťovskú zónu a nočnú / privátnu zónu. Hneď od vstupu byt ponúkne veľkorysý priestor predsiene, obývacej izby s výstupom na zimnú záhradu, jedálňou a kuchyňou. Unikátnymi krídlovými dverami s vitrážami sa dostaneme do pracovne s kompletne vstavaným nábytkom na mieru, krbom a masívnym pracovným stolom.
Privátnu časť bytu tvoria tri spálne s dvomi kúpeľňami, pochôdzny šatník a technická miestnosť. Z dvoch spální je výstup na ďalšiu zimnú záhradu, v ktorej je kúrenie a zasklenie.
K bytu prislúcha veľkorysá pivnica za cenu 15.000EUR a dve parkovacie státia spolu za cenu 80.000EUR.
Bytový dom je z roku 2008, je architektonickým a stavebným dielom vzhľadom na polohu a náročnosť. Energetický certifikát domu je v príprave.
Lokalita bytového domu je najlepšou adresou Bratislavy v tesnej blízkosti pamätníka Slavín. Bytový dom sa nachádza medzi vilami hradného kopca. V blízkosti je príroda horského parku, Kalvária, reštaurácie, školy, úrady. Do centra mesta sa dostanete do 7 minút autom.
#followtheriversfindyourhome
Aká je občianska vybavenosť na ulici Havlíčkovej v Bratislave - Staré Mesto?
Ulica Havlíčkova leží na hradnom kopci priamo pod pamätníkom Slavín, v pokojnom rezidenčnom prostredí vilovej zástavby so silným genius loci. Poloha prináša príjemné scenérie s výhľadmi na mesto a zároveň rýchle napojenie na centrum. V blízkosti sa nachádza aj príroda Horského parku a oblasť Kalvárie, ktoré pozývajú na prechádzky a oddych.
Každodenné nákupy zabezpečí obchod Yeme vo vzdialenosti 226 m. Na obed či večeru poslúži reštaurácia Ako Doma vo vzdialenosti 464 m, večerné posedenie ponúkne podnik Chilli Pub vo vzdialenosti 500 m. Takéto zázemie dopĺňa charakter Starého Mesta, kde sú reštaurácie, školy aj úrady na dosah.
Služby zdravotnej starostlivosti pokrýva zubná ambulancia DocoDent vo vzdialenosti 523 m a starostlivosť o pleť nájdete v ambulancii Lekárskej kozmetiky LifeStyle vo vzdialenosti 322 m. Ako orientačný bod v okolí poslúži aj administratíva MACROFER, s.r.o. vo vzdialenosti 259 m.
Pohodlné spojenie s mestom zabezpečí autobusová zastávka Prvosienková vo vzdialenosti 190 m, ktorá uľahčí cestu do centra aj k inštitúciám. Vďaka tichšej ulici a množstvu služieb je lokalita vhodná pre priestranné mestské bývanie so súkromím, ktoré ocení aj väčšia domácnosť.
Okolie ulice Havlíčkova v Bratislave - Staré Mesto ponúka tieto možnosti:
Autobusová zastávka: Prvosienková - 190 m
Obchod: Yeme - 226 m
Administratíva / kancelárie: MACROFER, s.r.o. - 259 m
Lekár: Lekárska kozmetika LifeStyle - 322 m
Reštaurácia: Ako Doma - 464 m
Krčma: Chilli Pub - 500 m
Zubár: DocoDent - 523 m
PONUKU INZERUJE
Podrobné informácie k 5 a viac izbovému bytu na predaj
| Celková rozloha | 240.71 m² |
|---|---|
| Úžitková plocha | 240.71 m² |
| Poschodie | 3/vyššie poschodie |
| Počet poschodí | 8 |
| Počet izieb | 5 |
| Vlastníctvo | osobné |
| Stav | pôvodný |
| Status | aktívne |
| Odvoz odpadu | áno - separovaný |
| Internet | wifi |
| Kúpeľňa | áno |
| Vykurovanie | spoločné |
| Terasa | áno |
|---|---|
| Pivnica | áno |
| Garáž | áno |
| Výťah | áno |
| Parkovanie | áno |
| Postavené z | iné |
| Zariadenie | zariadený |
| Zateplený objekt | áno |
| Krb | áno |
| Energetický certifikát | nie |
| Okná | drevené |
| Orientácia | juhovýchodná |
Ďalšie 5 izbové byty v Starom Meste, Bratislava na predaj
Predaj 5 a viac izbový byt
142 m2
Bratislava - Staré Mesto
Cena v RK
Predaj 5 a viac izbový byt
165 m2
Bratislava - Staré Mesto
1.000.000,- €
Predaj 5 a viac izbový byt
268 m2
Bratislava - Staré Mesto
1.450.000,- €
Predaj 5 a viac izbový byt
175 m2
Bratislava - Staré Mesto
Cena v RK
Predaj 5 a viac izbový byt
147 m2
Bratislava - Staré Mesto
440.000,- €
Predaj 5 a viac izbový byt
147.47 m2
Bratislava - Staré Mesto
460.000,- €
Predaj 5 a viac izbový byt
181 m2
Bratislava - Staré Mesto
Cena v RK
Predaj 5 a viac izbový byt
337 m2
Bratislava - Staré Mesto
Cena v RK
Predaj 5 a viac izbový byt
186 m2
Bratislava - Staré Mesto
Cena v RK
Predaj 5 a viac izbový byt
187.81 m2
Bratislava - Staré Mesto
639.000,- €
Predaj 5 a viac izbový byt
300 m2
Bratislava - Staré Mesto
850.300,- €
Predaj 5 a viac izbový byt
267 m2
Bratislava - Staré Mesto
1.490.000,- €
Predaj 5 a viac izbový byt
164 m2
Bratislava - Staré Mesto
Cena v RK
Predaj 5 a viac izbový byt
234 m2
Bratislava - Staré Mesto
Cena v RK
Predaj 5 a viac izbový byt
200 m2
Bratislava - Staré Mesto
849.000,- €
Predaj 5 a viac izbový byt
136.3 m2
Bratislava - Staré Mesto
485.000,- €
Hodnotenie ponuky - Veľkometrážny byt na Slavíne s výhľadom na mesto
Analýza ponuky bytov v lokalite Bratislava - Staré Mesto
V okrese Bratislava - Staré Mesto je na ZoznamRealit.Sk 157 bytov na predaj a 333 bytov na prenájom.
Najdrahšia ponuka stojí 1.984.000,- € na predaj a najlacnejšia ponuka bytu pre lokalitu Bratislava - Staré Mesto 440.000,- €.
V okrese Bratislava pôsobí a na ZoznamRealit.Sk inzeruje 88 realitných kancelárií, z toho je 57 Overených členov ZRKS.































